Unista ja naudi tööd mere ääres!
Otsid silmapaistvat äripinda, millel on merevaade ja suurepärane asukoht?
See on ainulaadne merevaatega äripind Kopli liinidel – ideaalne võimalus kohvikuks, bürooks, teenindusettevõtteks või muuks äriliseks otstarbeks!
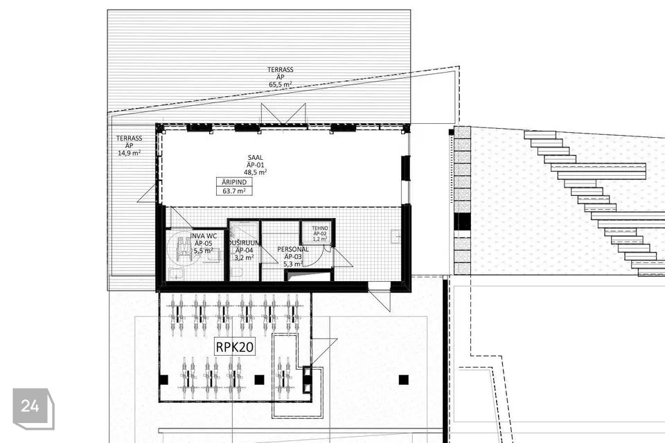
PIND JA PLANEERING:
Merevaade – meri otse Sinu akna taga!
Promenaadi vahetus läheduses – suurepärane nähtavus ja jalakäijate voog
Avatud planeeringuga tööala
Mitu sissepääsu – mugav ligipääs
Inva-WC, personaliruum, tehnoruum ja eraldi tualettruum
LISAVÕIMALUSED & MUGAVUSED:
Lae kõrgus ca 3,0 m – avarus ja valgusküllasus
Jahutus ja ventilatsioon – tagab ideaalse sisekliima
Muusikasüsteemi valmidus – sobib suurepäraselt meeleoluka keskkonna loomiseks
Terrass 80,4 m² – ideaalne välikohviku või lõõgastusalana
Eritellimusel siseviimistlus – Rapolano & Mallorca keraamilised plaadid ja premium-viimistluspakett
Eraldi panipaik – mugavaks hoiustamiseks
Parkimisvõimalus – 2 parkimiskohta
Üür: 1000 €/kuu + käibemaks + kõrvalkulud
Otsime pikaajalist ja usaldusväärset üürnikku, kelle ärile see unikaalne pind väärtust lisab. Võta ühendust ja tule tutvuma!
JAGA MINU KONTAKTI KÕIGILE, KES VAJAVAD KINNISVARANÕU!
- - - - - - - - - -
Telli hindamine UUS MAA Kinnisvarabüroolt https://uusmaa.ee/teenused/hindamine/
UUS MAA KINNISVARABÜROO EKSPERTHINNANGUID AKTSEPTEERIVAD KÕIK FINANTSASUTUSED.
- - - - - - - - - -
Liitu Uus Maa uudiskirjaga ja saa homset kinnisvarainfot juba täna!
https://www.uusmaa.ee/uudiskirjagaliitumine/
- - - - - - - - - -
Kodu aitab osta Swedbank.
Pakkumise saamiseks kasuta koodi UUSMAA ja Sind teenindatakse eelisjärjekorras.
Võtame ühendust 1 tööpäeva jooksul.
Uus Maa kliendile soodsam lepingutasu. Küsi täpsemat infot maaklerilt.
Finantsteenuseid pakub Swedbank AS. Tutvu tingimustega, pea nõu.
Otsid silmapaistvat äripinda, millel on merevaade ja suurepärane asukoht?
See on ainulaadne merevaatega äripind Kopli liinidel – ideaalne võimalus kohvikuks, bürooks, teenindusettevõtteks või muuks äriliseks otstarbeks!
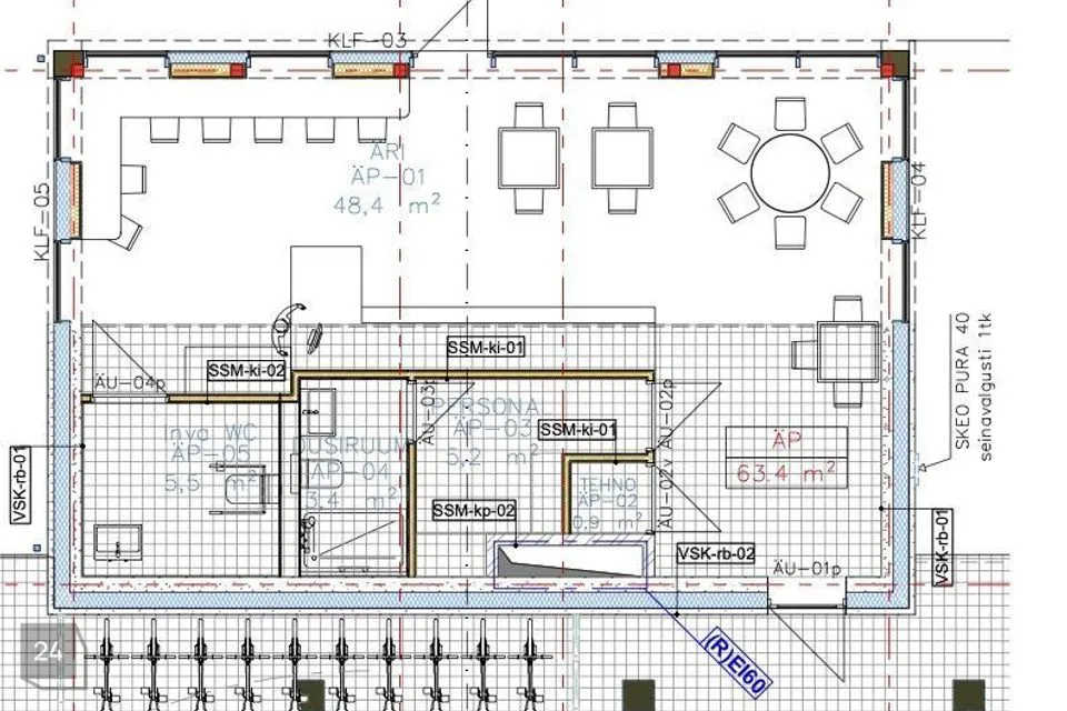
PIND JA PLANEERING:
Merevaade – meri otse Sinu akna taga!
Promenaadi vahetus läheduses – suurepärane nähtavus ja jalakäijate voog
Avatud planeeringuga tööala
Mitu sissepääsu – mugav ligipääs
Inva-WC, personaliruum, tehnoruum ja eraldi tualettruum
LISAVÕIMALUSED & MUGAVUSED:
Lae kõrgus ca 3,0 m – avarus ja valgusküllasus
Jahutus ja ventilatsioon – tagab ideaalse sisekliima
Muusikasüsteemi valmidus – sobib suurepäraselt meeleoluka keskkonna loomiseks
Terrass 80,4 m² – ideaalne välikohviku või lõõgastusalana
Eritellimusel siseviimistlus – Rapolano & Mallorca keraamilised plaadid ja premium-viimistluspakett
Eraldi panipaik – mugavaks hoiustamiseks
Parkimisvõimalus – 2 parkimiskohta
Üür: 1000 €/kuu + käibemaks + kõrvalkulud
Otsime pikaajalist ja usaldusväärset üürnikku, kelle ärile see unikaalne pind väärtust lisab. Võta ühendust ja tule tutvuma!
JAGA MINU KONTAKTI KÕIGILE, KES VAJAVAD KINNISVARANÕU!
- - - - - - - - - -
Telli hindamine UUS MAA Kinnisvarabüroolt https://uusmaa.ee/teenused/hindamine/
UUS MAA KINNISVARABÜROO EKSPERTHINNANGUID AKTSEPTEERIVAD KÕIK FINANTSASUTUSED.
- - - - - - - - - -
Liitu Uus Maa uudiskirjaga ja saa homset kinnisvarainfot juba täna!
https://www.uusmaa.ee/uudiskirjagaliitumine/
- - - - - - - - - -
Kodu aitab osta Swedbank.
Pakkumise saamiseks kasuta koodi UUSMAA ja Sind teenindatakse eelisjärjekorras.
Võtame ühendust 1 tööpäeva jooksul.
Uus Maa kliendile soodsam lepingutasu. Küsi täpsemat infot maaklerilt.
Finantsteenuseid pakub Swedbank AS. Tutvu tingimustega, pea nõu.


























