Üürile anda täielikult möbleeritud ridaelamuboks Raadil!
Tegu on 3-toalise, isikliku aiaga piiratud õueala, terrassi, rõdu ja saunaga korteriga. Heaperemehelikult suhtuva üürniku jaoks jääb kasutada kõik sisustuselemendid ja tehnika. Kvaliteetne ja integreeritud tehnikaga köögimööbel, diivan, teler, söögilaud ja toolid, mahukas garderoobkapp magamistoas, esiku garderoob ning kvaliteetne LG pesumasin/kuivati. Kolmandasse tuppa jääb eriti mahukas garderoobkapp, diivan ja kirjutuslaud. Lisaks jääb üürniku kasutusse terrassimööbel ning kõik muruala hoolitsemiseks kuluvad tööriistad, sh robotmuruniiduk ja trimmer.
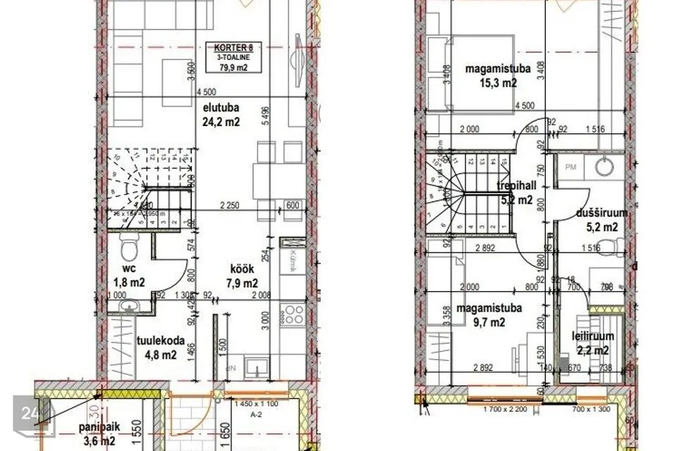
Planeering - lisatud galerii lõppu.
I korrus: esik, WC, köök, elutuba ning pääs terrassile.
II korrus: trepihall, kaks magamistuba ning WC-duširuum ja saun. Suurest magamistoast on pääs 5m² õhtupäikesele avanevale rõdule.
Ruumide sooja tagab ökonoomne maaküttel põhinev vesipõrandaküte, ruumides olemas digitaalsed termostaadid. Ridaelamusse on paigaldataud ka katlakivi vähendamiseks veepehmendusseade. Kommunaalkulud suvisel ajal ca 70€, talvisel 90-100€/kuu. Lisandub elekter.
Korteri kasutusse kuulub mahukas panipaik ning kaks parkimiskohta.
Isiklik aiaga piiratud 100m² hooviala koos 15m² terrassiga.
Olulisemad lisad - nutikas G4S AIKO valvesüsteem ning elektriauto laadimise võimalus.
Raadi alev on suurepärane elukeskkond nii noortele kui ka lastega peredele. Piirkonnas on olemas Selver, Coop ja Grossi toidukauplused. Läheduses lasteaed Ripsik, Raadi lastehoid, rohealad ja mänguväljakud, Raadi mõisapark, ERM ja Majoraadi park ning kergliiklusteede võrgustik mis moodustab ühenduse nii Tartu kui ka Kõrvekülaga, lisaks toimiv bussiliiklus.
Eelistame eelkõige lemmikloomadeta üürnikku.
Tasumisele kuulub esimese kuu üür, tagatisraha samas ulatuses ning kinnisvarabüroo teenustasu 900 eurot.
Võimalik üürimine ka läbi Rendin platvormi.
Võta ühendust, küsi lisa ja planeeri kohtumine!
Tegu on 3-toalise, isikliku aiaga piiratud õueala, terrassi, rõdu ja saunaga korteriga. Heaperemehelikult suhtuva üürniku jaoks jääb kasutada kõik sisustuselemendid ja tehnika. Kvaliteetne ja integreeritud tehnikaga köögimööbel, diivan, teler, söögilaud ja toolid, mahukas garderoobkapp magamistoas, esiku garderoob ning kvaliteetne LG pesumasin/kuivati. Kolmandasse tuppa jääb eriti mahukas garderoobkapp, diivan ja kirjutuslaud. Lisaks jääb üürniku kasutusse terrassimööbel ning kõik muruala hoolitsemiseks kuluvad tööriistad, sh robotmuruniiduk ja trimmer.
Planeering - lisatud galerii lõppu.
I korrus: esik, WC, köök, elutuba ning pääs terrassile.
II korrus: trepihall, kaks magamistuba ning WC-duširuum ja saun. Suurest magamistoast on pääs 5m² õhtupäikesele avanevale rõdule.
Ruumide sooja tagab ökonoomne maaküttel põhinev vesipõrandaküte, ruumides olemas digitaalsed termostaadid. Ridaelamusse on paigaldataud ka katlakivi vähendamiseks veepehmendusseade. Kommunaalkulud suvisel ajal ca 70€, talvisel 90-100€/kuu. Lisandub elekter.
Korteri kasutusse kuulub mahukas panipaik ning kaks parkimiskohta.
Isiklik aiaga piiratud 100m² hooviala koos 15m² terrassiga.
Olulisemad lisad - nutikas G4S AIKO valvesüsteem ning elektriauto laadimise võimalus.
Raadi alev on suurepärane elukeskkond nii noortele kui ka lastega peredele. Piirkonnas on olemas Selver, Coop ja Grossi toidukauplused. Läheduses lasteaed Ripsik, Raadi lastehoid, rohealad ja mänguväljakud, Raadi mõisapark, ERM ja Majoraadi park ning kergliiklusteede võrgustik mis moodustab ühenduse nii Tartu kui ka Kõrvekülaga, lisaks toimiv bussiliiklus.
Eelistame eelkõige lemmikloomadeta üürnikku.
Tasumisele kuulub esimese kuu üür, tagatisraha samas ulatuses ning kinnisvarabüroo teenustasu 900 eurot.
Võimalik üürimine ka läbi Rendin platvormi.
Võta ühendust, küsi lisa ja planeeri kohtumine!
Kinnisvara hindamine ja kinnisvara müük Lahe Kinnisvara kutselistelt hindajatelt ja maakleritel, kes on pälvinud klientide kõrge tunnustuse!




































