Linnalähedases Vahi külas pakkuda uued, 5-toalised perekodud. Ühes ridamajas on 5 korteriomandit, mille juurde kuulub oma hooviala (plaan olemas piltide seas) ja 26,6 m2 suurune autovarjualune. Erinevalt tavalistele ridamajadele, ei ole pakutavatel kodudel ühist seina kõrvalboksidega ning on keskmisest suuremad hoovialad (654-1596 m2). Võimalik vaatama minna, maja on juba püsti. Olmas kehtiv hindamisakt!
Pildid on illustratiivsed ühest valmis boksist.
Saadaval kolm viimast majaosa, Vahi 9/2, Vahi 9/4 ja Vahi 9/5. Pakutavad majaosad on B-energiaklassiga. Kui soovida A-energiaklassi ja päikesepaneele, siis lisandub 10 000€.
PLANEERING JA VIIMISTLUS
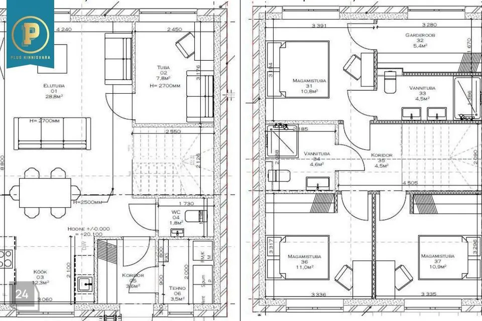
Pakutava perekodu planeering on meeldivalt avar ja läbi kahe korruse. Esimesel korrusel paikneb esik, tehnoruum, tualett, avar ja suurte akendega ning avatud köögiga elutuba ning magamistuba/kabinet. Elutoast pääseb ka majatagusele, lõunapoolsele, terrassile ja hoovialale.
Teisel korrusel asuvad kolm magamistuba. Trepist ühele poole jääb master bedroom suure walk-in garderoobi ja vannitoa-tualetiga. Teisele poole jäävad kaks veidi väiksemat magamistuba, mille kõrval teine vannituba-tualett.
Siseviimistlus lahendatakse heledates toonides. Eluruumide põrandatele paigaldatakse naturaalne puitparkett ning seinad värvitakse. Vannitubade ja abiruumide põrandad kaetakse keraamiliste plaatidega.
KOMMUNIKATSIOONID JA TEHNILISED LAHENDUSED
Hooned ühendatakse tsentraalse vee- ja kanalisatsioonitrassi. Kütteagregaatideks on tänapäevased õhk-vesi soojuspumbad ja soojuskandjaks vesipõrandaküte. Lisaks paigaldatakse boksipõhised soojustagastusega sundventilatsioonisüsteemi seadmed. Kogu hoones kasutusel ainult energiasäästlikud LED-valgustid. Soovi korral on lisatasu eest (10 000€) võimalik lisada ka päikesepaneelid. Kõik see kokku tagab maksimaalse ökonoomsuse.
EHITUSLIK INFO
Tegu on madalvundamendil kivimajaga, mis on väljast krohvitud. Vahelagi monteeritavast raudbetoonist ning kattusekatteks on plekk. Akendeks on 3x klaaspaketiga plastraamid.
PARKIMINE
Igal boksil on autovarjualune ja lisaks 2 parkimiskohta maja ees.
ASUKOHT JA ÜMBRUS
Vahi küla asub Tallinna Südalinnast vähem kui 30-minutilise autosõidu kaugusel ning on turvaline ja peresõbralik keskkond inimesele, kes hindab looduslähedust ja rahulikku elukeskkonda, kuid samas ka teenuste kättesaadavust. Ümbruses on valdavalt uued elamud ning heas seisukorras asfaldteed ja tänavavalgustus. U 3 km kaugusel asub Vääna küla, kus lähim haridusasutus – Vääna Mõisakool. 12-minutilise autosõidu kaugusel Laulasmaa, Vääna-Jõesuu ja Tabasalu, kus olemas kõik vajalikud teenused arstiabist kuni erinevate kaupluste ja söögikohtadeni. Samuti kaunid liivarannad.
Plus Kinnisvarabüroo on butiikstiilis kinnisvarabüroo neile, kes hindavad personaalset lähenemist.
Plus Kinnisvarabüroo keskendub kvaliteedile, mitte kvantiteedile. Iga klient on meie jaoks tähtis ning töötame oma kliendi maksimaalse heaolu nimel!
Teenused, mida pakume:
Elamispindade müük, üürimine ja haldamine
Äripindade müük ja üürimine
Arendusprojektide müük
Investeerimisobjektide müük
Kinnisvara hinnastamine
Kinnisvara ostuesindus
Kinnisvara müügiks ettevalmistamine
Omame kontakte kõikides Eesti pankades ja läbi meie ostes saate laenulepingu soodustust, kiiremat teenindust ning professionaalset abi!
Rohkem infot meist ja meie teenustest / inimestest: www.plus.ee
Pildid on illustratiivsed ühest valmis boksist.
Saadaval kolm viimast majaosa, Vahi 9/2, Vahi 9/4 ja Vahi 9/5. Pakutavad majaosad on B-energiaklassiga. Kui soovida A-energiaklassi ja päikesepaneele, siis lisandub 10 000€.
PLANEERING JA VIIMISTLUS
Pakutava perekodu planeering on meeldivalt avar ja läbi kahe korruse. Esimesel korrusel paikneb esik, tehnoruum, tualett, avar ja suurte akendega ning avatud köögiga elutuba ning magamistuba/kabinet. Elutoast pääseb ka majatagusele, lõunapoolsele, terrassile ja hoovialale.
Teisel korrusel asuvad kolm magamistuba. Trepist ühele poole jääb master bedroom suure walk-in garderoobi ja vannitoa-tualetiga. Teisele poole jäävad kaks veidi väiksemat magamistuba, mille kõrval teine vannituba-tualett.
Siseviimistlus lahendatakse heledates toonides. Eluruumide põrandatele paigaldatakse naturaalne puitparkett ning seinad värvitakse. Vannitubade ja abiruumide põrandad kaetakse keraamiliste plaatidega.
KOMMUNIKATSIOONID JA TEHNILISED LAHENDUSED
Hooned ühendatakse tsentraalse vee- ja kanalisatsioonitrassi. Kütteagregaatideks on tänapäevased õhk-vesi soojuspumbad ja soojuskandjaks vesipõrandaküte. Lisaks paigaldatakse boksipõhised soojustagastusega sundventilatsioonisüsteemi seadmed. Kogu hoones kasutusel ainult energiasäästlikud LED-valgustid. Soovi korral on lisatasu eest (10 000€) võimalik lisada ka päikesepaneelid. Kõik see kokku tagab maksimaalse ökonoomsuse.
EHITUSLIK INFO
Tegu on madalvundamendil kivimajaga, mis on väljast krohvitud. Vahelagi monteeritavast raudbetoonist ning kattusekatteks on plekk. Akendeks on 3x klaaspaketiga plastraamid.
PARKIMINE
Igal boksil on autovarjualune ja lisaks 2 parkimiskohta maja ees.
ASUKOHT JA ÜMBRUS
Vahi küla asub Tallinna Südalinnast vähem kui 30-minutilise autosõidu kaugusel ning on turvaline ja peresõbralik keskkond inimesele, kes hindab looduslähedust ja rahulikku elukeskkonda, kuid samas ka teenuste kättesaadavust. Ümbruses on valdavalt uued elamud ning heas seisukorras asfaldteed ja tänavavalgustus. U 3 km kaugusel asub Vääna küla, kus lähim haridusasutus – Vääna Mõisakool. 12-minutilise autosõidu kaugusel Laulasmaa, Vääna-Jõesuu ja Tabasalu, kus olemas kõik vajalikud teenused arstiabist kuni erinevate kaupluste ja söögikohtadeni. Samuti kaunid liivarannad.
Plus Kinnisvarabüroo on butiikstiilis kinnisvarabüroo neile, kes hindavad personaalset lähenemist.
Plus Kinnisvarabüroo keskendub kvaliteedile, mitte kvantiteedile. Iga klient on meie jaoks tähtis ning töötame oma kliendi maksimaalse heaolu nimel!
Teenused, mida pakume:
Elamispindade müük, üürimine ja haldamine
Äripindade müük ja üürimine
Arendusprojektide müük
Investeerimisobjektide müük
Kinnisvara hinnastamine
Kinnisvara ostuesindus
Kinnisvara müügiks ettevalmistamine
Omame kontakte kõikides Eesti pankades ja läbi meie ostes saate laenulepingu soodustust, kiiremat teenindust ning professionaalset abi!
Rohkem infot meist ja meie teenustest / inimestest: www.plus.ee



















