MÜÜA AVARATE AKNAVAADETEGA 5-TOALINE ELAMU VIIMSIS, LOODUSLÄHEDASES TAMMNEEME KÜLAS, 4000 m2-sel KINNISTUL.
TULE VAATAMA JA TEE OMA PAKKUMINE!
Tutvumispäev PÜHAPÄEV vahemikus 12-15.
Täpsem aeg palun lepi hiljemalt laupäeval.
MIKS VALIDA JUST SEE KODU
+ privaatne, looduskaunis koht, meri 1km
+ 4029m2 kõrghaljastusega ja hooldatud kinnistu;
+ kivimaja 222,5 m², läbimõeldud ja loogiline planeering;
+ garaaž, kuurid, lisaks vana majake 69m²
+ 2 elutuba, 3 magamistuba, sauna-ja/pesuruumid
+ heas seisukorras
+ asub Tallinna südalinnast ca 16 km, Viimsi keskus 4,5km - kõik eluks vajalik lähedal
Olemas maja kasutusluba (2021) ja hindaja hinnang kinnistutele, kokku 474 000€ (10/2025);
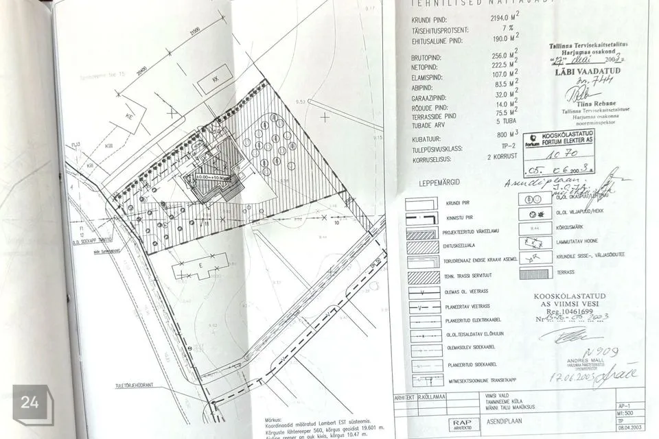
KINNISTUD
Koos müüakse 2 kõrvuti asetsevat kinnistut ja transpordimaa:
1. Elamumaa 100% on 2049 m², millel paikneb müüdav elamu.
2. Maatulundumaa 100%,1980 m² millel asetseb 1936 a väike maja.
3. Transpordimaa 100% on 378 m² (mis asub elamumaa kõrval).
Kaks kinnistut koos piirnevad kõikidest külgedest aiaga ja NAABRID on piisaval kaugusel, et säiliks PRIVAATSUS. Aias kasvavad on õuna-, ploomi-, pirnipuud ja sõstrapõõsad.
Kinnistu aia ääres paiknevad puude ja aiatarvikute KUURID.
Majaesisel 5-6 auto PARKIMISALA ja käiguteed on kaetud unikivi ja peene killustikuga.
ELUMAJA
Kahekorruselise elamu on projekteerinud arhitekt Raul Kõllamaa 2003. aastal.
Suurtest aknapindadest paistab majja PALJU VALGUST, vaated on ilusale hooldatud kinnistule ja ümbritsevalt metsale.
Maja esimese korruse ühel poolel paiknevad elu- ja söögituba, köök. Teise tiiba jäävad sauna- pesu- majapidamis- ja tehnoruum, tualet + garaaž.
Teisel korrusel on avatud ruum vaba aja veetmiseks ja magamistoad.
TERRASSIDELE pääseb elutoast ja saunaruumidest, RÕDULE magamistoast.
VANA MAJA (1936)
Üldpind 69,2m2, kus on 2 tuba. Hoone tuleks uuendada või lammutada.
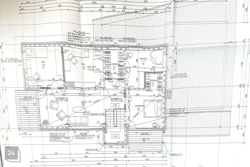
ELAMU PLANEERING (korruste plaanid piltide seas).
Maja suletud netopind 222,5 m².
Elamis-/köetav pind 187 m² (millele lisanduvad tehnoruum 9,5 m² ja garaaž 32 m², viimane ei ole köetav, kuid talvel ei ole ka miinuskraadid).
1. KORRUS - elamispind 90m² (lisanduvad GARAAŽ 32m2 ja TERRASSID ca 20m²).
Elutuba 25,5m².
Köök-söögituba 27m².
Esikuala, garderoob 14,4m².
Saunaruumid 13m² ja tualet 2m².
Majapidamisruum 7m² ja tehno-/katlaruum 9,5m².
2. KORRUS - elamispind 94m².
Magamistuba koos walk-in garderoobiga 17,7m².
Toad 13 ja 15m², avatud vabaajaruum 31,6m².
Panipaik 11,7m² (teise vannitoa-tualeti võimalusega).
VANNITOAD / SAUN / TUALETID
Praegustele omanikele on piisanud 1. korruse saunakompleksist, kus asub DUŠŠ ja puuküttega SAUN.TUALETTruum on eraldi.
Lisaks asub teisel korrusel panipaik/hoiuruum, kus on olemas KOMMUNIKATSIOONID, et teha teine vannituba ja tualett (nagu plaanidelt näha).
SISEVIIMISTLUS, SEISUKORD, SISUSTUS
Aknad 2x-sed pakettaknad. Tubades laminaatpartkett, köögis-esikus linoleum. Seinad värvitud (uuendatud 2016). Söögitoa seinas paneelid.
Köögis uuendatud töötasapind ja majapidamisruumi sisustus (2024).
Uus trepp paigaldati 2021.
Hooldust vajaksid terrassilauad, rõdupiire.
Müügihinna sisse jääb kohtkindel sisustus, pesumasin, riietekapid, muu kokkuleppel.
ELAMU MAJAPIDAMINE, HOIU- JA GARDEROOBIRUUMID
Esikus tuulekoda ja walk-in garderoob.
2.korrusel suures magamistoas walk-in garderoob, teistes tubades riietekapid ja eraldi garderoobituba.
Asjade hoiustamiseks on ruumi 1.kor. majapidamisruumis, kus asuvad pesumasin ja kapid. Samuti 2.kor.panipaik-hoiuruumis.
Aiatarvikuid ja tööriistu hoitakse kinnistul asuvas kuuris (ca 10 m2) ja garaažis.
Muru niitmiseks jääb uuele omanikule väike aiatraktor ja bens.mootoriga niiduk.
KÜTE JA VENTILATSIOON, KAMIN
Kogu maja kütab ÕHK-VESI-SOOJUSPUMP Fujitsu High Power 10,8kW (paigaldus 08/2019).
1.korrusel vesipõrandaküte, teisel radiaatorid.
VENTILATSIOON loomulik, väljatõmbed pesuruumides ja tualetis (ventilaator ühendatud ventil.sahti).
SOE VESI elektriboileriga (kuid on võimalik liita soojuspumbaga sobiva boileri vastu).
KAMIN. Elutoa piltidel olev Kamina südamik tuleks viimistleda oma maitse järgi. Praeguse paigaldatud südamiku (ja selle juurde kuuluvaga) saab kaminat kütta (Itaalia südamik, puuküte).
ELEKTRI peakaiste 3*25A, pinge 0,4kW. Elektriauto laadimiseks on võimalik lahendusi leida.
IGAKUISED KULUD on elekter, prügi, vesi/kanalisatsioon. Telia TV ja internet (kaabel).
Näited:
* Elekter (küte, soe vesi, tarbeelekter) keskmiselt: suvel 114€, talvel 337€, kevad-sügis 190€.
* Prügi 3,52€ (tühjendus 2 x kuus (segaolme kast, kinnistul on kompostikastid),
* Vesi/kanal. 30-40€/kuus (olenevalt tarbimisest).
VESI JA KANALISATSIOON
Vesi ja kanalisatsioon TSENTRAALSED.
Liitutud on ühiskanalisatsiooni ettevõttega Viimsi vesi.
DOKUMENTATSIOON, HER, HINDAJA HINNANG
Ehitusluba 2003. Kasutusluba 2021a.
Praegused elanikud kolisid sisse aastal 2009.
Korstnapühkija akt 9/06/2025 ja soojuspumba hooldus 17/06/2025.
Elektrisüsteemi ja veevarustuse liik – võrk.
Energiaallika liik – vedelkütus; tahke (puit jmt); õhusoojus+elekter.
Soojusvarustuse liik – lokaalne.
Soojusallika liik – katel; soojuspump; ahi, kamin, pliit.
Ventilatsiooni liik – loomulik.
Kanalisatsiooni liik – lokaalne, kuid muutmisel, kuna liitutud veefirmaga Viimsi vesi.
HINDAJA HINNANGUS on elamu “heas seisukorras”.
PIIRKOND
ÜHISTRANSPORT – Viimsi Valla bussid (sh Haabneemest saab buss nr 1 sõita linna) ja Harjumaa liin 115 (Tammneeme – Balti Jaam). Viru keskusesse 16 km/ 24 min.
KERGLIIKLUSTEED, SPORT, SUPELRAND – loodud hea teedevõrgustik: Tammneemest suunal Rohuneeme-Haabneeme-Pirita ja ka Randvere-Mähe-Muuga. 1,5km kaugusel Tädu metsas asub RMK loodusrada ning valgustatud terviserada. 1,3km kaugusel on discgolfi park. Meri on 800m, supelrand 1,5km. Vimka seikluspark 3km/3 min., jalgsi 40min.
TOIDUPOED, TOIDUKOHAD, TEENUSED – Haabneeme alevikus (4,5km), kus on Selver, Delice, Rimi, Maxima, Grossi Toidukaubad ja teenindusasutused (Fitness spordiklubi, iluteenused, söögikohad: Café Lyon kohvik, OKO resto jt. Lähedal NOA, Tuljak, Paat, Kalevi Jahtklubi resto jt.
ARSTIABI – Haabneemes on Fertilitas, perearstikeskus, esmaabi.
KOOL / LASTEAED – Haabneemes Viimsi Gümnaasium, 2 põhikooli. Lasteaed asub lähemal Leppneemes. Randveres (4 km) lasteaed ja põhikool.
TAMMNEEME KÜLA on 530 aastane, asudes mere ja metsa vahel. Külas elab üle 500 inimese. Toimuvad jaanitule jt üritused. Olemas oma sadam.
JAGA MINU KONTAKTI KÕIGILE, KES VAJAVAD KINNISVARANÕU!
- - - - - - - - - -
Telli hindamine UUS MAA Kinnisvarabüroolt https://uusmaa.ee/teenused/hindamine/
ning saad:
- Eksperthinnangu kuni 20% soodsamalt kui võtad koduga seotud laenu Swedbankist
- Pankadest parimad kodulaenutingimused
- Kiire, kvaliteetse ning usaldusväärse hindamisteenuse Eestis
UUS MAA KINNISVARABÜROO EKSPERTHINNANGUID AKTSEPTEERIVAD KÕIK FINANTSASUTUSED.
- - - - - - - - - -
Liitu Uus Maa uudiskirjaga ja saa homset kinnisvarainfot juba täna!
https://www.uusmaa.ee/uudiskirjagaliitumine/
- - - - - - - - - -
Kodu aitab osta Swedbank.
Pakkumise saamiseks kasuta koodi UUSMAA ja Sind teenindatakse eelisjärjekorras.
Võtame ühendust 1 tööpäeva jooksul.
Uus Maa kliendile soodsam lepingutasu. Küsi täpsemat infot maaklerilt.
Finantsteenuseid pakub Swedbank AS. Tutvu tingimustega, pea nõu.
TULE VAATAMA JA TEE OMA PAKKUMINE!
Tutvumispäev PÜHAPÄEV vahemikus 12-15.
Täpsem aeg palun lepi hiljemalt laupäeval.
MIKS VALIDA JUST SEE KODU
+ privaatne, looduskaunis koht, meri 1km
+ 4029m2 kõrghaljastusega ja hooldatud kinnistu;
+ kivimaja 222,5 m², läbimõeldud ja loogiline planeering;
+ garaaž, kuurid, lisaks vana majake 69m²
+ 2 elutuba, 3 magamistuba, sauna-ja/pesuruumid
+ heas seisukorras
+ asub Tallinna südalinnast ca 16 km, Viimsi keskus 4,5km - kõik eluks vajalik lähedal
Olemas maja kasutusluba (2021) ja hindaja hinnang kinnistutele, kokku 474 000€ (10/2025);
KINNISTUD
Koos müüakse 2 kõrvuti asetsevat kinnistut ja transpordimaa:
1. Elamumaa 100% on 2049 m², millel paikneb müüdav elamu.
2. Maatulundumaa 100%,1980 m² millel asetseb 1936 a väike maja.
3. Transpordimaa 100% on 378 m² (mis asub elamumaa kõrval).
Kaks kinnistut koos piirnevad kõikidest külgedest aiaga ja NAABRID on piisaval kaugusel, et säiliks PRIVAATSUS. Aias kasvavad on õuna-, ploomi-, pirnipuud ja sõstrapõõsad.
Kinnistu aia ääres paiknevad puude ja aiatarvikute KUURID.
Majaesisel 5-6 auto PARKIMISALA ja käiguteed on kaetud unikivi ja peene killustikuga.
ELUMAJA
Kahekorruselise elamu on projekteerinud arhitekt Raul Kõllamaa 2003. aastal.
Suurtest aknapindadest paistab majja PALJU VALGUST, vaated on ilusale hooldatud kinnistule ja ümbritsevalt metsale.
Maja esimese korruse ühel poolel paiknevad elu- ja söögituba, köök. Teise tiiba jäävad sauna- pesu- majapidamis- ja tehnoruum, tualet + garaaž.
Teisel korrusel on avatud ruum vaba aja veetmiseks ja magamistoad.
TERRASSIDELE pääseb elutoast ja saunaruumidest, RÕDULE magamistoast.
VANA MAJA (1936)
Üldpind 69,2m2, kus on 2 tuba. Hoone tuleks uuendada või lammutada.
ELAMU PLANEERING (korruste plaanid piltide seas).
Maja suletud netopind 222,5 m².
Elamis-/köetav pind 187 m² (millele lisanduvad tehnoruum 9,5 m² ja garaaž 32 m², viimane ei ole köetav, kuid talvel ei ole ka miinuskraadid).
1. KORRUS - elamispind 90m² (lisanduvad GARAAŽ 32m2 ja TERRASSID ca 20m²).
Elutuba 25,5m².
Köök-söögituba 27m².
Esikuala, garderoob 14,4m².
Saunaruumid 13m² ja tualet 2m².
Majapidamisruum 7m² ja tehno-/katlaruum 9,5m².
2. KORRUS - elamispind 94m².
Magamistuba koos walk-in garderoobiga 17,7m².
Toad 13 ja 15m², avatud vabaajaruum 31,6m².
Panipaik 11,7m² (teise vannitoa-tualeti võimalusega).
VANNITOAD / SAUN / TUALETID
Praegustele omanikele on piisanud 1. korruse saunakompleksist, kus asub DUŠŠ ja puuküttega SAUN.TUALETTruum on eraldi.
Lisaks asub teisel korrusel panipaik/hoiuruum, kus on olemas KOMMUNIKATSIOONID, et teha teine vannituba ja tualett (nagu plaanidelt näha).
SISEVIIMISTLUS, SEISUKORD, SISUSTUS
Aknad 2x-sed pakettaknad. Tubades laminaatpartkett, köögis-esikus linoleum. Seinad värvitud (uuendatud 2016). Söögitoa seinas paneelid.
Köögis uuendatud töötasapind ja majapidamisruumi sisustus (2024).
Uus trepp paigaldati 2021.
Hooldust vajaksid terrassilauad, rõdupiire.
Müügihinna sisse jääb kohtkindel sisustus, pesumasin, riietekapid, muu kokkuleppel.
ELAMU MAJAPIDAMINE, HOIU- JA GARDEROOBIRUUMID
Esikus tuulekoda ja walk-in garderoob.
2.korrusel suures magamistoas walk-in garderoob, teistes tubades riietekapid ja eraldi garderoobituba.
Asjade hoiustamiseks on ruumi 1.kor. majapidamisruumis, kus asuvad pesumasin ja kapid. Samuti 2.kor.panipaik-hoiuruumis.
Aiatarvikuid ja tööriistu hoitakse kinnistul asuvas kuuris (ca 10 m2) ja garaažis.
Muru niitmiseks jääb uuele omanikule väike aiatraktor ja bens.mootoriga niiduk.
KÜTE JA VENTILATSIOON, KAMIN
Kogu maja kütab ÕHK-VESI-SOOJUSPUMP Fujitsu High Power 10,8kW (paigaldus 08/2019).
1.korrusel vesipõrandaküte, teisel radiaatorid.
VENTILATSIOON loomulik, väljatõmbed pesuruumides ja tualetis (ventilaator ühendatud ventil.sahti).
SOE VESI elektriboileriga (kuid on võimalik liita soojuspumbaga sobiva boileri vastu).
KAMIN. Elutoa piltidel olev Kamina südamik tuleks viimistleda oma maitse järgi. Praeguse paigaldatud südamiku (ja selle juurde kuuluvaga) saab kaminat kütta (Itaalia südamik, puuküte).
ELEKTRI peakaiste 3*25A, pinge 0,4kW. Elektriauto laadimiseks on võimalik lahendusi leida.
IGAKUISED KULUD on elekter, prügi, vesi/kanalisatsioon. Telia TV ja internet (kaabel).
Näited:
* Elekter (küte, soe vesi, tarbeelekter) keskmiselt: suvel 114€, talvel 337€, kevad-sügis 190€.
* Prügi 3,52€ (tühjendus 2 x kuus (segaolme kast, kinnistul on kompostikastid),
* Vesi/kanal. 30-40€/kuus (olenevalt tarbimisest).
VESI JA KANALISATSIOON
Vesi ja kanalisatsioon TSENTRAALSED.
Liitutud on ühiskanalisatsiooni ettevõttega Viimsi vesi.
DOKUMENTATSIOON, HER, HINDAJA HINNANG
Ehitusluba 2003. Kasutusluba 2021a.
Praegused elanikud kolisid sisse aastal 2009.
Korstnapühkija akt 9/06/2025 ja soojuspumba hooldus 17/06/2025.
Elektrisüsteemi ja veevarustuse liik – võrk.
Energiaallika liik – vedelkütus; tahke (puit jmt); õhusoojus+elekter.
Soojusvarustuse liik – lokaalne.
Soojusallika liik – katel; soojuspump; ahi, kamin, pliit.
Ventilatsiooni liik – loomulik.
Kanalisatsiooni liik – lokaalne, kuid muutmisel, kuna liitutud veefirmaga Viimsi vesi.
HINDAJA HINNANGUS on elamu “heas seisukorras”.
PIIRKOND
ÜHISTRANSPORT – Viimsi Valla bussid (sh Haabneemest saab buss nr 1 sõita linna) ja Harjumaa liin 115 (Tammneeme – Balti Jaam). Viru keskusesse 16 km/ 24 min.
KERGLIIKLUSTEED, SPORT, SUPELRAND – loodud hea teedevõrgustik: Tammneemest suunal Rohuneeme-Haabneeme-Pirita ja ka Randvere-Mähe-Muuga. 1,5km kaugusel Tädu metsas asub RMK loodusrada ning valgustatud terviserada. 1,3km kaugusel on discgolfi park. Meri on 800m, supelrand 1,5km. Vimka seikluspark 3km/3 min., jalgsi 40min.
TOIDUPOED, TOIDUKOHAD, TEENUSED – Haabneeme alevikus (4,5km), kus on Selver, Delice, Rimi, Maxima, Grossi Toidukaubad ja teenindusasutused (Fitness spordiklubi, iluteenused, söögikohad: Café Lyon kohvik, OKO resto jt. Lähedal NOA, Tuljak, Paat, Kalevi Jahtklubi resto jt.
ARSTIABI – Haabneemes on Fertilitas, perearstikeskus, esmaabi.
KOOL / LASTEAED – Haabneemes Viimsi Gümnaasium, 2 põhikooli. Lasteaed asub lähemal Leppneemes. Randveres (4 km) lasteaed ja põhikool.
TAMMNEEME KÜLA on 530 aastane, asudes mere ja metsa vahel. Külas elab üle 500 inimese. Toimuvad jaanitule jt üritused. Olemas oma sadam.
JAGA MINU KONTAKTI KÕIGILE, KES VAJAVAD KINNISVARANÕU!
- - - - - - - - - -
Telli hindamine UUS MAA Kinnisvarabüroolt https://uusmaa.ee/teenused/hindamine/
ning saad:
- Eksperthinnangu kuni 20% soodsamalt kui võtad koduga seotud laenu Swedbankist
- Pankadest parimad kodulaenutingimused
- Kiire, kvaliteetse ning usaldusväärse hindamisteenuse Eestis
UUS MAA KINNISVARABÜROO EKSPERTHINNANGUID AKTSEPTEERIVAD KÕIK FINANTSASUTUSED.
- - - - - - - - - -
Liitu Uus Maa uudiskirjaga ja saa homset kinnisvarainfot juba täna!
https://www.uusmaa.ee/uudiskirjagaliitumine/
- - - - - - - - - -
Kodu aitab osta Swedbank.
Pakkumise saamiseks kasuta koodi UUSMAA ja Sind teenindatakse eelisjärjekorras.
Võtame ühendust 1 tööpäeva jooksul.
Uus Maa kliendile soodsam lepingutasu. Küsi täpsemat infot maaklerilt.
Finantsteenuseid pakub Swedbank AS. Tutvu tingimustega, pea nõu.

























































































