Tule kohapeale tutvuma ja saame jõulukuul teha hinnasoodustust !
Müüa uuem 2020 a valminud eriprojektiga kahekorruseline kivimaja suurema kõrg-ning madalhaljastud kinnistuga Nugise tee 4, Eametsa külas, Tori vallas, Pärnumaal.
KINNISTU
Kinnistu kogupindala on 2425 m2. Privaatne kinnistu on maitsekalt kujundatud ilupuude-ning põõsastega, noore viljapuuaiaga. Kinnistu sisene sissesõidu tee ning maja esine on kaetud tänavakiviga. Hoonestusena asub seal kahekorruseline elumaja ja väike kuni 20 m2 abihoone.
ELAMU
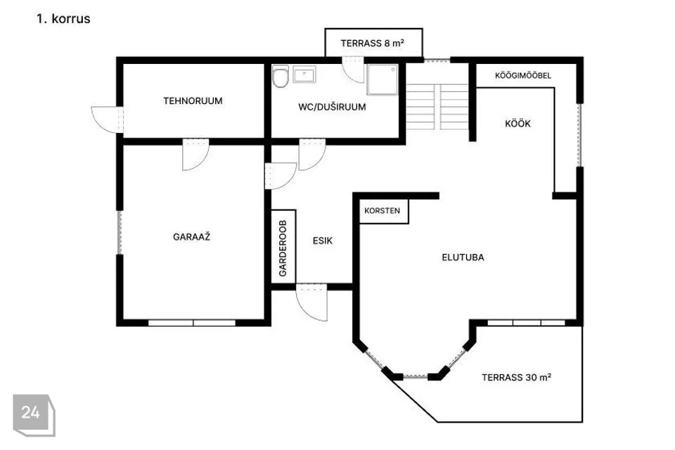
Elamu on suletud netopindala 194.30 m2, eluruumide pindala 159,1m2.
Esimesele korrusele jääb avar ning päikeseküllane elutuba, sealt pääseb majaesisele päikeseterrassile( 30m2), lisaks avatud köök, esikuosa, duširuum/ WC (pääs maja taha terrassile- 8m2), automaatikaga tõsteuksega garaaž( garaažis epoksiidkate- paigaldatud 3 kuud tagasi), tehniline ruum.
Teisel korrusel asuvad 4 eraldi magamistuba, trepihall, tubade vaheline koridor ning vannituba / WC.
Korruste vaheline vahelagi on betoonist. Esimese korruse lae kõrgus on 2,5 m.
Majal on värvitud kõrgkvaliteetne valtsplekk-katus ning korralik vihmaveesüsteem.
Aknad ja terrassiuksed: kolmekordne klaas soojapidavus U-0.5-0,7 W/m2K, mis aitavad hoida põrandakütte ja soojuspumba toodetud soojust majas sees ning vähendavad seega ka energiakulu.
Elamu on ehitatud Fiboblokist, välisviimistlus krohv, lintvundament Fibo kergplokkidel.
TEHNOSÜSTEEMID JA KOMMUNIKATSIOONID
*Elekter 3 x 25 Amprit
*Küte : Õhk-vesi soojuspump (Küttetorustik mõlemal korrusel põrandates)
*Soe tarbevesi soojuspumbaga, mis toodab sooja vett 3-4 korda energiatõhusamalt kui elektriline boiler.
*Eraldi välja toodud toitekaabel generaatori paigaldamiseks
*Telia digi-tv ja interneti kaabeldus
*Tsentraalne vesi-ja kanalisatsioon
*Signalisatsioon + tuleohutussüsteem
*Kamina ehitamise valmidus, paigaldatud on moodulkorsten
*Soojustagastusega ventilatsioon
ÜMBRUS
Sauga jõeni u 100 m, ümbruses teised üksikelamud, bussipeatus u 500 m, lähim toidupood, lasteaed Sauga alevikus.
Kinnistu juurde viib asfaltkattega tee millel on tänavavalgustus.
MÜÜGIHIND SISALDAB
Kogu maja integreeritud mööblit, köögitehnikat, sanitaartehnikat, aknakatteid, valgusteid. Võimalus küsida eraldi muu sisuste osas.
Kui olete otsimas kodu, mis asub looduskaunis asukohas privaatsemana ning uuem maja, siis vaadake seda pakkumist!
Olete oodatud kohapeale tutvuma! Lisaküsimustele vastan meeleldi.
Meie ettevõtte kaudu võimalus tellida eksperthinnang ning saada pankade sooduskoodid lepingutasude tarbeks. Nõustan ning suunan ostjat parima pakkumise saamiseks.
Müüa uuem 2020 a valminud eriprojektiga kahekorruseline kivimaja suurema kõrg-ning madalhaljastud kinnistuga Nugise tee 4, Eametsa külas, Tori vallas, Pärnumaal.
KINNISTU
Kinnistu kogupindala on 2425 m2. Privaatne kinnistu on maitsekalt kujundatud ilupuude-ning põõsastega, noore viljapuuaiaga. Kinnistu sisene sissesõidu tee ning maja esine on kaetud tänavakiviga. Hoonestusena asub seal kahekorruseline elumaja ja väike kuni 20 m2 abihoone.
ELAMU
Elamu on suletud netopindala 194.30 m2, eluruumide pindala 159,1m2.
Esimesele korrusele jääb avar ning päikeseküllane elutuba, sealt pääseb majaesisele päikeseterrassile( 30m2), lisaks avatud köök, esikuosa, duširuum/ WC (pääs maja taha terrassile- 8m2), automaatikaga tõsteuksega garaaž( garaažis epoksiidkate- paigaldatud 3 kuud tagasi), tehniline ruum.
Teisel korrusel asuvad 4 eraldi magamistuba, trepihall, tubade vaheline koridor ning vannituba / WC.
Korruste vaheline vahelagi on betoonist. Esimese korruse lae kõrgus on 2,5 m.
Majal on värvitud kõrgkvaliteetne valtsplekk-katus ning korralik vihmaveesüsteem.
Aknad ja terrassiuksed: kolmekordne klaas soojapidavus U-0.5-0,7 W/m2K, mis aitavad hoida põrandakütte ja soojuspumba toodetud soojust majas sees ning vähendavad seega ka energiakulu.
Elamu on ehitatud Fiboblokist, välisviimistlus krohv, lintvundament Fibo kergplokkidel.
TEHNOSÜSTEEMID JA KOMMUNIKATSIOONID
*Elekter 3 x 25 Amprit
*Küte : Õhk-vesi soojuspump (Küttetorustik mõlemal korrusel põrandates)
*Soe tarbevesi soojuspumbaga, mis toodab sooja vett 3-4 korda energiatõhusamalt kui elektriline boiler.
*Eraldi välja toodud toitekaabel generaatori paigaldamiseks
*Telia digi-tv ja interneti kaabeldus
*Tsentraalne vesi-ja kanalisatsioon
*Signalisatsioon + tuleohutussüsteem
*Kamina ehitamise valmidus, paigaldatud on moodulkorsten
*Soojustagastusega ventilatsioon
ÜMBRUS
Sauga jõeni u 100 m, ümbruses teised üksikelamud, bussipeatus u 500 m, lähim toidupood, lasteaed Sauga alevikus.
Kinnistu juurde viib asfaltkattega tee millel on tänavavalgustus.
MÜÜGIHIND SISALDAB
Kogu maja integreeritud mööblit, köögitehnikat, sanitaartehnikat, aknakatteid, valgusteid. Võimalus küsida eraldi muu sisuste osas.
Kui olete otsimas kodu, mis asub looduskaunis asukohas privaatsemana ning uuem maja, siis vaadake seda pakkumist!
Olete oodatud kohapeale tutvuma! Lisaküsimustele vastan meeleldi.
Meie ettevõtte kaudu võimalus tellida eksperthinnang ning saada pankade sooduskoodid lepingutasude tarbeks. Nõustan ning suunan ostjat parima pakkumise saamiseks.
Kinnisvara hindamine ja kinnisvara müük Lahe Kinnisvara kutselistelt hindajatelt ja maakleritel, kes on pälvinud klientide kõrge tunnustuse!




















































