Müügile on tulnud kinnistu miljööväärtuslikul alal koos ehitusprojektiga.
Uuel omanikul võimalik kohe ehitusega alustada, sest kõik load on olemas.
Maksumus sisaldab:
Kinnistu 1491m²
Ehitusluba uue eluhoone ja abihoone rajamiseks
Ehitusluba 3x80m soojuspuurkaevude rajamiseks (hoonete küttelahenduse osa)
Detailne kooskõlastatud arhitektuurne projekt
Detailne kooskõlastatud ehituse tööprojekt, koos kõikide eriosadega
Õueala haljastuse eelprojekt ja kavand
Osaliselt lahendatud sisekujundusprojekt (viiakse lõpuni võimaliku uue omaniku ootustele vastavalt)
Elektriühendus (varasema õhuliini asemele on rajatud äsja uus maa-alune võimsam liin, Elektrilevi paigaldas 2023 novembris krundile uus liitumispunkti, 32A)
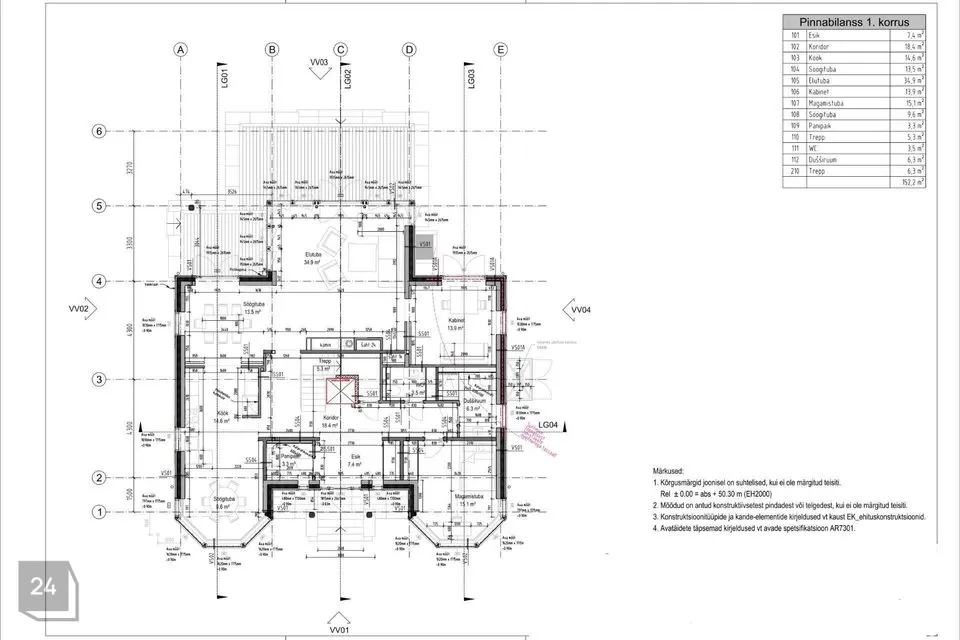
Peahoone on planeeritud ühepereelamuna.
Hoone on projekteeritud kiviseinte ja betoonvahelagedega, nõuetekohase puitvälisvoodriga ja valtsplekk-katusega. Aknad, karniisid, sarikaotsad jms detailid on kõik kavandatud vastavalt projekteerimistingimustele ja lähtuvad algse hoone detailidest.
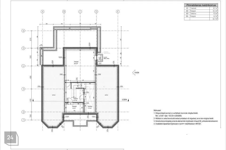
Tehnoruum-küttesülm jms kommunikatsioonid on koondatud keldrikorrusele. Kelderi pind on kokku ca 60m², millest üle poole on üks suur köetav ja ventileeritav ruum (panipaik), mille võib vajadusel samuti eluruumina välja ehitada.
Hoonete küttelahendusena on kavandatud maasoojusküte (3x80 verikaalset puurauku), mida toetab 5,82kW Roofit Solar`i plekkkatusesse integreeritud päikesepaneelide süsteem. Küttesüsteemid on integreeritud põrandatesse. Esimese korruse üldala ja teise korruse 3 magamistuba on varustatud kontrollitava ventilatsiooni- ja jahutussüsteemiga.
Hoone siseplaneeringut on soovi korral võimalik ringi teha (tähendaks küll teatavaid lisakulusid ehitusliku tööprojekti osas) aga kindlasti ei saa muuta hoone välisilmet, akende asukohti, räästa kõrgust, akende tehnilist lahendust jms parameetreid - siin on küllaltki ranged ettekirjutused tulenevalt projekteerimistingimustest, miljööväärtuslikust alast ja vana hoone välisilmest.
Saunamaja-abihoone on projekteeritud sisehoovi, vastu naaberkinnistute tulemüüre, stiililt sarnane elumaja välisilmele. Abihoone osa on ka uus (vastu naabrite tulemüüre) rajatav iseseisev tulemüür, mis moodustab hoone ”tagaseina”. Hoone on projekteeritud puitkonstruktsioonil ühekordse rajatisena ja valtsplekk-katusega, sisaldades puhkeruumi, sauna ja kuuri. Hoone küttesüsteem on seotud peamajaga.
Praeguseks hetkeks on olemas kõik load ja kooskõlastused, samuti detailne tööprojekt. Tõsisel huvilisel on võimalik asuda koheselt ehitama, kõik eeldused selleks on loodud.
Võta minuga ühendust ja küsi lisa!
JAGA MINU KONTAKTI KÕIGILE, KES VAJAVAD KINNISVARANÕU!
- - - - - - - - - -
Telli hindamine UUS MAA Kinnisvarabüroolt ***@***.ee
ning saad:
- Eksperthinnangu kuni 20% soodsamalt kui võtad koduga seotud laenu Swedbankist
- Pankadest parimad kodulaenutingimused
- Kiireima, kvaliteetseima ning usaldusväärseima hindamisteenuse Eestis
UUS MAA KINNISVARABÜROO EKSPERTHINNANGUID AKTSEPTEERIVAD KÕIK FINANTSASUTUSED.
- - - - - - - - - -
Liitu Uus Maa uudiskirjaga ja saa homset kinnisvarainfot juba täna!
https://www.uusmaa.ee/uudiskirjagaliitumine/
- - - - - - - - - -
Kodu aitab osta Swedbank.
Pakkumise saamiseks kasuta koodi UUSMAA ja Sind teenindatakse eelisjärjekorras.
Võtame ühendust 1 tööpäeva jooksul.
Uus Maa kliendile soodsam lepingutasu. Küsi täpsemat infot maaklerilt.
Finantsteenuseid pakub Swedbank AS. Tutvu tingimustega, pea nõu.
JAGA MINU KONTAKTI KÕIGILE, KES VAJAVAD KINNISVARANÕU!
- - - - - - - - - -
Telli hindamine UUS MAA Kinnisvarabüroolt https://uusmaa.ee/teenused/hindamine/
ning saad:
- Eksperthinnangu kuni 20% soodsamalt kui võtad koduga seotud laenu Swedbankist
- Pankadest parimad kodulaenutingimused
- Kiire, kvaliteetse ning usaldusväärse hindamisteenuse Eestis
UUS MAA KINNISVARABÜROO EKSPERTHINNANGUID AKTSEPTEERIVAD KÕIK FINANTSASUTUSED.
- - - - - - - - - -
Liitu Uus Maa uudiskirjaga ja saa homset kinnisvarainfot juba täna!
https://www.uusmaa.ee/uudiskirjagaliitumine/
- - - - - - - - - -
Kodu aitab osta Swedbank.
Pakkumise saamiseks kasuta koodi UUSMAA ja Sind teenindatakse eelisjärjekorras.
Võtame ühendust 1 tööpäeva jooksul.
Uus Maa kliendile soodsam lepingutasu. Küsi täpsemat infot maaklerilt.
Finantsteenuseid pakub Swedbank AS. Tutvu tingimustega, pea nõu.
Uuel omanikul võimalik kohe ehitusega alustada, sest kõik load on olemas.
Maksumus sisaldab:
Kinnistu 1491m²
Ehitusluba uue eluhoone ja abihoone rajamiseks
Ehitusluba 3x80m soojuspuurkaevude rajamiseks (hoonete küttelahenduse osa)
Detailne kooskõlastatud arhitektuurne projekt
Detailne kooskõlastatud ehituse tööprojekt, koos kõikide eriosadega
Õueala haljastuse eelprojekt ja kavand
Osaliselt lahendatud sisekujundusprojekt (viiakse lõpuni võimaliku uue omaniku ootustele vastavalt)
Elektriühendus (varasema õhuliini asemele on rajatud äsja uus maa-alune võimsam liin, Elektrilevi paigaldas 2023 novembris krundile uus liitumispunkti, 32A)
Peahoone on planeeritud ühepereelamuna.
Hoone on projekteeritud kiviseinte ja betoonvahelagedega, nõuetekohase puitvälisvoodriga ja valtsplekk-katusega. Aknad, karniisid, sarikaotsad jms detailid on kõik kavandatud vastavalt projekteerimistingimustele ja lähtuvad algse hoone detailidest.
Tehnoruum-küttesülm jms kommunikatsioonid on koondatud keldrikorrusele. Kelderi pind on kokku ca 60m², millest üle poole on üks suur köetav ja ventileeritav ruum (panipaik), mille võib vajadusel samuti eluruumina välja ehitada.
Hoonete küttelahendusena on kavandatud maasoojusküte (3x80 verikaalset puurauku), mida toetab 5,82kW Roofit Solar`i plekkkatusesse integreeritud päikesepaneelide süsteem. Küttesüsteemid on integreeritud põrandatesse. Esimese korruse üldala ja teise korruse 3 magamistuba on varustatud kontrollitava ventilatsiooni- ja jahutussüsteemiga.
Hoone siseplaneeringut on soovi korral võimalik ringi teha (tähendaks küll teatavaid lisakulusid ehitusliku tööprojekti osas) aga kindlasti ei saa muuta hoone välisilmet, akende asukohti, räästa kõrgust, akende tehnilist lahendust jms parameetreid - siin on küllaltki ranged ettekirjutused tulenevalt projekteerimistingimustest, miljööväärtuslikust alast ja vana hoone välisilmest.
Saunamaja-abihoone on projekteeritud sisehoovi, vastu naaberkinnistute tulemüüre, stiililt sarnane elumaja välisilmele. Abihoone osa on ka uus (vastu naabrite tulemüüre) rajatav iseseisev tulemüür, mis moodustab hoone ”tagaseina”. Hoone on projekteeritud puitkonstruktsioonil ühekordse rajatisena ja valtsplekk-katusega, sisaldades puhkeruumi, sauna ja kuuri. Hoone küttesüsteem on seotud peamajaga.
Praeguseks hetkeks on olemas kõik load ja kooskõlastused, samuti detailne tööprojekt. Tõsisel huvilisel on võimalik asuda koheselt ehitama, kõik eeldused selleks on loodud.
Võta minuga ühendust ja küsi lisa!
JAGA MINU KONTAKTI KÕIGILE, KES VAJAVAD KINNISVARANÕU!
- - - - - - - - - -
Telli hindamine UUS MAA Kinnisvarabüroolt ***@***.ee
ning saad:
- Eksperthinnangu kuni 20% soodsamalt kui võtad koduga seotud laenu Swedbankist
- Pankadest parimad kodulaenutingimused
- Kiireima, kvaliteetseima ning usaldusväärseima hindamisteenuse Eestis
UUS MAA KINNISVARABÜROO EKSPERTHINNANGUID AKTSEPTEERIVAD KÕIK FINANTSASUTUSED.
- - - - - - - - - -
Liitu Uus Maa uudiskirjaga ja saa homset kinnisvarainfot juba täna!
https://www.uusmaa.ee/uudiskirjagaliitumine/
- - - - - - - - - -
Kodu aitab osta Swedbank.
Pakkumise saamiseks kasuta koodi UUSMAA ja Sind teenindatakse eelisjärjekorras.
Võtame ühendust 1 tööpäeva jooksul.
Uus Maa kliendile soodsam lepingutasu. Küsi täpsemat infot maaklerilt.
Finantsteenuseid pakub Swedbank AS. Tutvu tingimustega, pea nõu.
JAGA MINU KONTAKTI KÕIGILE, KES VAJAVAD KINNISVARANÕU!
- - - - - - - - - -
Telli hindamine UUS MAA Kinnisvarabüroolt https://uusmaa.ee/teenused/hindamine/
ning saad:
- Eksperthinnangu kuni 20% soodsamalt kui võtad koduga seotud laenu Swedbankist
- Pankadest parimad kodulaenutingimused
- Kiire, kvaliteetse ning usaldusväärse hindamisteenuse Eestis
UUS MAA KINNISVARABÜROO EKSPERTHINNANGUID AKTSEPTEERIVAD KÕIK FINANTSASUTUSED.
- - - - - - - - - -
Liitu Uus Maa uudiskirjaga ja saa homset kinnisvarainfot juba täna!
https://www.uusmaa.ee/uudiskirjagaliitumine/
- - - - - - - - - -
Kodu aitab osta Swedbank.
Pakkumise saamiseks kasuta koodi UUSMAA ja Sind teenindatakse eelisjärjekorras.
Võtame ühendust 1 tööpäeva jooksul.
Uus Maa kliendile soodsam lepingutasu. Küsi täpsemat infot maaklerilt.
Finantsteenuseid pakub Swedbank AS. Tutvu tingimustega, pea nõu.






























