MÜÜDUD!
Soovikorral võimalus küsida infot sarnaste objektide kohta harjumaal!
Müüa energiatõhus ja kaasaegne pereelamu roheluses Kiisa alevikus
KASUTUSLUBA OLEMAS! HINDAMISAKT OLEMAS!
Revali tänaval, Kiisa rahulikus ja kiiresti arenevas piirkonnas, ootab uusi elanikke kaasaegne ja funktsionaalselt läbimõeldud ühepereelamu. Maja on äsja valminud ning selle ruumiplaneering ja ehituslik kvaliteet vastavad nõudliku koduotsija ootustele. Tegemist on ideaalse koduga neile, kes hindavad privaatsust, rohelust ja mugavat ühendust Tallinna linnaga.
Olemas kehtiv hindamisakt
PLANEERING JA ELURUUMID
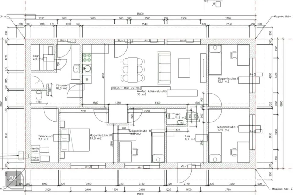
Ühekorruseline 116 m² netopinnaga (130 m² brutopind) elamu pakub avarat ja praktilist elukeskkonda. Maja südames on 38 m² suurune avatud köök-elutuba, mis on valgusküllane ja ühendatud vahetult terrassiala ning aianurgaga. Majja paigaldatakse köögimööbel-see muudab sissekolimise veelgi sujuvamaks.
Elamus on neli mugavat magamistuba (10,6–13,8 m²), mis sobivad ideaalselt nii laste- kui töö- või külalistubadeks. Lisaks asuvad majas ruumikas pesuruum (10,8 m²), leiliruum/saun (2,8 m²), eraldi WC ning tehnoruum (7,1 m²). Esiku suurus on 8,7 m², pakkudes piisavalt ruumi garderoobile ning hooajarõivaste hoiule.
KÜTE JA TEHNOSÜSTEEMID
Maja on varustatud kaasaegse ja energiatõhusa lahendusega: õhk-vesi soojuspump ja vesipõrandaküte tagavad madalad küttekulud ning meeldiva sisekliima aastaringselt. Elektrivarustus on 3x20A, mis katab kõik tänapäevased vajadused. Valguskaabel on juba krundipiiril, võimaldades kiire internetiühenduse loomist.
EHITUSLIKUD JA TEHNILISED ANDMED
Hoone on ehitatud kvaliteetsetest ja vastupidavatest materjalidest ning täidab kõiki kaasaegseid energiatõhususe ja helipidavuse nõudeid. Aknad on kolmekordse klaaspaketiga ning majal on tugev vundament ja hoolikalt teostatud soojustus. Maja ümber rajatakse 43 m² terrassiala – ideaalne koht hommikukohviks või suviseks grillimiseks.
Kasutusluba on olemas.
KINNISTU JA ASUKOHT
950 m² suurune kinnistu pakub piisavalt ruumi nii perele kui aiahuvilistele. Krundil on kõrghaljastus, mis lisab privaatsust ja looduslähedust. Lisaks on kinnistul olemas oma kaev, samas vesi ja kanalisatsioon on ühendatud tsentraalsesse süsteemi – see tähendab madalamaid kulusid ja suuremat kindlust.
Asukoht on Kiisa mõistes ideaalne: rohelus ja rahu kohtuvad tänapäevaste mugavustega. Lähedal asub uus laste mänguväljak, kus väiksemad pereliikmed saavad turvaliselt mängida. Keila jõgi kulgeb vaid mõnesaja meetri kaugusel ning liivarannaga ujumiskoht jääb umbes 200 meetri kaugusele – suurepärane koht suviseks lõõgastuseks.
Kõik eluks vajalik – kool, lasteaed, rongijaam ja pood – asub jalutuskäigu kaugusel. Hea ühendus Tallinnaga (autoga ca 25–30 min) muudab elu Kiisas eriti mugavaks.
TÄIUSLIK KODU SINU PERELE
Revali tn 14 elamu sobib ideaalselt perele, kes otsib mugavat, funktsionaalset ja ökonoomset kodu rohelises ja hästi ühendatud piirkonnas. Kõik oluline on olemas – kaasaegne planeering, kvaliteetne ehitus, roheline krunt ja mugav asukoht.
Kas see võiks olla Sinu unistuste kodu?
Helista ja lepi kokku külastusaeg – tule avastama oma uut kodu juba täna!
Soovikorral võimalus küsida infot sarnaste objektide kohta harjumaal!
Müüa energiatõhus ja kaasaegne pereelamu roheluses Kiisa alevikus
KASUTUSLUBA OLEMAS! HINDAMISAKT OLEMAS!
Revali tänaval, Kiisa rahulikus ja kiiresti arenevas piirkonnas, ootab uusi elanikke kaasaegne ja funktsionaalselt läbimõeldud ühepereelamu. Maja on äsja valminud ning selle ruumiplaneering ja ehituslik kvaliteet vastavad nõudliku koduotsija ootustele. Tegemist on ideaalse koduga neile, kes hindavad privaatsust, rohelust ja mugavat ühendust Tallinna linnaga.
Olemas kehtiv hindamisakt
PLANEERING JA ELURUUMID
Ühekorruseline 116 m² netopinnaga (130 m² brutopind) elamu pakub avarat ja praktilist elukeskkonda. Maja südames on 38 m² suurune avatud köök-elutuba, mis on valgusküllane ja ühendatud vahetult terrassiala ning aianurgaga. Majja paigaldatakse köögimööbel-see muudab sissekolimise veelgi sujuvamaks.
Elamus on neli mugavat magamistuba (10,6–13,8 m²), mis sobivad ideaalselt nii laste- kui töö- või külalistubadeks. Lisaks asuvad majas ruumikas pesuruum (10,8 m²), leiliruum/saun (2,8 m²), eraldi WC ning tehnoruum (7,1 m²). Esiku suurus on 8,7 m², pakkudes piisavalt ruumi garderoobile ning hooajarõivaste hoiule.
KÜTE JA TEHNOSÜSTEEMID
Maja on varustatud kaasaegse ja energiatõhusa lahendusega: õhk-vesi soojuspump ja vesipõrandaküte tagavad madalad küttekulud ning meeldiva sisekliima aastaringselt. Elektrivarustus on 3x20A, mis katab kõik tänapäevased vajadused. Valguskaabel on juba krundipiiril, võimaldades kiire internetiühenduse loomist.
EHITUSLIKUD JA TEHNILISED ANDMED
Hoone on ehitatud kvaliteetsetest ja vastupidavatest materjalidest ning täidab kõiki kaasaegseid energiatõhususe ja helipidavuse nõudeid. Aknad on kolmekordse klaaspaketiga ning majal on tugev vundament ja hoolikalt teostatud soojustus. Maja ümber rajatakse 43 m² terrassiala – ideaalne koht hommikukohviks või suviseks grillimiseks.
Kasutusluba on olemas.
KINNISTU JA ASUKOHT
950 m² suurune kinnistu pakub piisavalt ruumi nii perele kui aiahuvilistele. Krundil on kõrghaljastus, mis lisab privaatsust ja looduslähedust. Lisaks on kinnistul olemas oma kaev, samas vesi ja kanalisatsioon on ühendatud tsentraalsesse süsteemi – see tähendab madalamaid kulusid ja suuremat kindlust.
Asukoht on Kiisa mõistes ideaalne: rohelus ja rahu kohtuvad tänapäevaste mugavustega. Lähedal asub uus laste mänguväljak, kus väiksemad pereliikmed saavad turvaliselt mängida. Keila jõgi kulgeb vaid mõnesaja meetri kaugusel ning liivarannaga ujumiskoht jääb umbes 200 meetri kaugusele – suurepärane koht suviseks lõõgastuseks.
Kõik eluks vajalik – kool, lasteaed, rongijaam ja pood – asub jalutuskäigu kaugusel. Hea ühendus Tallinnaga (autoga ca 25–30 min) muudab elu Kiisas eriti mugavaks.
TÄIUSLIK KODU SINU PERELE
Revali tn 14 elamu sobib ideaalselt perele, kes otsib mugavat, funktsionaalset ja ökonoomset kodu rohelises ja hästi ühendatud piirkonnas. Kõik oluline on olemas – kaasaegne planeering, kvaliteetne ehitus, roheline krunt ja mugav asukoht.
Kas see võiks olla Sinu unistuste kodu?
Helista ja lepi kokku külastusaeg – tule avastama oma uut kodu juba täna!





































