Avar ja mitmekülgsete võimalustega maja Kilingi-Nõmme keskuses!
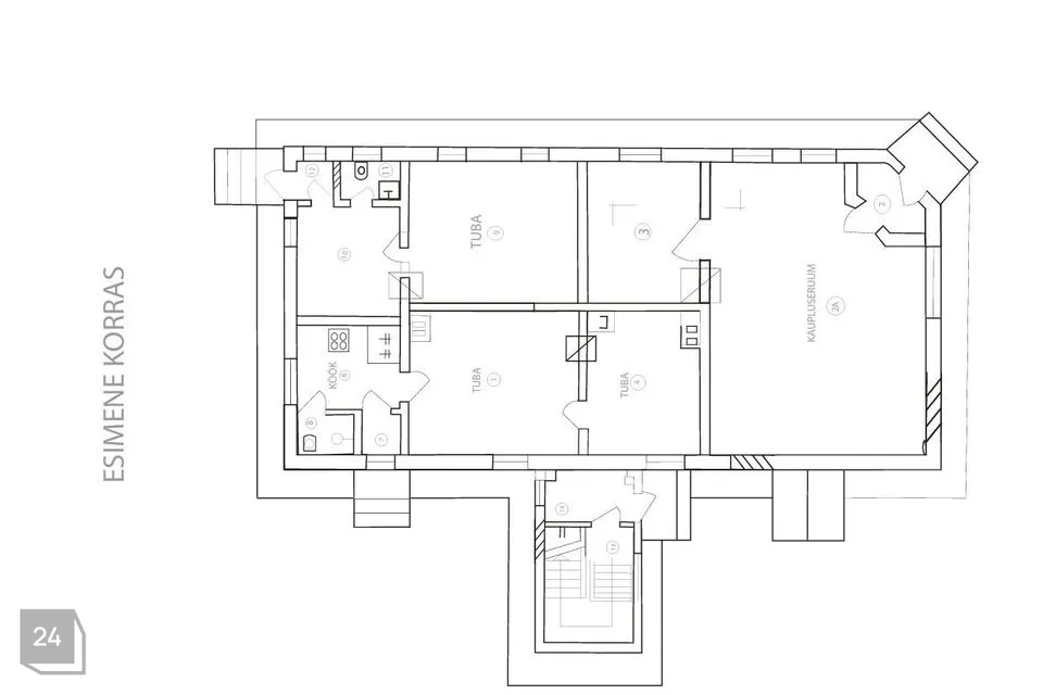
Müügis on perspektiivikas kahekorruseline maja, mis pakub suurepäraseid võimalusi nii elamiseks kui ka äritegevuseks. Hoones on kolm korterit ja kaks äripinda, mistõttu sobib see ideaalselt nii koduks kui ka investeerimisobjektiks.
Peamised omadused:
Ehitusaasta: Ehitusregistri andmetel on kasutusele võetud 1948a., kuid tegelik ehitusaasta on 1938.
Seisukord: Vanusele vastavalt heas korras, tehtud mitmeid uuendusi
Elektrivarustus: Osaliselt uuendatud juhtmestik, peakaitse 100A
Vee- ja kanalisatsioonisüsteem: Osaliselt uuendatud
Küttesüsteem: 7 ahju ja 3 soojamüüriga pliiti
Lisakütteallikad: 4 õhksoojuspumpa (seadustamisel)
Fassaad ja katus: Uuendatud 2005. aastal
Kinnistu suurus: 2500 m²
Maja juurde kuulub avar kinnistu, kus paiknevad lisaks peamajale kuurid koos pesuköögiga ning laohoone. Suur krunt annab rohkelt arendamisvõimalusi – pesuköögist võib kujundada mõnusa saunamaja ning renoveerimist vajav laohoone võib tulevikus pakkuda lisatulu rendipinnana.
Ideaalne investeering!
Maja on täna täies mahus kaetud kehtivate rendilepingutega, mis tagab stabiilse igakuise passiivse sissetuleku.
Võta meiega ühendust ja tule tutvuma selle ainulaadse kinnisvaravõimalusega Kilingi-Nõmme südames!
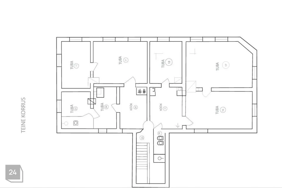
Müügis on perspektiivikas kahekorruseline maja, mis pakub suurepäraseid võimalusi nii elamiseks kui ka äritegevuseks. Hoones on kolm korterit ja kaks äripinda, mistõttu sobib see ideaalselt nii koduks kui ka investeerimisobjektiks.
Peamised omadused:
Ehitusaasta: Ehitusregistri andmetel on kasutusele võetud 1948a., kuid tegelik ehitusaasta on 1938.
Seisukord: Vanusele vastavalt heas korras, tehtud mitmeid uuendusi
Elektrivarustus: Osaliselt uuendatud juhtmestik, peakaitse 100A
Vee- ja kanalisatsioonisüsteem: Osaliselt uuendatud
Küttesüsteem: 7 ahju ja 3 soojamüüriga pliiti
Lisakütteallikad: 4 õhksoojuspumpa (seadustamisel)
Fassaad ja katus: Uuendatud 2005. aastal
Kinnistu suurus: 2500 m²
Maja juurde kuulub avar kinnistu, kus paiknevad lisaks peamajale kuurid koos pesuköögiga ning laohoone. Suur krunt annab rohkelt arendamisvõimalusi – pesuköögist võib kujundada mõnusa saunamaja ning renoveerimist vajav laohoone võib tulevikus pakkuda lisatulu rendipinnana.
Ideaalne investeering!
Maja on täna täies mahus kaetud kehtivate rendilepingutega, mis tagab stabiilse igakuise passiivse sissetuleku.
Võta meiega ühendust ja tule tutvuma selle ainulaadse kinnisvaravõimalusega Kilingi-Nõmme südames!
KOSK KINNISVARABÜROO – 15+ aastat usaldusväärset kinnisvarateenust Pärnus, Tallinnas ja üle Eesti!
Eesti Kinnisvaramaaklerite Koja liige
Suhtluskeeled: EST • ENG • FIN • RUS • GER
Kosk Kinnisvara – Pärnu kontor: Pikk 11, Pärnu (De Lange Ärimaja, II korrus)

























































