Pakkuda on müügiks rekonstrueerimisjärgus elamu, kus ostja saab veel kõike muuta ja oma tahtmisi ellu viia.
Neljal eri tasapinnal elamul on varasemalt katusekate uuendatud.
Praeguseks on sokkel ja välisseinad soojustatud (PUR vaht), on rajatud välisdrenaaž ja sadevete imbsüsteem.
Seest on põranda-, seina- ja laekatted välja lõhutud. Suurem osa mustast tööst on ära tehtud.
Põhikorrusel on paigaldatud uud olulisemad kanalisatsioonitrassid.
Elamuni on juba varasemalt toodud linna vee-, kanalisatsiooni-, ja gaasitrass.
Tööstusvool, peakaitse 25A.
Kinnistu on korrastatud, vana haljastus eemaldatud.
On suurendatud huumushorisondi paksust.
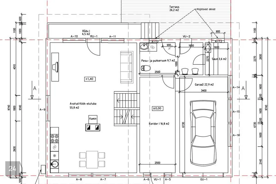
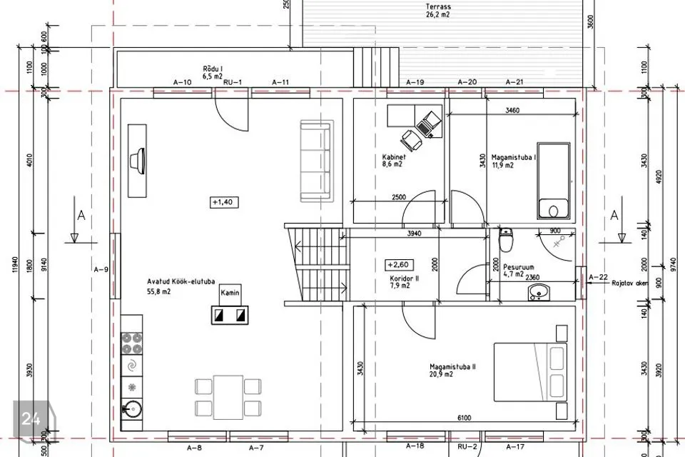
Projektijärgne suletud netopind 203,5 m2, eluruumide pind 123,4 m2 ja keldrikorruse pind 49,5 m2.
Projektijärgne tubade arv 4, san.ruumid on ette nähtud kahel korrusel.
Ehitustööd on teostanud kohalik ehitusfirma, mis võib ka ehitustegevust jätkata.






















