Kaasaegne ridaelamu Järvekülas!
Müüa energiasäästlik ridaelamu Tallinna ja Peetri piiril, vaikses ja rohelises Järvekülas.
Asukoht Ülemiste järve ja Vana-Tartu maantee vahel tagab rahuliku elukeskkonna ning kiire ühenduse linnaga.
Läheduses koolid, lasteaiad, poed ja kergliiklusteed.
Kivimaja, vesipõrandaküte (iga ruum eraldi reguleeritav), soojustagastusega sundventilatsioon.
Läbimõeldud planeering ja kvaliteetne viimistlus!
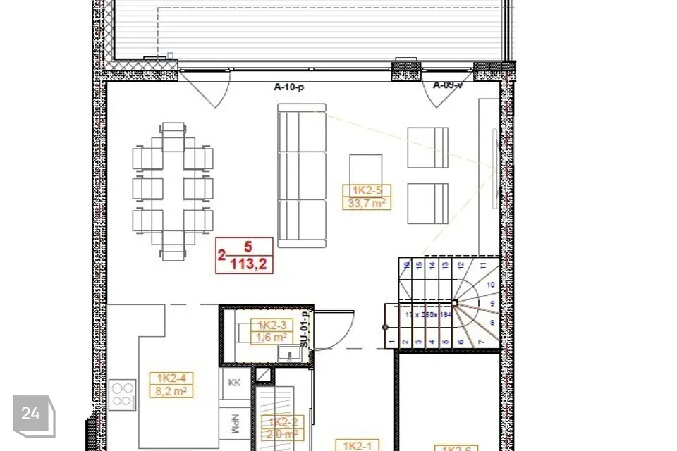
Eluruumide pind: 113,2 m²
Terrass: 24 m²
Hoov: 180 m²
Parkimine: 3 kohta maja ees.
I korrus: avatud köök-elutuba pääsuga terrassile, WC, tehnoruum
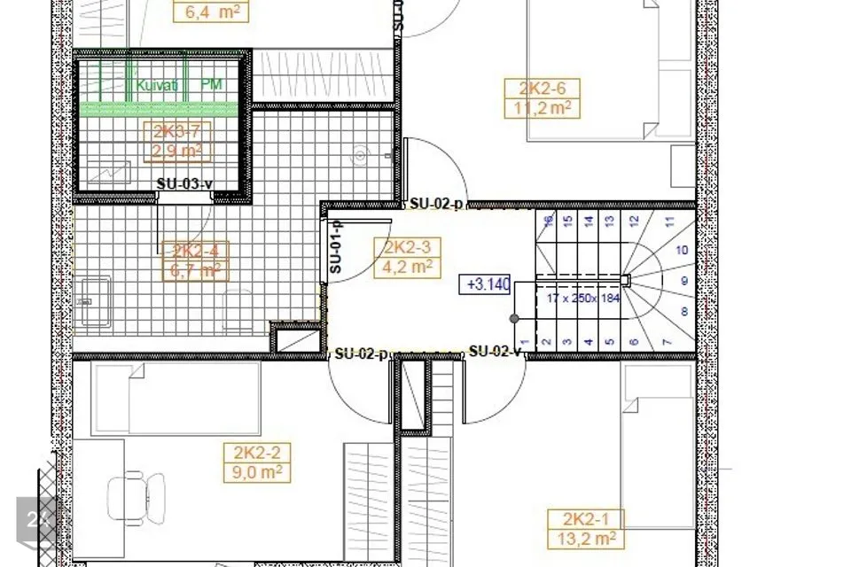
II korrus: 3 magamistuba, garderoob, vannituba, saun.
Tegemist on kvaliteetselt ehitatud, ökonoomse ja hubase koduga looduslähedases keskkonnas. Küsi ka partnerpakkumiste kohta!
Kodu aitab osta Swedbank:
- Pakkumise saamiseks kasuta koodi OBERHAUS ja Teid teenindatakse eelisjärjekorras.
Haldur võtab Teiega ühendust 1 tööpäeva jooksul.
-Swedbanki klientidele hindamisteenus Ober-Hausist soodsamalt.
Lisainfo: swedbank.ee/kodulaen
Pakkumine kehtib, kui ostad kodu Ober-Haus Kinnisvara vahendusel. Kodulaenu pakub Swedbank AS. Tutvuge tingimustega ja pea nõu www.swedbank.ee.
Müüa energiasäästlik ridaelamu Tallinna ja Peetri piiril, vaikses ja rohelises Järvekülas.
Asukoht Ülemiste järve ja Vana-Tartu maantee vahel tagab rahuliku elukeskkonna ning kiire ühenduse linnaga.
Läheduses koolid, lasteaiad, poed ja kergliiklusteed.
Kivimaja, vesipõrandaküte (iga ruum eraldi reguleeritav), soojustagastusega sundventilatsioon.
Läbimõeldud planeering ja kvaliteetne viimistlus!
Eluruumide pind: 113,2 m²
Terrass: 24 m²
Hoov: 180 m²
Parkimine: 3 kohta maja ees.
I korrus: avatud köök-elutuba pääsuga terrassile, WC, tehnoruum
II korrus: 3 magamistuba, garderoob, vannituba, saun.
Tegemist on kvaliteetselt ehitatud, ökonoomse ja hubase koduga looduslähedases keskkonnas. Küsi ka partnerpakkumiste kohta!
Kodu aitab osta Swedbank:
- Pakkumise saamiseks kasuta koodi OBERHAUS ja Teid teenindatakse eelisjärjekorras.
Haldur võtab Teiega ühendust 1 tööpäeva jooksul.
-Swedbanki klientidele hindamisteenus Ober-Hausist soodsamalt.
Lisainfo: swedbank.ee/kodulaen
Pakkumine kehtib, kui ostad kodu Ober-Haus Kinnisvara vahendusel. Kodulaenu pakub Swedbank AS. Tutvuge tingimustega ja pea nõu www.swedbank.ee.























































