Müüa ehitusloaga korterelamu arendusprojekt Põltsamaal. Tegu on hoone ümberehituse ehitusprojektiga ehk olemasolev hoone tuleb renoveerida ja hoonele on võimalus taotleda KREDEX rekonstrueerimistoetust. Toetuse määr kuni 50%.
Kinnistupindala 4972 m2. Hoone suletud netopind 584,2 m2
Eluruumide pind on 349,7 m2 ja koosneb korteritest:
Korter 1, 2 toaline 43,7 m2
Korter 2, 2 toaline 42,3 m2
Korter 3, 2 toaline 44,5 m2
Korter 4, 2 toaline 44 m2
Korter 5, 2 toaline 43,7 m2
Korter 6, 2 toaline 44,6m2
Korter 7, 2 toaline 42,2 m2
Korter 8, 2 toaline 44,7 m2
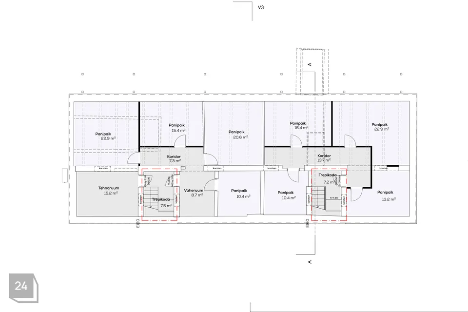
Soklikorrusel paiknevad panipaigad, jalgrattaruum, lapsevankrite ruum, tehnoruumid. Igale korterile on planeeritud kindel parkimiskoht kinnistul ja panipaik. Üldkasutatav pind kokku 234,5m2
HIND SISALDAB :
• Valmis ehitusprojekti. (EHR-is ehitusteatis nr. 231****/18398)
• Liitumised vee- ja kanalisatsioonitrassiga
• Elektriliitumine 63A
• Side liitumine (valguskaabel)
• Keskküttekattel (vedelkütte katel- mahuti+katel+süsteem+radiaatorid.)
Lisainfot valla ja aleviku kohta leiate allolevatelt linkidelt:
https://www.poltsamaa.ee/uldinfo
https://visitpoltsamaa.com/


















