Müüa omal ajal suurusugusena ehitatud villa tüüpi eramu, mis vajab kaasajastamist ja kohatist remonti.
Maja võib uue omaniku poolt leida kasutust suure pere koduna, kuhu mahuks lahedalt elama mitu põlvkonda.
Teatud ümberehitustega saaks hoone muuta üürimajaks ning pakkuda klientidele tubade kaupa koduselt hubast majutusteenust.
MAJA
Tuntud arhitekti A. Ringo poolt projekteeritud eksklusiivne eramu sai lõplikult valmis 1996 a.
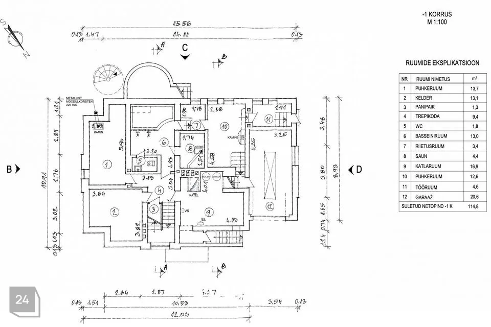
Majal on 3 maapealset elukorrust ja -1 keldrikorrus, kus asuvad tehnilised- ja abiruumid ning saun koos pesu- ja puhkeruumidega.
Välisseinad on laotud betoonplokkidest, fassaadil on kasutatud silikaattellist ja bituumensindel katet. Betoonsokkel on kaetud looduskivi puruga sokliplaadiga. Katusekatteks on profiilplekk. Algupärased puitaknad on vahetatud plastraamidel pakettakende vastu.
Sisehoovis on ülakorruse rõdule pääsuks paigaldatud metallist keerdtrepp.
SISELAHENDUS
Maja keldrikorrusele on kaks ligipääsu eluruumidest ja kaks sissepääsu väljast. Lisaks tehnilistele abiruumidele asub seal basseiniga pesuruum/WC ja leiliruum. Kahes puhkeruumis on kaminad, millest üks vajab korrastamist.
Kanaliga garaažist on sissepääs ka eluruumidesse.
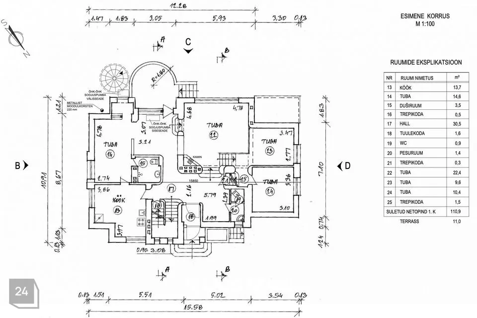
Välisuksest sisenedes on esmalt tuulekoda ja seejärel avar esik. Samal tasapinnal on köök, söögituba ja tagahoovi väljapääs. Mõned astmed kõrgemal on kõrge laega elutuba koos kaminaga. Poolkorruse jagu kõrgemal on lugemistuba ja magamistuba. Sealt edasi viib trepp järgmiste magamistubadeni, mille juurde kuulub ka pesuruum/WC ja väike rõdu. Magamistubade koridorist avaneb n-ö siserõdudelt vaade suurde elutuppa.
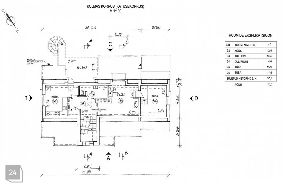
Ülemine korrus on kasutuses privaatse elamispinnana, mida võimaldab sisehoovi keerdtrepi kaudu sissepääs. Korrusel on elu- ja magamistuba, köök, pesuruum/WC ja ilusa vaatega suur rõdu.
TEHNILINE INFO
Maja on peamiselt elektriküttel, kuid toetatud õhksoojuspumba ja kaminatega. Kunagi on kasutuses olnud Bullerjan tahkekütusega ahi, kuid selle töökorras olekut peab spetsialist üle vaatama.
Kinnistul on liitumine tsentraalse vee- ja kanalisatsioonitrassiga. Sadevee drenaaž hoonel puudub.
Ventilatsioon on loomulik, tuulutus uste ja akende kaudu, väljatõmbesüsteemid köögikubudest.
Läbi korruste on rajatud valmidus kesktolmuimeja paigaldamiseks.
LÄHIÜMBRUS JA TRANSPORT
Suur-Kuke tänav on ühesuunaline ja asub parajal kaugusel Pärnu kesklinnast. Supelranda jalutamine võtab ca 20 minutit.
Mõnesaja meetri kaugusel asub Ülejõe Selver ja Maxima XXX. Läheduses on ka Pärnu Spordihall ja Tennisekeskus.
Lähim bussipeatus on A. H. Tammsaare pst. nurgal, suurem bussiliiklus on käepärast Riia mnt. ääres.
Kui soovid tulevikus elada Pärnu hinnatud piirkonnas ja omada suurt kivimaja, siis lähema info saamiseks võta minuga ühendust.
JAGA MINU KONTAKTI KÕIGILE, KES VAJAVAD KINNISVARANÕU!
- - - - - - - - - -
Telli hindamine UUS MAA Kinnisvarabüroolt https://uusmaa.ee/teenused/hindamine/
ning saad:
- Eksperthinnangu kuni 20% soodsamalt kui võtad koduga seotud laenu Swedbankist
- Pankadest parimad kodulaenutingimused
- Kiire, kvaliteetse ning usaldusväärse hindamisteenuse Eestis
UUS MAA KINNISVARABÜROO EKSPERTHINNANGUID AKTSEPTEERIVAD KÕIK FINANTSASUTUSED.
- - - - - - - - - -
Liitu Uus Maa uudiskirjaga ja saa homset kinnisvarainfot juba täna!
https://www.uusmaa.ee/uudiskirjagaliitumine/
- - - - - - - - - -
Kodu aitab osta Swedbank.
Pakkumise saamiseks kasuta koodi UUSMAA ja Sind teenindatakse eelisjärjekorras.
Võtame ühendust 1 tööpäeva jooksul.
Uus Maa kliendile soodsam lepingutasu. Küsi täpsemat infot maaklerilt.
Finantsteenuseid pakub Swedbank AS. Tutvu tingimustega, pea nõu.
Maja võib uue omaniku poolt leida kasutust suure pere koduna, kuhu mahuks lahedalt elama mitu põlvkonda.
Teatud ümberehitustega saaks hoone muuta üürimajaks ning pakkuda klientidele tubade kaupa koduselt hubast majutusteenust.
MAJA
Tuntud arhitekti A. Ringo poolt projekteeritud eksklusiivne eramu sai lõplikult valmis 1996 a.
Majal on 3 maapealset elukorrust ja -1 keldrikorrus, kus asuvad tehnilised- ja abiruumid ning saun koos pesu- ja puhkeruumidega.
Välisseinad on laotud betoonplokkidest, fassaadil on kasutatud silikaattellist ja bituumensindel katet. Betoonsokkel on kaetud looduskivi puruga sokliplaadiga. Katusekatteks on profiilplekk. Algupärased puitaknad on vahetatud plastraamidel pakettakende vastu.
Sisehoovis on ülakorruse rõdule pääsuks paigaldatud metallist keerdtrepp.
SISELAHENDUS
Maja keldrikorrusele on kaks ligipääsu eluruumidest ja kaks sissepääsu väljast. Lisaks tehnilistele abiruumidele asub seal basseiniga pesuruum/WC ja leiliruum. Kahes puhkeruumis on kaminad, millest üks vajab korrastamist.
Kanaliga garaažist on sissepääs ka eluruumidesse.
Välisuksest sisenedes on esmalt tuulekoda ja seejärel avar esik. Samal tasapinnal on köök, söögituba ja tagahoovi väljapääs. Mõned astmed kõrgemal on kõrge laega elutuba koos kaminaga. Poolkorruse jagu kõrgemal on lugemistuba ja magamistuba. Sealt edasi viib trepp järgmiste magamistubadeni, mille juurde kuulub ka pesuruum/WC ja väike rõdu. Magamistubade koridorist avaneb n-ö siserõdudelt vaade suurde elutuppa.
Ülemine korrus on kasutuses privaatse elamispinnana, mida võimaldab sisehoovi keerdtrepi kaudu sissepääs. Korrusel on elu- ja magamistuba, köök, pesuruum/WC ja ilusa vaatega suur rõdu.
TEHNILINE INFO
Maja on peamiselt elektriküttel, kuid toetatud õhksoojuspumba ja kaminatega. Kunagi on kasutuses olnud Bullerjan tahkekütusega ahi, kuid selle töökorras olekut peab spetsialist üle vaatama.
Kinnistul on liitumine tsentraalse vee- ja kanalisatsioonitrassiga. Sadevee drenaaž hoonel puudub.
Ventilatsioon on loomulik, tuulutus uste ja akende kaudu, väljatõmbesüsteemid köögikubudest.
Läbi korruste on rajatud valmidus kesktolmuimeja paigaldamiseks.
LÄHIÜMBRUS JA TRANSPORT
Suur-Kuke tänav on ühesuunaline ja asub parajal kaugusel Pärnu kesklinnast. Supelranda jalutamine võtab ca 20 minutit.
Mõnesaja meetri kaugusel asub Ülejõe Selver ja Maxima XXX. Läheduses on ka Pärnu Spordihall ja Tennisekeskus.
Lähim bussipeatus on A. H. Tammsaare pst. nurgal, suurem bussiliiklus on käepärast Riia mnt. ääres.
Kui soovid tulevikus elada Pärnu hinnatud piirkonnas ja omada suurt kivimaja, siis lähema info saamiseks võta minuga ühendust.
JAGA MINU KONTAKTI KÕIGILE, KES VAJAVAD KINNISVARANÕU!
- - - - - - - - - -
Telli hindamine UUS MAA Kinnisvarabüroolt https://uusmaa.ee/teenused/hindamine/
ning saad:
- Eksperthinnangu kuni 20% soodsamalt kui võtad koduga seotud laenu Swedbankist
- Pankadest parimad kodulaenutingimused
- Kiire, kvaliteetse ning usaldusväärse hindamisteenuse Eestis
UUS MAA KINNISVARABÜROO EKSPERTHINNANGUID AKTSEPTEERIVAD KÕIK FINANTSASUTUSED.
- - - - - - - - - -
Liitu Uus Maa uudiskirjaga ja saa homset kinnisvarainfot juba täna!
https://www.uusmaa.ee/uudiskirjagaliitumine/
- - - - - - - - - -
Kodu aitab osta Swedbank.
Pakkumise saamiseks kasuta koodi UUSMAA ja Sind teenindatakse eelisjärjekorras.
Võtame ühendust 1 tööpäeva jooksul.
Uus Maa kliendile soodsam lepingutasu. Küsi täpsemat infot maaklerilt.
Finantsteenuseid pakub Swedbank AS. Tutvu tingimustega, pea nõu.







































































