KLIENDIPÄEV!
Mina korraldan kliendipäeva, sina vali aeg!
Müüa väga hea planeeringuga avar ja energiasäästlik uuema poolsem maja (B - ENERGIAKLASS!)
Elamu ökonoomsuse tagavad maaküte, soojustagastusega ventilatsioon ja 3 kordsed pakettaknad.
Planeering:
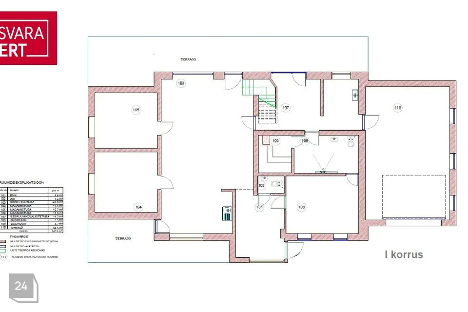
Elamu I korrus:
Esik - 9,6m²
Elutuba / köök - 41,0 m²
Magamistuba - 12,9 m²
Magamistuba - 11,5 m²
Magamistuba - 10,7 m²
Sauna eesruum/
majapidamisruum - 14,3 m²
Duširuum/wc - 7,5 m²
Saun - 3,7 m²
Väike tualettruum - 1,4 m²
Garaaž - 34,6 m²
I korrus kokku - 147,2m²
II korrus:
Trepihall - 14,8m²
Magamistuba - 14,7m²
Magamistuba - 14,8m²
II korrus kokku: 42,9m²
Elamu suletud netopind 190,1m²
Lisaks suur hoovipoolne terrass ja maja esine terrass.
Elamu I korruse kõrgete lagedega suur ja avar elutuba koos köögiga.
Elamu on projekteeritud lähtudes erinevate perede vajadusest.
Majas on 5 eraldi magamistuba ja ruumikas saunaeesruum/majapidamisruum.
Majas on wc/duširuum koos saunaga ning eraldiseisev väike tualettruum. Saunamõnude täielikuks nautimiseks on otse pääs terrassile ja hoovi.
Suurele privaatsele terrassile saad paigutada mugava aiamööbli, kus koos kogu pere ja sõpradega võimalik nautida nii päikesetõusu hommikukohviga, kui ka mõnusaid peoõhtuid.
LÕVIKÜLA TUTVUSTUS
Lõviküla on toimiv elukeskkond, kuhu on oma kodu rajanud juba üle 70 pere. Need pered on Lõvikülast kujundanud sõbraliku kogukonna ja turvalise elukoha nii küla väikestele, kui suurematele elanikele. Lõvikülas on tegus külaselts, mis korraldab mitmeid ühistegevusi ja koosviibimisi, nagu näiteks talgupäevad ja Lõviküla jaanipidu.
Laste kasvatamine ja koolitamine on Lõvikülas mugav. Pisikeste haridustee saab alata kodu lähedal, kus paikneb mitu lasteaeda ja põhikool, ning jätkata Pärnus, kuhu saab laps iseseisvalt ühistransporti kasutades või kergliiklusteed pidi jalgrattal.
Lõviküla läheduses paikneb mitmeid vaba aja veetmise ja sportimise võimalusi nagu Valgeranna Golf, Valgeranna liivarand, Audru spordihoone ja staadion, seikluspark, matka- ja suusarajad, ringrada ning Audru – Pärnu kergliiklustee.
Pärnu ja Lõviküla koduteele on ehitatud kaks uut toidukauplust (COOP, Selver).
Lähim söögikoht on Valgeranna golfiklubi.
Elamule tellitud uus köök - paigaldus september 2025!
****
KINNISVARAEKSPERT tegutseb Eesti turul alates 1993. aastast. Meie Bürood asuvad Tallinnas ja Pärnus ning teenindame teid üle Eesti. Koostööpartnerite Nord Prime Capital ja Alliance Group UAB kaudu oleme esindatud ka Lätis ning Leedus.
Pakume maaklerteenust, hindamist ja kinnisvaraalast nõustamisteenust nii era- kui ka ärisektoris.
Kinnisvaraekspert teeb tihedat koostööd maailma suurimate kinnisvarafirmade hulka kuuluva ettevõttega Cushman & Wakefield. Meie koostöösidemed ulatuvad peale Balti riikide ja Põhjamaade pea kõikidesse maailmajagudesse.
Lisainfo ja teenuste tellimine:
Tallinnas: +372 *******
Pärnus: +372 *******
Rohkem infot leiad www.kinnisvaraekspert.ee
***
Mina korraldan kliendipäeva, sina vali aeg!
Müüa väga hea planeeringuga avar ja energiasäästlik uuema poolsem maja (B - ENERGIAKLASS!)
Elamu ökonoomsuse tagavad maaküte, soojustagastusega ventilatsioon ja 3 kordsed pakettaknad.
Planeering:
Elamu I korrus:
Esik - 9,6m²
Elutuba / köök - 41,0 m²
Magamistuba - 12,9 m²
Magamistuba - 11,5 m²
Magamistuba - 10,7 m²
Sauna eesruum/
majapidamisruum - 14,3 m²
Duširuum/wc - 7,5 m²
Saun - 3,7 m²
Väike tualettruum - 1,4 m²
Garaaž - 34,6 m²
I korrus kokku - 147,2m²
II korrus:
Trepihall - 14,8m²
Magamistuba - 14,7m²
Magamistuba - 14,8m²
II korrus kokku: 42,9m²
Elamu suletud netopind 190,1m²
Lisaks suur hoovipoolne terrass ja maja esine terrass.
Elamu I korruse kõrgete lagedega suur ja avar elutuba koos köögiga.
Elamu on projekteeritud lähtudes erinevate perede vajadusest.
Majas on 5 eraldi magamistuba ja ruumikas saunaeesruum/majapidamisruum.
Majas on wc/duširuum koos saunaga ning eraldiseisev väike tualettruum. Saunamõnude täielikuks nautimiseks on otse pääs terrassile ja hoovi.
Suurele privaatsele terrassile saad paigutada mugava aiamööbli, kus koos kogu pere ja sõpradega võimalik nautida nii päikesetõusu hommikukohviga, kui ka mõnusaid peoõhtuid.
LÕVIKÜLA TUTVUSTUS
Lõviküla on toimiv elukeskkond, kuhu on oma kodu rajanud juba üle 70 pere. Need pered on Lõvikülast kujundanud sõbraliku kogukonna ja turvalise elukoha nii küla väikestele, kui suurematele elanikele. Lõvikülas on tegus külaselts, mis korraldab mitmeid ühistegevusi ja koosviibimisi, nagu näiteks talgupäevad ja Lõviküla jaanipidu.
Laste kasvatamine ja koolitamine on Lõvikülas mugav. Pisikeste haridustee saab alata kodu lähedal, kus paikneb mitu lasteaeda ja põhikool, ning jätkata Pärnus, kuhu saab laps iseseisvalt ühistransporti kasutades või kergliiklusteed pidi jalgrattal.
Lõviküla läheduses paikneb mitmeid vaba aja veetmise ja sportimise võimalusi nagu Valgeranna Golf, Valgeranna liivarand, Audru spordihoone ja staadion, seikluspark, matka- ja suusarajad, ringrada ning Audru – Pärnu kergliiklustee.
Pärnu ja Lõviküla koduteele on ehitatud kaks uut toidukauplust (COOP, Selver).
Lähim söögikoht on Valgeranna golfiklubi.
Elamule tellitud uus köök - paigaldus september 2025!
****
KINNISVARAEKSPERT tegutseb Eesti turul alates 1993. aastast. Meie Bürood asuvad Tallinnas ja Pärnus ning teenindame teid üle Eesti. Koostööpartnerite Nord Prime Capital ja Alliance Group UAB kaudu oleme esindatud ka Lätis ning Leedus.
Pakume maaklerteenust, hindamist ja kinnisvaraalast nõustamisteenust nii era- kui ka ärisektoris.
Kinnisvaraekspert teeb tihedat koostööd maailma suurimate kinnisvarafirmade hulka kuuluva ettevõttega Cushman & Wakefield. Meie koostöösidemed ulatuvad peale Balti riikide ja Põhjamaade pea kõikidesse maailmajagudesse.
Lisainfo ja teenuste tellimine:
Tallinnas: +372 *******
Pärnus: +372 *******
Rohkem infot leiad www.kinnisvaraekspert.ee
***






































