Kiviõli linna külje all müüa endine kauplusehoone koos kõrvalhoonetega.
See maja on ka varasematel aastatel pakkunud kohvi ja jahutavat keelekastet.
Miks ei võiks olla see ka täna suuremate koosviibimiste korralamise keskus?
Kohaliku omavalitsuse kinnitusel on vajadusel võimalik kasutuse sihtotstarvet muuta elamuks.
MAJA:
Massiivsed paekivist seinad, sileplekk katus, puitaknad, põrandad plaaditud.
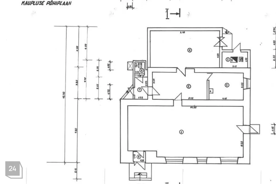
Suletud pind kauplusel 172m2.
Koosseisu kuulub 85m2 suurune müügisaal, 38m2 saal, mis oli kasutusel kohvikuna, laoruum 22m2, kontor, köök, WC ja katlaruum.
KOMMUNIKATSIOONID:
Vesi: tsetraalne vesi.
Elektrivõimsus: 3x20A.
Küte: lokaalne keskküte- tahkeküttega katel ja radiaatorid (vajavab renoveerimist).
KÕRVALHOONE:
On silikaatkivist seintega.
Ehitusaluse pinnaga 92,1m2.
Katus vajab vahetust.
MAAKELDER:
Paekivist seintega 2-korruseline maakelder.
Lae kõrgus ca 5m.
Hea ligipääs:
*asfalttee
*kergliiklustee
*bussipeatuse kõrval.
*parkimine lahendatav kinnistul
Kontekteeru!
Minul on Sinu jaoks aega.






















