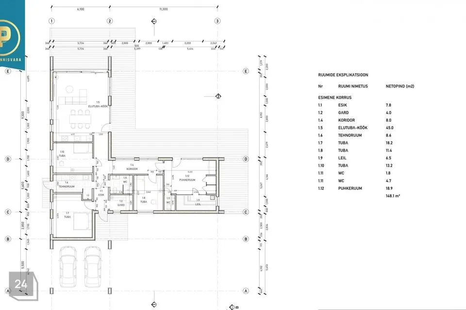
Spithami poolsaarele, merest 150 m kaugusele (mere ja kodu vahele jääb väike metsasalu, mis aitab tuulte eest varjus olla), alustatakse 148 m2 perekodu rajamist. Ehitatav kodu on väga hea planeeringuga, jagades magamisruumid, elutoa ja saunakompleksi mõnusalt erinevate majaosade vahel ära, et üks ei sega teist. Lisaks loomulikult päikesepoolne, terve maja perimeetrit laiuv, terrass. Kahele autole varjualune ja lisaks parkimiskohad maja ees.
Kogu majja paigaldatakse põrandaküte (õhk-vesi kütteagredaadi toel), soojustagastusega sundventilatsioon, päikesepoolsele katusele päikesepark ja laest alla ulatuva kamina valmidus. Siseviimistlust planeeritutakse hetkel minimalistlikult lihvitud betoonpõrandad ja heledaks värvitud seinad. Loomulikult paigaldatakse kogu sanitaartehnika ja ehitatakse valmis saunaruumid.
Pakutava kodu kohta lisainformatsiooni saamiseks palun võtke minuga ühendust!
Plus Kinnisvarabüroo on butiikstiilis kinnisvarabüroo neile, kes hindavad personaalset lähenemist.
Plus Kinnisvarabüroo keskendub kvaliteedile, mitte kvantiteedile. Iga klient on meie jaoks tähtis ning töötame oma kliendi maksimaalse heaolu nimel!
Teenused, mida pakume:
Elamispindade müük, üürimine ja haldamine
Äripindade müük ja üürimine
Arendusprojektide müük
Investeerimisobjektide müük
Kinnisvara hinnastamine
Kinnisvara ostuesindus
Kinnisvara müügiks ettevalmistamine
Omame kontakte kõikides Eesti pankades ja läbi meie ostes saate laenulepingu soodustust, kiiremat teenindust ning professionaalset abi!
Rohkem infot meist ja meie teenustest / inimestest: www.plus.ee
Kogu majja paigaldatakse põrandaküte (õhk-vesi kütteagredaadi toel), soojustagastusega sundventilatsioon, päikesepoolsele katusele päikesepark ja laest alla ulatuva kamina valmidus. Siseviimistlust planeeritutakse hetkel minimalistlikult lihvitud betoonpõrandad ja heledaks värvitud seinad. Loomulikult paigaldatakse kogu sanitaartehnika ja ehitatakse valmis saunaruumid.
Pakutava kodu kohta lisainformatsiooni saamiseks palun võtke minuga ühendust!
Plus Kinnisvarabüroo on butiikstiilis kinnisvarabüroo neile, kes hindavad personaalset lähenemist.
Plus Kinnisvarabüroo keskendub kvaliteedile, mitte kvantiteedile. Iga klient on meie jaoks tähtis ning töötame oma kliendi maksimaalse heaolu nimel!
Teenused, mida pakume:
Elamispindade müük, üürimine ja haldamine
Äripindade müük ja üürimine
Arendusprojektide müük
Investeerimisobjektide müük
Kinnisvara hinnastamine
Kinnisvara ostuesindus
Kinnisvara müügiks ettevalmistamine
Omame kontakte kõikides Eesti pankades ja läbi meie ostes saate laenulepingu soodustust, kiiremat teenindust ning professionaalset abi!
Rohkem infot meist ja meie teenustest / inimestest: www.plus.ee















