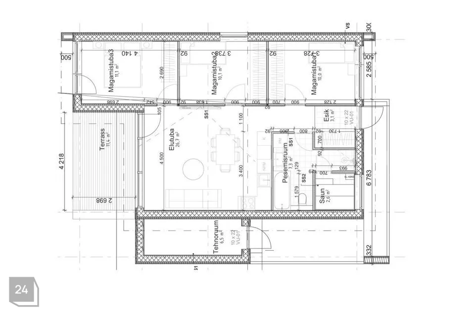
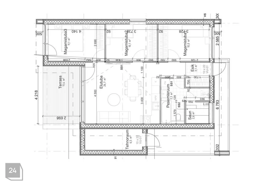
Müüa valmimisjärgus kompaktne 3 magamistoa ja saunaga peremaja. Elamu planeering on hästi läbimõeldud ja pakub head võimalused mõnusaks olemiseks. Elutoa kõrged aknad avanevad terrassi poole, mis muudavad elamise valgusküllasemaks ning loovad visuaalselt lisaruumi.
Hind ei sisalda köögimööblit ja tänavasillutist.
Maja on projekteeritud B-energiaklassi, olemas on soojustagastusega ventilatsioon.
Kütteks: õhk-vesi soojuspump põrandakütte lahendusena.
Majas on tsentraalne vesi-kanalisatsioon, elekter.
Planeering: esik, wc, saun koos pesemisruumiga, kolm magamistuba, avatud köögiga elutuba ja tehnoruum. Väljast sisenetav panipaik.
Majaga tutvumiseks palun aega broneerida telefoni või e-kirja teel.
Hind ei sisalda köögimööblit ja tänavasillutist.
Maja on projekteeritud B-energiaklassi, olemas on soojustagastusega ventilatsioon.
Kütteks: õhk-vesi soojuspump põrandakütte lahendusena.
Majas on tsentraalne vesi-kanalisatsioon, elekter.
Planeering: esik, wc, saun koos pesemisruumiga, kolm magamistuba, avatud köögiga elutuba ja tehnoruum. Väljast sisenetav panipaik.
Majaga tutvumiseks palun aega broneerida telefoni või e-kirja teel.
































