NB! SELLE PIIRKONNA ELAMUEHITUST TOETAB RAHALISELT MES.
Pank annab teada, et aksepteerime omafinantseeringuna MES kaaslaenu.
See tähendab, et pank ja riik aitavad Sul ehitada ning soovi korral ka ilma esmase omafinantseeringuta.
Taotluste vastuvõtt on jõus 2025. aasta lõpuni!
Arendatav piirkond on 21 ha suurune maaala.
Jagatud on see 17-s kinnistuks.
Arendaja on ehitanud teed, rajab kinnistule veevarustuse, kanalisatsiooni ning kogu arendusele elektritaristu.
Elekterivõrgu väljaehitus on lõppenud.
Meie poolt pakutavas võtmed kätte hinnas on:
1. Kinnistu suurusega 17255 m2.
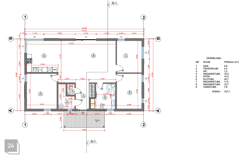
2. Eramu „Mill 107“ suurusega 107 m2, vastavus A energiaklassile.
3. Puurkaev, reovee kanaliseerimiseks on biopuhasti.
4. Elektri (3*20A) liitumine on tasutud. Katusel on päikesepaneelid, salvestamiseks oma akupank.
5. Maja on siseviimistlusega.
Seinad ja laed on viimistletud värvitud puitplaatidega, põrandaid katab laminaatparkett.
Majas on sisseehitatud L-kujuline köögimööbel, roostevabast terasest valamu ja segistiga.
(ei sisalda köögitehnikat)
Sisseehitatud esikumööbel lükanduste, sahtlite ja peegliga.
wc ja vannituba on ilma lõppviimistluseta ja on viimistletud niiskuskindla kipsplaadiga Knauf Green. (Vajalik on ostja juhised kanalisatsiooni rajamiseks.)
6. Maja küte on õhk-vesisoojuspumbal baseeruv küttesüsteem põrandakütte kontuuriga.
Põrandakütte kontroll ja programmeeritav kaugjuhtimispuldiga ruumitermostaat.
7. Ventilatsioon - soojustagastusega.
8. Pakkumine sissaldab maja ehitust, lubatud kommunikatsioonide rajamist.
9. Anname Teile üle registris oleva maja.
Kui meie pakkumine on Teile atraktiivne, siis võiksime jätkata detailsemalt ehitatava maja tutvustamisega.
Lisaks majale saaksin Teile tutvustada ka finantsinstrumente maja ostuks.
Maja valmimise eelduseks on lepingu sõlmimine.
Maja valmib 2025. aastal.
Et paremini saada ülevaadet kogu arendusest, siis palume külastada ka meie kodulehte: https://sepakula.ee
Vaata kaarti ja leia sobiv krunt.
Kui Sul on paat ja kalapüük on hobi, siis linnu-lennut 3 km kaugusel saab leida ka paadile kodu.
Pildid leiad galleriist.
Vana Sepaküla on hoolitsetud.
Muru on niidetud ning vana ja väärtuslik uuele elule aidatud.
Vaata viimaseid pilte.
Kindlasti on küsimusi.
Seega palun julgelt kontakteeruda ja selgitame pikemalt ning põhjalikumalt.
Meil on Sinu jaoks aega!





































