ELAMUMAA
Müüki on tulnud elamumaa- ideaalne elamukrunt, Maidla külas, Keila jõe ääres.
Krunt asub kõigest 5 min kaugusel Maidla järvest ning Tallinna piirist 18 km kaugusel.
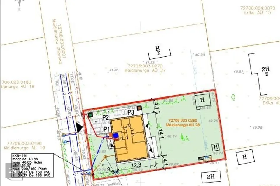
Krundi suurus on 1000m2.
Tsentraalse vee ja kanalisatsiooniga.
On olemas detailplaneering.
HOOV
Hoov on ilusti korras hoitud.
Hoovil suvemajake koos köögi ja magamisruumidega.
Lisaks on WC ja panipaik.
Hoovil abihoone/kuur.
ÜMBRUS / TRANSPORT
Maidlanurga AÜ 28 asub Maidla külas, Saue vallas, Harjumaal – piirkonnas, mis pakub rahulikku elukeskkonda koos mitmete mugavustega, teostatakse õigeaegset lumekoristust. Tänavad asfalteeritud ja on olemas tänavavalgustus. Tallinna kesklinn jääb umbes 30-minutilise autosõidu kaugusele, võimaldades kiiret ühendust pealinnaga. Piirkonda teenindavad bussid ja rongid, lähim bussipeatus ja rongijaam asuvad Kiisas, pakkudes head ühendust Tallinna ja teiste asulate ning linnadega. Lähimad koolid ja lasteaiad asuvad Saue linnas, mis on vaid lühikese autosõidu kaugusel, pakkudes kvaliteetset haridust ja lastehoiuteenuseid.
Elamukeskond on vaikne ja rahulik, ümbruses asuvad kaunid männi- ja sega metsad. Sobib suurepäraselt nädalalõppudeks, suveks või ka püsivaks elamiseks.
LISAINFO
Helista ja küsi lisainfot! Oled oodatud elamumaaga tutvuma.
Müüki on tulnud elamumaa- ideaalne elamukrunt, Maidla külas, Keila jõe ääres.
Krunt asub kõigest 5 min kaugusel Maidla järvest ning Tallinna piirist 18 km kaugusel.
Krundi suurus on 1000m2.
Tsentraalse vee ja kanalisatsiooniga.
On olemas detailplaneering.
HOOV
Hoov on ilusti korras hoitud.
Hoovil suvemajake koos köögi ja magamisruumidega.
Lisaks on WC ja panipaik.
Hoovil abihoone/kuur.
ÜMBRUS / TRANSPORT
Maidlanurga AÜ 28 asub Maidla külas, Saue vallas, Harjumaal – piirkonnas, mis pakub rahulikku elukeskkonda koos mitmete mugavustega, teostatakse õigeaegset lumekoristust. Tänavad asfalteeritud ja on olemas tänavavalgustus. Tallinna kesklinn jääb umbes 30-minutilise autosõidu kaugusele, võimaldades kiiret ühendust pealinnaga. Piirkonda teenindavad bussid ja rongid, lähim bussipeatus ja rongijaam asuvad Kiisas, pakkudes head ühendust Tallinna ja teiste asulate ning linnadega. Lähimad koolid ja lasteaiad asuvad Saue linnas, mis on vaid lühikese autosõidu kaugusel, pakkudes kvaliteetset haridust ja lastehoiuteenuseid.
Elamukeskond on vaikne ja rahulik, ümbruses asuvad kaunid männi- ja sega metsad. Sobib suurepäraselt nädalalõppudeks, suveks või ka püsivaks elamiseks.
LISAINFO
Helista ja küsi lisainfot! Oled oodatud elamumaaga tutvuma.






















































