Pärnu kesklinnas asuv detailplaneeringuga krunt, mis on hoonestatud renoveerimist vajava puitelamuga ning kuhu saab lisaks ehitada kuni 4 korteriga (korter)maja. Krundi eriliseks väärtuseks on sinna rajatud dendroaed, mis oma koosluselt ja liigirikkuselt on olnud ainulaadne kogu Eestis, millest tänaseks on säilinud peamiselt kõrghaljastus. Kinnistu sobib nii oma kodu rajamiseks kui väiksemaks kinnisvaraarendusprojektiks.
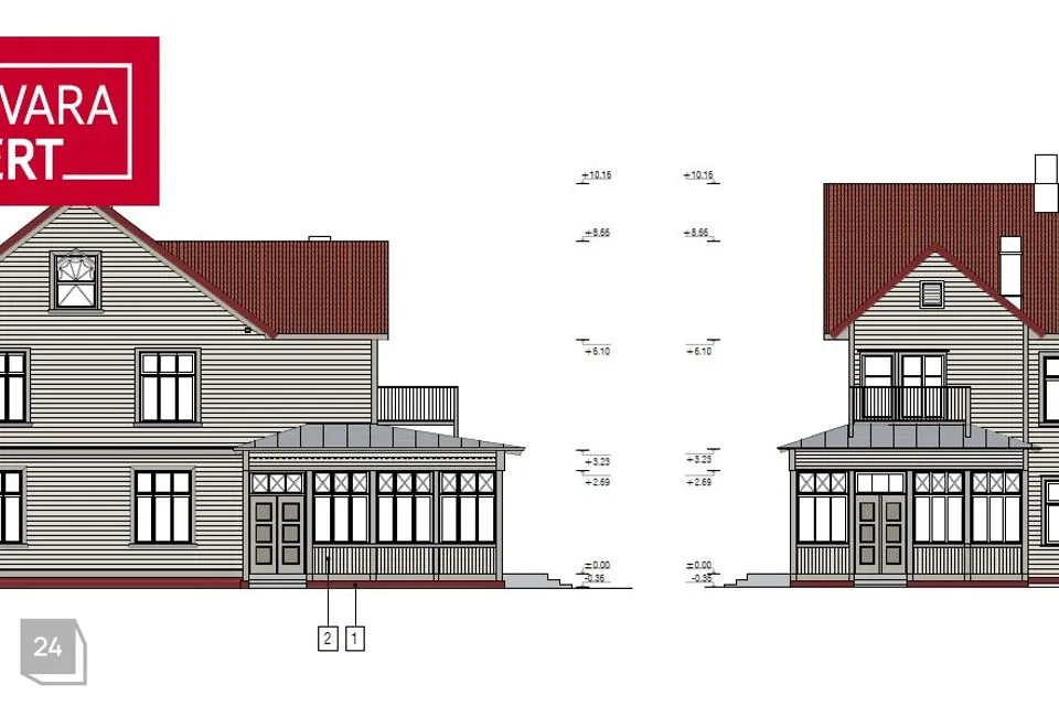
Krundi sügavuses paiknevale elamule on koostatud rekonstrueerimise ja laiendamise projekt, mille järgselt on hoone baasilt võimalik ehitada kuni 2 korteriga ja III korruseline hoone suletud netopinnaga 164 m². Projektijärgse lahendusena hakkaksid hoones paiknema 2 korterit pindadega 61 m² ja 90 m². Soovi korral võimalik hoone ümberprojekteerida ühepereelamuks.
Tänavaäärne uus hoonestusmaht tuleb projekteerida vastavuses detailplaneeringu nõuetega - kogu kinnistu lubatud hoonestusalune pind on 340 m², hoonete arv krundil 2 + 2 väikeehitist, suurim lubatud kõrgus 9 m, maksimaalne korterite arv 6. Krundi lubatud sihtotstarve on korterelamumaa 70-100% ja kaubandus-toitlustus-teenindushoone maa 0-30%, mis võimaldab kinnistu hoonestada nii ainult eluhoonetega kui kasutada tänavaäärset hoonestust osaliselt äriotstarbel. Kinnistu omaniku poolt on koostatud tänavaäärse hoonestuse eskiisjoonised, mille alusel paikneks kahekorruselises hoones 4 korterit (kaks kahe- ja kaks kolmetoalist), korterite kogupinnaga 265 m². Kõik tehnovõrkude liitumispunktid asuvad kohe Suur-Sepa tänaval.
Lisainfo saamiseks ja projektide/joonistega tutvumiseks palun ühendust võtta.
****
KINNISVARAEKSPERT tegutseb Eesti turul alates 1993. aastast. Meie Bürood asuvad Tallinnas ja Pärnus ning teenindame teid üle Eesti. Koostööpartnerite Nord Prime Capital ja Alliance Group UAB kaudu oleme esindatud ka Lätis ning Leedus.
Pakume maaklerteenust, hindamist ja kinnisvaraalast nõustamisteenust nii era- kui ka ärisektoris.
Kinnisvaraekspert teeb tihedat koostööd maailma suurimate kinnisvarafirmade hulka kuuluva ettevõttega Cushman & Wakefield. Meie koostöösidemed ulatuvad peale Balti riikide ja Põhjamaade pea kõikidesse maailmajagudesse.
Rohkem infot leiad www.kinnisvaraekspert.ee
***
Krundi sügavuses paiknevale elamule on koostatud rekonstrueerimise ja laiendamise projekt, mille järgselt on hoone baasilt võimalik ehitada kuni 2 korteriga ja III korruseline hoone suletud netopinnaga 164 m². Projektijärgse lahendusena hakkaksid hoones paiknema 2 korterit pindadega 61 m² ja 90 m². Soovi korral võimalik hoone ümberprojekteerida ühepereelamuks.
Tänavaäärne uus hoonestusmaht tuleb projekteerida vastavuses detailplaneeringu nõuetega - kogu kinnistu lubatud hoonestusalune pind on 340 m², hoonete arv krundil 2 + 2 väikeehitist, suurim lubatud kõrgus 9 m, maksimaalne korterite arv 6. Krundi lubatud sihtotstarve on korterelamumaa 70-100% ja kaubandus-toitlustus-teenindushoone maa 0-30%, mis võimaldab kinnistu hoonestada nii ainult eluhoonetega kui kasutada tänavaäärset hoonestust osaliselt äriotstarbel. Kinnistu omaniku poolt on koostatud tänavaäärse hoonestuse eskiisjoonised, mille alusel paikneks kahekorruselises hoones 4 korterit (kaks kahe- ja kaks kolmetoalist), korterite kogupinnaga 265 m². Kõik tehnovõrkude liitumispunktid asuvad kohe Suur-Sepa tänaval.
Lisainfo saamiseks ja projektide/joonistega tutvumiseks palun ühendust võtta.
****
KINNISVARAEKSPERT tegutseb Eesti turul alates 1993. aastast. Meie Bürood asuvad Tallinnas ja Pärnus ning teenindame teid üle Eesti. Koostööpartnerite Nord Prime Capital ja Alliance Group UAB kaudu oleme esindatud ka Lätis ning Leedus.
Pakume maaklerteenust, hindamist ja kinnisvaraalast nõustamisteenust nii era- kui ka ärisektoris.
Kinnisvaraekspert teeb tihedat koostööd maailma suurimate kinnisvarafirmade hulka kuuluva ettevõttega Cushman & Wakefield. Meie koostöösidemed ulatuvad peale Balti riikide ja Põhjamaade pea kõikidesse maailmajagudesse.
Rohkem infot leiad www.kinnisvaraekspert.ee
***





















