Müügile on tulnud kehtiva ehitusloaga mereäärne arenduskinnistu Liimala külas Lüganuse vallas!
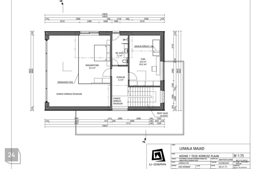
Arhitekt Uko Künnap poolt projekteeritud elamud on disainitud arvestades energiasäästu ja head sisekliima omadusi!
KRUNTIDE SIHTOTSTARBED 100% elamumaa
KINNISTU PINDALA POOTSMANI 5656 m2
ELAMU 1
EHITISEALUNE PIND 200,3 m2
BRUTOPIND 291,0 m2
NETOPIND 170,7 m2
KÖETAV PIND 170,7 m2
MAAPEALSETE KORRUSTE ARV 2
MAA-ALUSTE KORRUSTE ARV 0
HOONE MAHT 991 m3
KINNISTU PINDALA KAPTENI 1942 m2
-Olemas ehituprojekt ja kehtiv ehitusluba alates 10.09.2021 (5aastat)
-Elektriliitumine 3x25A
-Puurkaev
-Kruntidele on rajatud sissesõiduteed
Läheduses asuvad : Tulivee restoran, Purtse restoran, pruulikoda ja taproom, Purtse kindlus; kiirevooluline Purtse jõgi - ideaalne kanuu matkadeks!
Sadam väikelaevade ja jahtide hoidmiseks!
Suurepärane asukoht merest lõhe ja forelli püüdmiseks!
15 km kaugusel asub Tuhamäe (Kiviõli) matka- ja spordikeskus ning suusamägi talvespordi harrastajatele jne..
Küsi lisainfot maaklerilt!
Arhitekt Uko Künnap poolt projekteeritud elamud on disainitud arvestades energiasäästu ja head sisekliima omadusi!
KRUNTIDE SIHTOTSTARBED 100% elamumaa
KINNISTU PINDALA POOTSMANI 5656 m2
ELAMU 1
EHITISEALUNE PIND 200,3 m2
BRUTOPIND 291,0 m2
NETOPIND 170,7 m2
KÖETAV PIND 170,7 m2
MAAPEALSETE KORRUSTE ARV 2
MAA-ALUSTE KORRUSTE ARV 0
HOONE MAHT 991 m3
KINNISTU PINDALA KAPTENI 1942 m2
-Olemas ehituprojekt ja kehtiv ehitusluba alates 10.09.2021 (5aastat)
-Elektriliitumine 3x25A
-Puurkaev
-Kruntidele on rajatud sissesõiduteed
Läheduses asuvad : Tulivee restoran, Purtse restoran, pruulikoda ja taproom, Purtse kindlus; kiirevooluline Purtse jõgi - ideaalne kanuu matkadeks!
Sadam väikelaevade ja jahtide hoidmiseks!
Suurepärane asukoht merest lõhe ja forelli püüdmiseks!
15 km kaugusel asub Tuhamäe (Kiviõli) matka- ja spordikeskus ning suusamägi talvespordi harrastajatele jne..
Küsi lisainfot maaklerilt!


































