Müüa kehtestatud detailplaneeringuga arendusprojekt.
Müüa suurepärase asukohaga detailplaneeringuga kinnistu.
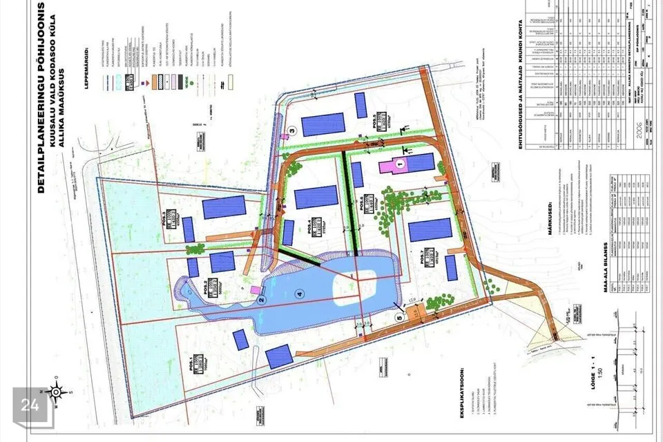
Kinnistul asub tiik ja purskav allikas.
Võimalik ehitada järgmiselt:
Kokku on 12 elamisüksust.
- 2 üksikelamu kinnistut ja abihooned
- 5 kaksikelamu krunti kahe elamisüksusega ja abihooned
Hoonete lubatud kõrgus: 8,5m / 7,5m abihoone
Ehitusalune pind: 180m2 üksikelamu puhul, 320m2 paarismaja puhul
Hoonestuse tüüp kohustuslik, antud piirkonnale iseloomulik – täisviiluga, kaldega 20-50 kraadi ja kogu katuse ulatuses samasugune.
Arendusel puuduvad hetkel teed ja VK trassid. Elekter on kinnistul välja arendatud.
VK ja Tee projektid olemas. Maja projekt olemas
Olemasolev Allika kinnistu pindalaga 33 850 m² jagatud seitsmeks eraldi kinnistuks alljärgnevalt:
Pos.1 Kerioja pindalaga 7060 m², sihtotstarbega 100 % elamumaa; üksikelamu, abihoone
Pos.2 Keriallika pindalaga 5600 m², sihtotstarbega 100 % elamumaa; üksikelamu, abihoone
Pos.3 Kerimetsa pindalaga 4258 m², sihtotstarbega 100 % elamumaa; paariselamu, abihoone
Pos.4 Allika pindalaga 3725 m², sihtotstarbega 100 % elamumaa; paariselamu, abihoone
Pos.5 Keriaia pindalaga 4230 m², sihtotstarbega 100 % elamumaa; paariselamu, abihoone
Pos.6 Kerimäe pindalaga 4030 m², sihtotstarbega 100 % elamumaa; paariselamu, abihoone
Pos.7 Kerikalda pindalaga 4913 m², sihtotstarbega 100 % elamumaa; paariselamu, abihoone
Planeeringu maa-ala asub Kodasoo mõisahoonest, kus asub küla ajalooline keskus, linnulennult umbes 1,5 kilomeetri kaugusel vahetult Tallinn-Narva riigitee ääres. Kodasoo külakeskusega ühendab Allika maaüksust tee, mille lõikumisele Narva maanteega on rajatud viadukt. Planeeringueelse Allika katastriüksuse suuruseks on 33 800 m². Reljeefilt on planeeritav ala liigendatud. Kõrgeim koht asub krundi kaguosas, mille kõrguseks on Balti süsteemis üle 40 meetri. Kirdeosa kõrgendik on tasandil 37.50 – 38.50. Madalamad kohad on krundi lääneosas, kuhu on rajatud tiik. Tiigi kaldad on keskmiselt kõrgusel 35.80. Mõõtmise hetkel oli veepinna kõrguseks 33.89. Territooriumi läbivad elektri õhuliin ning side kaablitrass. Krundi põhjaosa katab mets, kuid suuremal osal planeeringualal on looduslik rohumaa. Allika kinnistul paikneb tiigi ääres väikeehitis– saun ning paar kuuri, mis planeeringu rakendudes lammutatakse.
Hinnale lisandub km.
Unilead Capital Management on Teie kinnisvaratehingu usaldusväärne partner – soovite osta, müüa, üürida, üürile anda, omate elukondlikku-või ärikinnisvara, soovite hoppis kinnisvaraga seotud juriidilist või raamatupidamisalast nõustamist või konsultatsioone kinnisvarasse investeerimisel? Sellisel juhul olete täpselt iges kohas.
Vaata lisainfot www.unilead.eu
Müüa suurepärase asukohaga detailplaneeringuga kinnistu.
Kinnistul asub tiik ja purskav allikas.
Võimalik ehitada järgmiselt:
Kokku on 12 elamisüksust.
- 2 üksikelamu kinnistut ja abihooned
- 5 kaksikelamu krunti kahe elamisüksusega ja abihooned
Hoonete lubatud kõrgus: 8,5m / 7,5m abihoone
Ehitusalune pind: 180m2 üksikelamu puhul, 320m2 paarismaja puhul
Hoonestuse tüüp kohustuslik, antud piirkonnale iseloomulik – täisviiluga, kaldega 20-50 kraadi ja kogu katuse ulatuses samasugune.
Arendusel puuduvad hetkel teed ja VK trassid. Elekter on kinnistul välja arendatud.
VK ja Tee projektid olemas. Maja projekt olemas
Olemasolev Allika kinnistu pindalaga 33 850 m² jagatud seitsmeks eraldi kinnistuks alljärgnevalt:
Pos.1 Kerioja pindalaga 7060 m², sihtotstarbega 100 % elamumaa; üksikelamu, abihoone
Pos.2 Keriallika pindalaga 5600 m², sihtotstarbega 100 % elamumaa; üksikelamu, abihoone
Pos.3 Kerimetsa pindalaga 4258 m², sihtotstarbega 100 % elamumaa; paariselamu, abihoone
Pos.4 Allika pindalaga 3725 m², sihtotstarbega 100 % elamumaa; paariselamu, abihoone
Pos.5 Keriaia pindalaga 4230 m², sihtotstarbega 100 % elamumaa; paariselamu, abihoone
Pos.6 Kerimäe pindalaga 4030 m², sihtotstarbega 100 % elamumaa; paariselamu, abihoone
Pos.7 Kerikalda pindalaga 4913 m², sihtotstarbega 100 % elamumaa; paariselamu, abihoone
Planeeringu maa-ala asub Kodasoo mõisahoonest, kus asub küla ajalooline keskus, linnulennult umbes 1,5 kilomeetri kaugusel vahetult Tallinn-Narva riigitee ääres. Kodasoo külakeskusega ühendab Allika maaüksust tee, mille lõikumisele Narva maanteega on rajatud viadukt. Planeeringueelse Allika katastriüksuse suuruseks on 33 800 m². Reljeefilt on planeeritav ala liigendatud. Kõrgeim koht asub krundi kaguosas, mille kõrguseks on Balti süsteemis üle 40 meetri. Kirdeosa kõrgendik on tasandil 37.50 – 38.50. Madalamad kohad on krundi lääneosas, kuhu on rajatud tiik. Tiigi kaldad on keskmiselt kõrgusel 35.80. Mõõtmise hetkel oli veepinna kõrguseks 33.89. Territooriumi läbivad elektri õhuliin ning side kaablitrass. Krundi põhjaosa katab mets, kuid suuremal osal planeeringualal on looduslik rohumaa. Allika kinnistul paikneb tiigi ääres väikeehitis– saun ning paar kuuri, mis planeeringu rakendudes lammutatakse.
Hinnale lisandub km.
Unilead Capital Management on Teie kinnisvaratehingu usaldusväärne partner – soovite osta, müüa, üürida, üürile anda, omate elukondlikku-või ärikinnisvara, soovite hoppis kinnisvaraga seotud juriidilist või raamatupidamisalast nõustamist või konsultatsioone kinnisvarasse investeerimisel? Sellisel juhul olete täpselt iges kohas.
Vaata lisainfot www.unilead.eu















