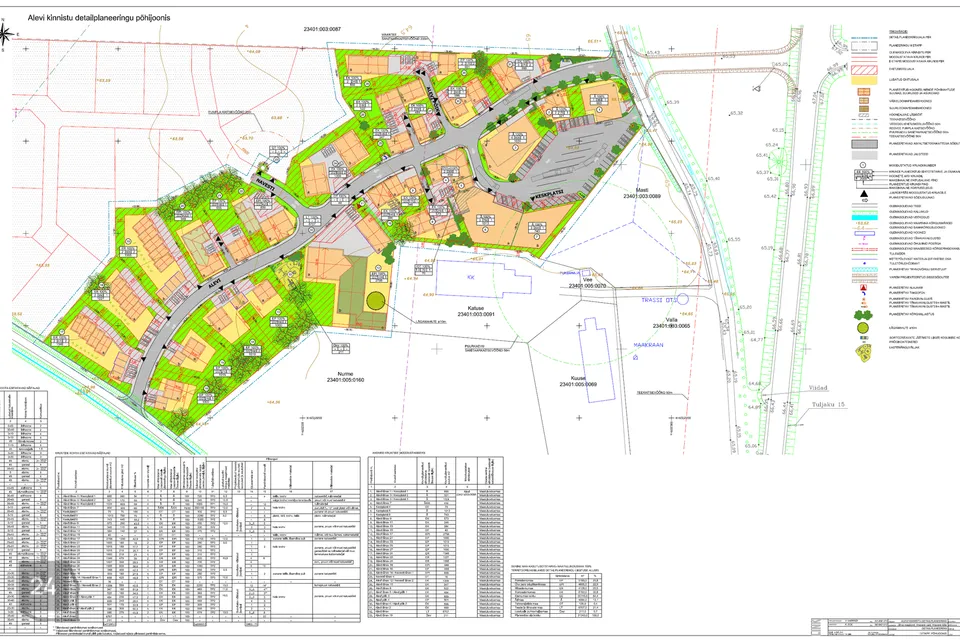
Kehtiv detailplaneering.
Asub Imavere keskuses. Läheduses asuvad poed, kool, lasteaed, Tikupoiss (taluturg ja toitlustus), valla teeninduspunkt, tanklad, Navesti jõgi, Eesti Piimandusmuuseum, kõrts.
Imaveres on palju töökohti tänu seal asuvatele suurtele tootmisettevõtetele.
Lubatud ärihoone.
Parkimiskohti krundil 4tk. Hoone lubatud suurim kõrgus 9,5m, 2 korrust.
Ehitusalune pind 360m2, täisehituse protsent 54%.
Lubatud katusekalle 0-45°.
Välisseinte materjal tellis, krohv. Katusel katusekivi, rullmaterjal.
Hind ei sisalda teede ja tehnovõrkude väljaehitamist ega liitumist tehnovõrkudega.









