Äsja novembris valminud Raadiraja 16 kortermaja on kui kolmas pusletükk Raadiraja Kvartali kaheksast kortermajast koosnevas projektis. See 4-korruseline liftiga maja pakub nutikalt planeeritud 2- ja 3-toalisi kortereid suuruses 37,1–51,8 m². Korterid sobivad hästi esimeseks koduks väiksemale perele, investeeringuks, või neile, kes hindavad mõnusat, kompaktset elamist. Esimesel korrusel on privaatne hooviala ja terrass, teistel korrustel avarad rõdud. Kortermajas on jahutuse valmidus.
Hinnad:
• 2-toalised: 135 900 – 141 900 €
• 3-toalised: 169 900 – 177 900 €
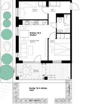
Raadiraja 16 maja 3-toaline korter nr 4 asub esimesel korrusel. Kodu koosneb esikust, avatud köögiga elutoast, kahest magamistoast ja WC/duširuumist. Avar 15,4 m² terrass on justkui sinu isiklik lisatuba vabas õhus. Siia mahub vabalt rohelusest pakatav botaanikaaed, suvine võrkkiik või väike hommikukohvi nurgake, kus päeva rahulikult alustada. Soovi korral saab terrassi klaasida, et nautida loodust igal aastaajal. Terrassilt asub hoone nurga peal, kus on sul ka isiklik hooviala. Betoonist lillekastidega hooviala pakub privaatsust ning ridaelamu tunnet, ja siit saab juba alustada jalutuskäiku kvartalis. Sellele korterile on valitud naturaalsetes toonides "Liivakivi" siseviimistluspakett.
Et paremat ettekujutust tubadest ja rõdust saada, tule vaatama näidiskodu Raadiraja 10 majas, kus on olemas ka siseviimistlusmaterjalide näidised.
Lisade hindade kohta:
• Parkimiskoht: 2500 €
• Rattakoht kahetasandilises rattamajas: 700–900 € (olenevalt asukohast)
• Soe panipaik kortermajas või külm panipaik välises panipaigamajas: 2000–3000 € (olenevalt asukohast)
• Igal korteril on jahutuse valmidus, jahutussseadme saab juurde tellida lisatasu eest.
Köögid ei ole hinna sees, kuid kvaliteetsete köökide valmistaja Arens pakub soodsaid ja kaasaegseid lahendusi.
Tule ja koge seda ise – broneeri aeg ning tutvustan sulle nii Raadiraja kvartalit kui sinu uut võimalikku kodu. Siseviimistluspaketid ja lisainfo leiad: www.raadiraja.ee
Nb! Pildigalerii sisaldab illustreerivaid fotosid ning 2-toalise näidiskodu pilte.
Pangad pakuvad Domus Kinnisvara klientidele eluasemelaenu lepingutasu soodustusi. Küsi lisainfot Domus Kinnisvara maaklerilt või hindajalt.
Müü ja hinda meiega! Teeme kinnisvara müügi Sinu jaoks sujuvaks ja pingevabaks.
Hinnad:
• 2-toalised: 135 900 – 141 900 €
• 3-toalised: 169 900 – 177 900 €
Raadiraja 16 maja 3-toaline korter nr 4 asub esimesel korrusel. Kodu koosneb esikust, avatud köögiga elutoast, kahest magamistoast ja WC/duširuumist. Avar 15,4 m² terrass on justkui sinu isiklik lisatuba vabas õhus. Siia mahub vabalt rohelusest pakatav botaanikaaed, suvine võrkkiik või väike hommikukohvi nurgake, kus päeva rahulikult alustada. Soovi korral saab terrassi klaasida, et nautida loodust igal aastaajal. Terrassilt asub hoone nurga peal, kus on sul ka isiklik hooviala. Betoonist lillekastidega hooviala pakub privaatsust ning ridaelamu tunnet, ja siit saab juba alustada jalutuskäiku kvartalis. Sellele korterile on valitud naturaalsetes toonides "Liivakivi" siseviimistluspakett.
Et paremat ettekujutust tubadest ja rõdust saada, tule vaatama näidiskodu Raadiraja 10 majas, kus on olemas ka siseviimistlusmaterjalide näidised.
Lisade hindade kohta:
• Parkimiskoht: 2500 €
• Rattakoht kahetasandilises rattamajas: 700–900 € (olenevalt asukohast)
• Soe panipaik kortermajas või külm panipaik välises panipaigamajas: 2000–3000 € (olenevalt asukohast)
• Igal korteril on jahutuse valmidus, jahutussseadme saab juurde tellida lisatasu eest.
Köögid ei ole hinna sees, kuid kvaliteetsete köökide valmistaja Arens pakub soodsaid ja kaasaegseid lahendusi.
Tule ja koge seda ise – broneeri aeg ning tutvustan sulle nii Raadiraja kvartalit kui sinu uut võimalikku kodu. Siseviimistluspaketid ja lisainfo leiad: www.raadiraja.ee
Nb! Pildigalerii sisaldab illustreerivaid fotosid ning 2-toalise näidiskodu pilte.
Pangad pakuvad Domus Kinnisvara klientidele eluasemelaenu lepingutasu soodustusi. Küsi lisainfot Domus Kinnisvara maaklerilt või hindajalt.
Müü ja hinda meiega! Teeme kinnisvara müügi Sinu jaoks sujuvaks ja pingevabaks.











































