Sinu uus kodu A-energiaklassiga kortermajades, looduskaunis Natura park elurajoonis.
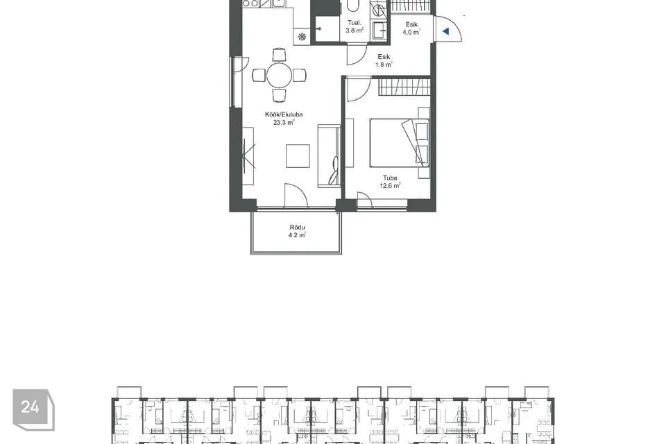
Harku järve vahetus läheduses, rohelises linnapargis on müüa 2-toaline rõduga (4,2 m²) korter.
Antud arenduse neljanda etapi korrusmajade uued kodud on nüüdseks valmis ja võtmed anname üle tehingu päeval.
Korteri koosseisu kuuluvad avatud kööginurgaga elutuba, magamistuba, duširuum ja esik.
Korter asub teisel korrusel ja on nurgapealne, aknad on suunaga sisehoovi ning vaated avanevad hommiku- ja päevapäikesele. Rõdule pääseb mugavalt elutoast.
Korteris siseviimistluspakett Sand mis hõlmab endas tänapäevast minimalistlikku lihtsust. Põrandaid katab kolme lipiline laudparkett. Vannituba plaaditud ja mugavusküttena annab sooja el.põrandaküte.
Igal majal oma gaasikütte katel, korterites veekandjal põrandaküte ja hea sisekliima tagab korteripõhine soojustagastiga sundventilatsioon. Soojust aitavad hoida kolmekordse klaasiga plastikraamidel pakettaknad. Maast-laeni suured aknad toovad tubadesse palju valgust.
Korteri müügihinnas sisaldub Enima köögimööbel koos Electrolux tehnikaga (külmik, nõudepesumasin, induktsioonpliit, küpsetusahi, köögikubu).
Samuti kuulub korteri juurde ja sisaldub juba müügihinnas oma kindel parkimiskoht nr 53 ja mahukas 6,4 m² suurune panipaik maja all (PP30).
Natura Park on Haabersti linnaosas asuv kõrgelt hinnatud roheline elurajoon. Eelnevalt on valminud majad Moonalao, Tagala ja Kotermaa tänaval ning piirkond areneb võimsalt.
Lähedal asub Rimi toidupood, suur Prisma peremarket ning 6 minutilise autosõidu kaugusele jäävad mitmed suured ehituspoe ketid, Unibet Arena, Rocca al Mare Keskus ja Tallinna Loomaaed.
Kergliiklustee ja lähedal asuvad spordiklubid võimaldavad sportlikult vaba aega veeta. Maja vahetus läheduses bussipeatus (buss nr.61 ja 62).
Kõikide korterite info on leitav arenduse kodulehelt: www.naturapark.ee
Lisainfot arenduse ja veel vabade korterite kohta uuri meie konsultantidelt!
Pangad pakuvad Domus Kinnisvara klientidele eluasemelaenu lepingutasu soodustusi. Küsi lisainfot Domus Kinnisvara maaklerilt või hindajalt.
Müü ja hinda meiega! Teeme kinnisvara müügi Sinu jaoks sujuvaks ja pingevabaks.
Harku järve vahetus läheduses, rohelises linnapargis on müüa 2-toaline rõduga (4,2 m²) korter.
Antud arenduse neljanda etapi korrusmajade uued kodud on nüüdseks valmis ja võtmed anname üle tehingu päeval.
Korteri koosseisu kuuluvad avatud kööginurgaga elutuba, magamistuba, duširuum ja esik.
Korter asub teisel korrusel ja on nurgapealne, aknad on suunaga sisehoovi ning vaated avanevad hommiku- ja päevapäikesele. Rõdule pääseb mugavalt elutoast.
Korteris siseviimistluspakett Sand mis hõlmab endas tänapäevast minimalistlikku lihtsust. Põrandaid katab kolme lipiline laudparkett. Vannituba plaaditud ja mugavusküttena annab sooja el.põrandaküte.
Igal majal oma gaasikütte katel, korterites veekandjal põrandaküte ja hea sisekliima tagab korteripõhine soojustagastiga sundventilatsioon. Soojust aitavad hoida kolmekordse klaasiga plastikraamidel pakettaknad. Maast-laeni suured aknad toovad tubadesse palju valgust.
Korteri müügihinnas sisaldub Enima köögimööbel koos Electrolux tehnikaga (külmik, nõudepesumasin, induktsioonpliit, küpsetusahi, köögikubu).
Samuti kuulub korteri juurde ja sisaldub juba müügihinnas oma kindel parkimiskoht nr 53 ja mahukas 6,4 m² suurune panipaik maja all (PP30).
Natura Park on Haabersti linnaosas asuv kõrgelt hinnatud roheline elurajoon. Eelnevalt on valminud majad Moonalao, Tagala ja Kotermaa tänaval ning piirkond areneb võimsalt.
Lähedal asub Rimi toidupood, suur Prisma peremarket ning 6 minutilise autosõidu kaugusele jäävad mitmed suured ehituspoe ketid, Unibet Arena, Rocca al Mare Keskus ja Tallinna Loomaaed.
Kergliiklustee ja lähedal asuvad spordiklubid võimaldavad sportlikult vaba aega veeta. Maja vahetus läheduses bussipeatus (buss nr.61 ja 62).
Kõikide korterite info on leitav arenduse kodulehelt: www.naturapark.ee
Lisainfot arenduse ja veel vabade korterite kohta uuri meie konsultantidelt!
Pangad pakuvad Domus Kinnisvara klientidele eluasemelaenu lepingutasu soodustusi. Küsi lisainfot Domus Kinnisvara maaklerilt või hindajalt.
Müü ja hinda meiega! Teeme kinnisvara müügi Sinu jaoks sujuvaks ja pingevabaks.


























