EELREGISTREERIMISEGA KLIENDIPÄEV 09.12 kell 15:00-17:00.
Igale kliendile võimaldame personaalse tutvumise uue koduga, mistõttu palun anna oma tulekust teada helistades, kirjutades või täites kliendipäeva registeerimisvormi koos soovitud külastusajaga. Kui kliendipäeva aeg Sinu kalendriga ei klapi siis anna julgelt märku ja lepime mõne teise aja kokku.
Oled väga oodatud!
Müüa avar ning valgusküllane 4- toaline perekorter, mille võlu peitub selle avatud planeeringus ning suurepärases asukohas Kiili rohelise elukeskkonna keskmes. A-energiaklassiga maja on väga soodsate ülalpidamiskuludega ning tänu maaküttele ja soojustagastusega ventilatsioonile on see ökonoomseim lahendus turul. Korterite maast laeni aknad annavad palju valgust ning päikesepaistet aastaringselt ning maja ümbritsevad terviserajad ja sportimisvõimalused pakuvad tegevust kogu perele. Suurepärane asukoht Kiili Alevikus annab võimaluse osa saada rohelisest ning perekesksest kasvukeskkonnast, kuid samas olla 20 minuti autosõidu kaugusel Tallinna Kesklinnast. Läheduses asuvad koolid, lasteaiad, IKEA kaubanduskeskus ning samuti ka Kurna ostlemiskeskus. Korteritesse on juba paigaldatud jahutussüsteemi valmidus ning parkimine ja panipaik on mahutatud ostuhinna sisse.
A- energiaklassiga kodud on kõige ökonoomseimad kodud turul ning tänu sellele pakuvad pangad Pilve Kodude korteritele väga madalaid intresse, teatud juhtudel isegi 0%+euribor.
Esimesed majad aadressil Tormi tn 9/1 ning 9/2 on valminud märts 2024 ja uue neljanda etapi korterid Tormi tn 3 aadressil on planeeritud valmima juuli 2026.
*Piltidel on kuvatud juba valminud sama planeeringuga korterit.
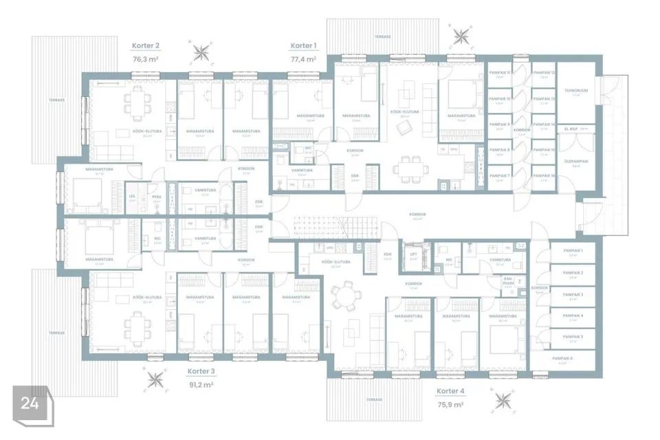
Planeering
Korteri koosseisus on avar esik, elutuba-köök, 3 magamistuba, vannituba koos wc’ga, majapidamisruum, külaliste tualettruum ning suur terrass. Korteri aknad avanevad maja taha ja päevapäikese poolsele küljele ning terrassil saab nautida terve päeva päikest. Tänu suurtele maast laeni akendele on korterid väga valgusküllased ning suvisel ajal on võimalik oma elutuba terrassi arvelt suurendada.
Siseviimistlus
Korterite siseviimistluses on kasutatud heledaid toone, et rõhutada avarust ja valgust. Korterite põrandaid katab 1 lipiline tammeparkett, mis on matt laki või valge matt laki viimistlusega. Tammeparkett on korteris läbivalt igas toas, välja arvatud märgruumides ning esikus. Vastavalt põrandatoonile on kasutuses ka samas toonis liistusid. Vannitubades on kasutatud suuri heledaid keraamilisi plaate, millele on modernsust juurde toodud aktsentseintega. Modernset joont aitavad hoida valged täispuidust raamuksed.
Küte ja ventilatsioon
Kõigis Pilve kodude kortermajades on kütteallikaks energiatõhus maaküttel töötav küttesüsteem ning põrandad hoiab mõnusalt soojana ruumipõhiselt reguleeritav vesipõrandaküte. Korterite värske siseõhu tagab korteripõhine soojustagastusega ventilatsioonisüsteem. Igal korteril on jahutussüsteemi valmidus ning seadme saab juurde soetada kohe või hilisemas faasis 4 000 euro eest.
Parkimine ja panipaik
Korterite hinna sisse kuulub 1 parkimiskoht maja ees asuvas parklas ning 1 panipaik maja esimesel korrusel. Vajadusel on lisatasu eest võimalik soetada juurde veel 1 parkimiskoht (3000€). Parklasse on loodud elektrilaadimise valmidus.
Terrass ja hoov
Igale korterile on mõeldud suur rõdu või terrass, mis annavad suurepärase võimaluse hommikukohvi nautimiseks või lähedastega grilliõhtute korraldamiseks. Suvisel ajal võimaldab selline mõnus väliala oma elutuba laiendada või muuta lausa väliköögiks. Korterelamute kompleksi väliruumi kujundamisel on arvestatud, et elanikel peab olema võimalus mugavalt oma kodu ümbrust kasutada lähirekreatsiooniks, puhkamiseks, mängimiseks, looduses viibimiseks. Iga korterelamu juurest pääseb nn ringrajale, mis moodustab kogu kvartalis katkematu trajektoori, läbides erinevad huvipakkuvaid punkte – mänguplatsid, palliväljakud, liumägi, pinkidega puhketaskud. Ringrada on turvaliselt sõidukiliiklusest eraldatud kõrg- ja madalhaljastusega.
Maja
Tegemist on 2026 aasta suvel valmiva A- energiaklassi uusarendusega. Hoone on rajatud raudbetoonist lintvundamendile, mille kandev konstruktsioon on loodud raudbetoon seinapaneelidest ja õõnespaneelidest. Maja välisseinad on 3- kihilisest soojustatud välisseinaelementidest, mida nimetatakse ka kui raudbetoon sandwich paneelideks. Hoone katus on soojustatud EPS soojustusplaatidega ning kaetud rullkattematerjaliga. Korterite vaheline ning samuti ka trepikoja vaheline helipidavus on tagatud massiivsete raudbetoon seinapaneelidega. Kõigil majas asuvatel korteritel on 3- kordsed plastraamides selektiivklaasiga aknad, mis tagavad nii hea heli- kui ka soojapidavuse.
Elukeskkond
Pilve kodude arendus asub mõnusalt vaikses ning hinnatud Kiili alevikus, mis on ümbritsetud metsa ning põldudega. Ümbruses on mitmed pargid, terviserajad, jõulinnakud ning sportimisvõimalused. Ühtehoidev kogukond ning perekeskne kasvukeskkond on Pilve Kodude alustalaks
- Lähim pood 2 minuti autosõidu kaugusel
- Lähim kool 10 minutilise rattasõidu kaugusel
- Lähim lasteaed 4 minuti autosõidu kaugusel, samuti on rajamisel ka uus suur lasteaed 3 minuti autosõidu kaugusele Pilve kodudest.
- IKEA kaubanduskeskus koos Kurna ostlemiskeskusega asub 5 minuti autosõidu kaugusel
Tallinna Kesklinn 20 minutilise autosõidu kaugusel.
Võta ühendust ning lähme objektile kohapeale vaatama!
Vaata lisaks www.pilvekodud.ee
Igale kliendile võimaldame personaalse tutvumise uue koduga, mistõttu palun anna oma tulekust teada helistades, kirjutades või täites kliendipäeva registeerimisvormi koos soovitud külastusajaga. Kui kliendipäeva aeg Sinu kalendriga ei klapi siis anna julgelt märku ja lepime mõne teise aja kokku.
Oled väga oodatud!
Müüa avar ning valgusküllane 4- toaline perekorter, mille võlu peitub selle avatud planeeringus ning suurepärases asukohas Kiili rohelise elukeskkonna keskmes. A-energiaklassiga maja on väga soodsate ülalpidamiskuludega ning tänu maaküttele ja soojustagastusega ventilatsioonile on see ökonoomseim lahendus turul. Korterite maast laeni aknad annavad palju valgust ning päikesepaistet aastaringselt ning maja ümbritsevad terviserajad ja sportimisvõimalused pakuvad tegevust kogu perele. Suurepärane asukoht Kiili Alevikus annab võimaluse osa saada rohelisest ning perekesksest kasvukeskkonnast, kuid samas olla 20 minuti autosõidu kaugusel Tallinna Kesklinnast. Läheduses asuvad koolid, lasteaiad, IKEA kaubanduskeskus ning samuti ka Kurna ostlemiskeskus. Korteritesse on juba paigaldatud jahutussüsteemi valmidus ning parkimine ja panipaik on mahutatud ostuhinna sisse.
A- energiaklassiga kodud on kõige ökonoomseimad kodud turul ning tänu sellele pakuvad pangad Pilve Kodude korteritele väga madalaid intresse, teatud juhtudel isegi 0%+euribor.
Esimesed majad aadressil Tormi tn 9/1 ning 9/2 on valminud märts 2024 ja uue neljanda etapi korterid Tormi tn 3 aadressil on planeeritud valmima juuli 2026.
*Piltidel on kuvatud juba valminud sama planeeringuga korterit.
Planeering
Korteri koosseisus on avar esik, elutuba-köök, 3 magamistuba, vannituba koos wc’ga, majapidamisruum, külaliste tualettruum ning suur terrass. Korteri aknad avanevad maja taha ja päevapäikese poolsele küljele ning terrassil saab nautida terve päeva päikest. Tänu suurtele maast laeni akendele on korterid väga valgusküllased ning suvisel ajal on võimalik oma elutuba terrassi arvelt suurendada.
Siseviimistlus
Korterite siseviimistluses on kasutatud heledaid toone, et rõhutada avarust ja valgust. Korterite põrandaid katab 1 lipiline tammeparkett, mis on matt laki või valge matt laki viimistlusega. Tammeparkett on korteris läbivalt igas toas, välja arvatud märgruumides ning esikus. Vastavalt põrandatoonile on kasutuses ka samas toonis liistusid. Vannitubades on kasutatud suuri heledaid keraamilisi plaate, millele on modernsust juurde toodud aktsentseintega. Modernset joont aitavad hoida valged täispuidust raamuksed.
Küte ja ventilatsioon
Kõigis Pilve kodude kortermajades on kütteallikaks energiatõhus maaküttel töötav küttesüsteem ning põrandad hoiab mõnusalt soojana ruumipõhiselt reguleeritav vesipõrandaküte. Korterite värske siseõhu tagab korteripõhine soojustagastusega ventilatsioonisüsteem. Igal korteril on jahutussüsteemi valmidus ning seadme saab juurde soetada kohe või hilisemas faasis 4 000 euro eest.
Parkimine ja panipaik
Korterite hinna sisse kuulub 1 parkimiskoht maja ees asuvas parklas ning 1 panipaik maja esimesel korrusel. Vajadusel on lisatasu eest võimalik soetada juurde veel 1 parkimiskoht (3000€). Parklasse on loodud elektrilaadimise valmidus.
Terrass ja hoov
Igale korterile on mõeldud suur rõdu või terrass, mis annavad suurepärase võimaluse hommikukohvi nautimiseks või lähedastega grilliõhtute korraldamiseks. Suvisel ajal võimaldab selline mõnus väliala oma elutuba laiendada või muuta lausa väliköögiks. Korterelamute kompleksi väliruumi kujundamisel on arvestatud, et elanikel peab olema võimalus mugavalt oma kodu ümbrust kasutada lähirekreatsiooniks, puhkamiseks, mängimiseks, looduses viibimiseks. Iga korterelamu juurest pääseb nn ringrajale, mis moodustab kogu kvartalis katkematu trajektoori, läbides erinevad huvipakkuvaid punkte – mänguplatsid, palliväljakud, liumägi, pinkidega puhketaskud. Ringrada on turvaliselt sõidukiliiklusest eraldatud kõrg- ja madalhaljastusega.
Maja
Tegemist on 2026 aasta suvel valmiva A- energiaklassi uusarendusega. Hoone on rajatud raudbetoonist lintvundamendile, mille kandev konstruktsioon on loodud raudbetoon seinapaneelidest ja õõnespaneelidest. Maja välisseinad on 3- kihilisest soojustatud välisseinaelementidest, mida nimetatakse ka kui raudbetoon sandwich paneelideks. Hoone katus on soojustatud EPS soojustusplaatidega ning kaetud rullkattematerjaliga. Korterite vaheline ning samuti ka trepikoja vaheline helipidavus on tagatud massiivsete raudbetoon seinapaneelidega. Kõigil majas asuvatel korteritel on 3- kordsed plastraamides selektiivklaasiga aknad, mis tagavad nii hea heli- kui ka soojapidavuse.
Elukeskkond
Pilve kodude arendus asub mõnusalt vaikses ning hinnatud Kiili alevikus, mis on ümbritsetud metsa ning põldudega. Ümbruses on mitmed pargid, terviserajad, jõulinnakud ning sportimisvõimalused. Ühtehoidev kogukond ning perekeskne kasvukeskkond on Pilve Kodude alustalaks
- Lähim pood 2 minuti autosõidu kaugusel
- Lähim kool 10 minutilise rattasõidu kaugusel
- Lähim lasteaed 4 minuti autosõidu kaugusel, samuti on rajamisel ka uus suur lasteaed 3 minuti autosõidu kaugusele Pilve kodudest.
- IKEA kaubanduskeskus koos Kurna ostlemiskeskusega asub 5 minuti autosõidu kaugusel
Tallinna Kesklinn 20 minutilise autosõidu kaugusel.
Võta ühendust ning lähme objektile kohapeale vaatama!
Vaata lisaks www.pilvekodud.ee
















































