Üürile anda büroopind Lasnamäel aadressil Osmussaare 10.
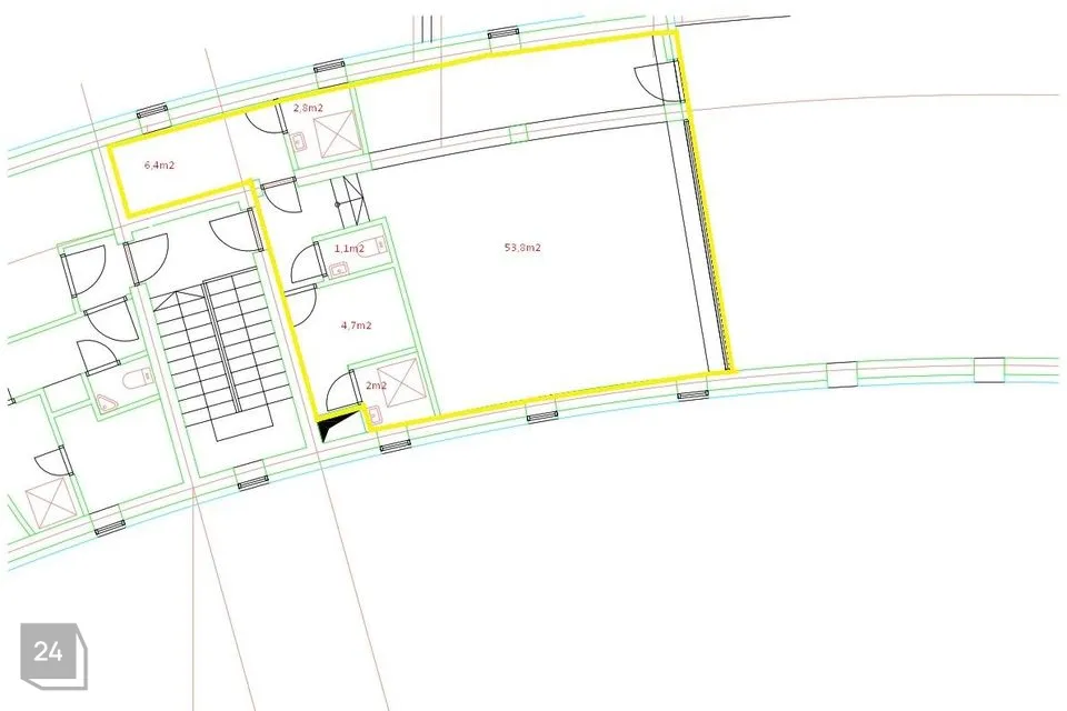
Pakutav pind koosneb viiest ruumist, koos wc ja dušširuumiga (70 m²) ning terrass.
Ligipääs ruumidele 24/7.
Välisukse avab fonosüsteem.
Hoones on olemas kaasaegsed tehnosüsteemid (ventilatsioon, küte, jahutus, side).
Enne üleandmist värskendatakse seinad ja vajaduselvahetatakse põrandakate vastavalt uue üürilise soovidele.
Maja esimesel korrusel asub lõunasöögi kohvik.
Autode parkimine maja ees tasuta.
Üürihinnale lisandub käibemaks.
Üürihinnale lisanduvad fikseeritud kõrvalkulud 3,83 €/m²
Samas majas on veel pakkuda erineva suurusega pindasid.
Pakkumine on vahendustasuta.
Küsimuste korral võta palun minuga ühendust ja leiame sobiva lahenduse.
***@***.ee / +372 555 85 467
Argo Arusoo.
JAGA MINU KONTAKTI KÕIGILE, KES VAJAVAD KINNISVARANÕU!
JAGA MINU KONTAKTI KÕIGILE, KES VAJAVAD KINNISVARANÕU!
- - - - - - - - - -
Telli hindamine UUS MAA Kinnisvarabüroolt https://uusmaa.ee/teenused/hindamine/
UUS MAA KINNISVARABÜROO EKSPERTHINNANGUID AKTSEPTEERIVAD KÕIK FINANTSASUTUSED.
- - - - - - - - - -
Liitu Uus Maa uudiskirjaga ja saa homset kinnisvarainfot juba täna!
https://www.uusmaa.ee/uudiskirjagaliitumine/
- - - - - - - - - -
Kodu aitab osta Swedbank.
Pakkumise saamiseks kasuta koodi UUSMAA ja Sind teenindatakse eelisjärjekorras.
Võtame ühendust 1 tööpäeva jooksul.
Uus Maa kliendile soodsam lepingutasu. Küsi täpsemat infot maaklerilt.
Finantsteenuseid pakub Swedbank AS. Tutvu tingimustega, pea nõu.
Pakutav pind koosneb viiest ruumist, koos wc ja dušširuumiga (70 m²) ning terrass.
Ligipääs ruumidele 24/7.
Välisukse avab fonosüsteem.
Hoones on olemas kaasaegsed tehnosüsteemid (ventilatsioon, küte, jahutus, side).
Enne üleandmist värskendatakse seinad ja vajaduselvahetatakse põrandakate vastavalt uue üürilise soovidele.
Maja esimesel korrusel asub lõunasöögi kohvik.
Autode parkimine maja ees tasuta.
Üürihinnale lisandub käibemaks.
Üürihinnale lisanduvad fikseeritud kõrvalkulud 3,83 €/m²
Samas majas on veel pakkuda erineva suurusega pindasid.
Pakkumine on vahendustasuta.
Küsimuste korral võta palun minuga ühendust ja leiame sobiva lahenduse.
***@***.ee / +372 555 85 467
Argo Arusoo.
JAGA MINU KONTAKTI KÕIGILE, KES VAJAVAD KINNISVARANÕU!
JAGA MINU KONTAKTI KÕIGILE, KES VAJAVAD KINNISVARANÕU!
- - - - - - - - - -
Telli hindamine UUS MAA Kinnisvarabüroolt https://uusmaa.ee/teenused/hindamine/
UUS MAA KINNISVARABÜROO EKSPERTHINNANGUID AKTSEPTEERIVAD KÕIK FINANTSASUTUSED.
- - - - - - - - - -
Liitu Uus Maa uudiskirjaga ja saa homset kinnisvarainfot juba täna!
https://www.uusmaa.ee/uudiskirjagaliitumine/
- - - - - - - - - -
Kodu aitab osta Swedbank.
Pakkumise saamiseks kasuta koodi UUSMAA ja Sind teenindatakse eelisjärjekorras.
Võtame ühendust 1 tööpäeva jooksul.
Uus Maa kliendile soodsam lepingutasu. Küsi täpsemat infot maaklerilt.
Finantsteenuseid pakub Swedbank AS. Tutvu tingimustega, pea nõu.

















