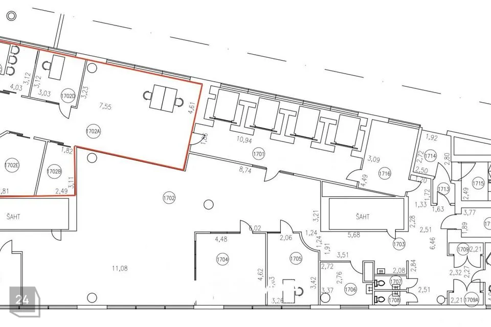
Üürile anda ilus büroo Tornimäel SEB hoone 17. korrusel. Valgusküllane ja avar büroo koosneb avatud tööalast, kahest kabinetist ja kahest nõupidamisruumist, lisaks on vastuvõtuala ja tualetid. Pinnalt avaneb suurlinlik vaade südalinna kõrghoonetele. Vajadusel on võimalik lisaks üürida ka 283m2 kõrvalpind - ideaalne lahendus kahele partnerettevõttele, kes soovivad olla kõrvuti kuid samas eraldi kontorites.
Pinnal on kaasaegne valve-, ventilatsiooni- ja jahutussüsteem. Hoonel on BREEAMi rohesertifikaadi “Very Good” tase.
Hoones on ööpäev läbi mehitatud valve. Külaliste sissepääs on mugav, kuid kontrollitud, seega ei sobi ettevõttele, kel käib väga palju kliente.
Hoone 4. korrusel on hubane lõunarestoran, lisaks on majas konverentsiruumide üürimise võimalus.
Hoone on suurepärases asukohas Tallinna ärielu südames. Naabruses on kesklinna suurimad büroohooned, väärikad hotellid, restoranid, kauplused, spordiklubid ja teenused. Ümbruses on mitu avalikku parklat.
Üürihind 14 eur/m². Lisanduvad kõrvalkulud.
Kui selline kauni vaatega büroo on just see, mida otsid, võta minuga ühendust!
P.S. Hoones saab pakkuda ka suuremat või väiksemat pinda!
Pakkumine on vahendustasuta.
Jaga minu kontakti kõigile, kes vajavad kinnisvaranõu!
Liitu meie uudiskirjaga ja saa homset kinnisvarainfot juba täna! Vaata https://arikinnisvara.uusmaa.ee
UUS MAA ÄRIKINNISVARA - aastakümned kogemust ja klientide usaldust, läbimõeldud täisteenus ja suurim arv eksperte: vahendamine, hindamine, haldamine, nõustamine ja investeerimine.
Pinnal on kaasaegne valve-, ventilatsiooni- ja jahutussüsteem. Hoonel on BREEAMi rohesertifikaadi “Very Good” tase.
Hoones on ööpäev läbi mehitatud valve. Külaliste sissepääs on mugav, kuid kontrollitud, seega ei sobi ettevõttele, kel käib väga palju kliente.
Hoone 4. korrusel on hubane lõunarestoran, lisaks on majas konverentsiruumide üürimise võimalus.
Hoone on suurepärases asukohas Tallinna ärielu südames. Naabruses on kesklinna suurimad büroohooned, väärikad hotellid, restoranid, kauplused, spordiklubid ja teenused. Ümbruses on mitu avalikku parklat.
Üürihind 14 eur/m². Lisanduvad kõrvalkulud.
Kui selline kauni vaatega büroo on just see, mida otsid, võta minuga ühendust!
P.S. Hoones saab pakkuda ka suuremat või väiksemat pinda!
Pakkumine on vahendustasuta.
Jaga minu kontakti kõigile, kes vajavad kinnisvaranõu!
Liitu meie uudiskirjaga ja saa homset kinnisvarainfot juba täna! Vaata https://arikinnisvara.uusmaa.ee
UUS MAA ÄRIKINNISVARA - aastakümned kogemust ja klientide usaldust, läbimõeldud täisteenus ja suurim arv eksperte: vahendamine, hindamine, haldamine, nõustamine ja investeerimine.












