Üürile anda väga heas asukohas ja üürihinnaga esimese korruse äripind Kristiine keskuse läheduses.
Üüritav äripind sobib hästi teeninduspinnana või esinduspoeks.
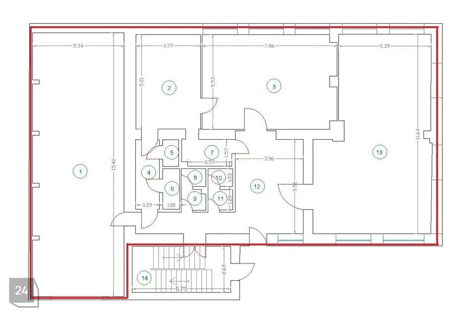
ESIMESE KORRUSE ÄRIPIND
- Teenindus/kaupluseruumide maht esimesel korrusel koos olmeruumidega ca 185 m².
- Laopind köetav ca 83 m².
- Hoone ja äripinnad on köetavad gaasiküttel (lokaalne gaasikatlamaja).
- Ventilatsioon
- Konditsioneer
- WC ruumid
- Puhkeruum
- Kuus parkimiskohta on saadaval maja ees ning hoone taga vajadusel kolm lisa parkimiskohta. Tänaval parkimine tasuta.
- Laopinnal eraldi suur kaubalaadimisuks maa tasapinnalt laadimisega.
Üürihinnale lisandub käibemaks ning kõrvalkulud.
Võta ühendust ja lepime kokku aja kohapeal äripinnaga tutvumiseks!
Pangad pakuvad Domus Kinnisvara klientidele eluasemelaenu lepingutasu soodustusi. Küsi lisainfot Domus Kinnisvara maaklerilt või hindajalt.
Müü ja hinda meiega! Teeme kinnisvara müügi Sinu jaoks sujuvaks ja pingevabaks.
Üüritav äripind sobib hästi teeninduspinnana või esinduspoeks.
ESIMESE KORRUSE ÄRIPIND
- Teenindus/kaupluseruumide maht esimesel korrusel koos olmeruumidega ca 185 m².
- Laopind köetav ca 83 m².
- Hoone ja äripinnad on köetavad gaasiküttel (lokaalne gaasikatlamaja).
- Ventilatsioon
- Konditsioneer
- WC ruumid
- Puhkeruum
- Kuus parkimiskohta on saadaval maja ees ning hoone taga vajadusel kolm lisa parkimiskohta. Tänaval parkimine tasuta.
- Laopinnal eraldi suur kaubalaadimisuks maa tasapinnalt laadimisega.
Üürihinnale lisandub käibemaks ning kõrvalkulud.
Võta ühendust ja lepime kokku aja kohapeal äripinnaga tutvumiseks!
Pangad pakuvad Domus Kinnisvara klientidele eluasemelaenu lepingutasu soodustusi. Küsi lisainfot Domus Kinnisvara maaklerilt või hindajalt.
Müü ja hinda meiega! Teeme kinnisvara müügi Sinu jaoks sujuvaks ja pingevabaks.


















