Üürile anda avar kaubandus-, teenindus- ja laopind Mustamäel!
Laki tn 16, Kristiine ja Mustamäe piiril
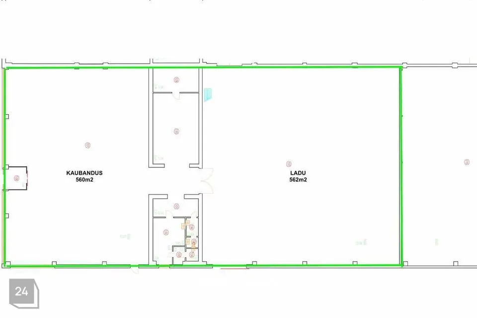
Kogupind: 1122 m²
Pinna jaotus:
• Kaubandus-/teeninduspind – 560 m²
• Laopind – 562 m²
Kogu pind on hästi nähtav, multifunktsionaalne ja sobib suurepäraselt kaubanduseks, teeninduseks või kombineeritud ärimudeliks (müük + ladu + kontor). Suured vitriinaknad, eraldi sissepääs ja planeering, mis toetab sujuvat äritegevust.
Parkimine ja ligipääs:
• Tasuta parkimine hoone ees (klientidele ja töötajatele)
• Otsepääs tänavalt
• Hea logistiline asukoht – vahetu ligipääs Tallinna kesklinnale ja suurematele magistraalidele
Tehniline info:
• Elektriküte
• Tsentraalne vesi, olemas dušš
• Eraldi sissepääs
• Vitriinaknad
• Tugev ärikeskkond ümbruskonnas
Asukoht:
Laki tn 16 asub Tallinna ühes aktiivseimas äripiirkonnas, Kristiine ja Mustamäe piiril. Tugev ärikogukond, mitmed ettevõtted ja tihe liiklus tagavad suure nähtavuse ja kliendivoo.
Tingimused:
• Üürihinnale lisandub käibemaks ja kõrvalkulud
• Vahendustasu ei lisandu!
Võta ühendust, küsi lisa ja tule vaatama – see pind võib olla sinu äri edu alus!
Laki tn 16, Kristiine ja Mustamäe piiril
Kogupind: 1122 m²
Pinna jaotus:
• Kaubandus-/teeninduspind – 560 m²
• Laopind – 562 m²
Kogu pind on hästi nähtav, multifunktsionaalne ja sobib suurepäraselt kaubanduseks, teeninduseks või kombineeritud ärimudeliks (müük + ladu + kontor). Suured vitriinaknad, eraldi sissepääs ja planeering, mis toetab sujuvat äritegevust.
Parkimine ja ligipääs:
• Tasuta parkimine hoone ees (klientidele ja töötajatele)
• Otsepääs tänavalt
• Hea logistiline asukoht – vahetu ligipääs Tallinna kesklinnale ja suurematele magistraalidele
Tehniline info:
• Elektriküte
• Tsentraalne vesi, olemas dušš
• Eraldi sissepääs
• Vitriinaknad
• Tugev ärikeskkond ümbruskonnas
Asukoht:
Laki tn 16 asub Tallinna ühes aktiivseimas äripiirkonnas, Kristiine ja Mustamäe piiril. Tugev ärikogukond, mitmed ettevõtted ja tihe liiklus tagavad suure nähtavuse ja kliendivoo.
Tingimused:
• Üürihinnale lisandub käibemaks ja kõrvalkulud
• Vahendustasu ei lisandu!
Võta ühendust, küsi lisa ja tule vaatama – see pind võib olla sinu äri edu alus!



























