Üürile anda värskelt valminud bürooruumid Pärnu mnt 21 ärimajas!
Pärnu mnt 21 on äsja valminud ärihoone Tallinna südames.
Hoone 1. korrusel paiknevad kaubandus-ja teeninduspinnad ning ülemistel korrustel büroopinnad.
Hoones on olemas lift ning kasutusel kõik kaasaegsed tehnoloogilised lahendused.
Büroopindadel on olemas sundventilatsioon ja jahutus. Samuti on pinnal privaatne tualettruum ning mööbli ja tehnikaga varustatud kööginurk. Põrandal on vaipkate.
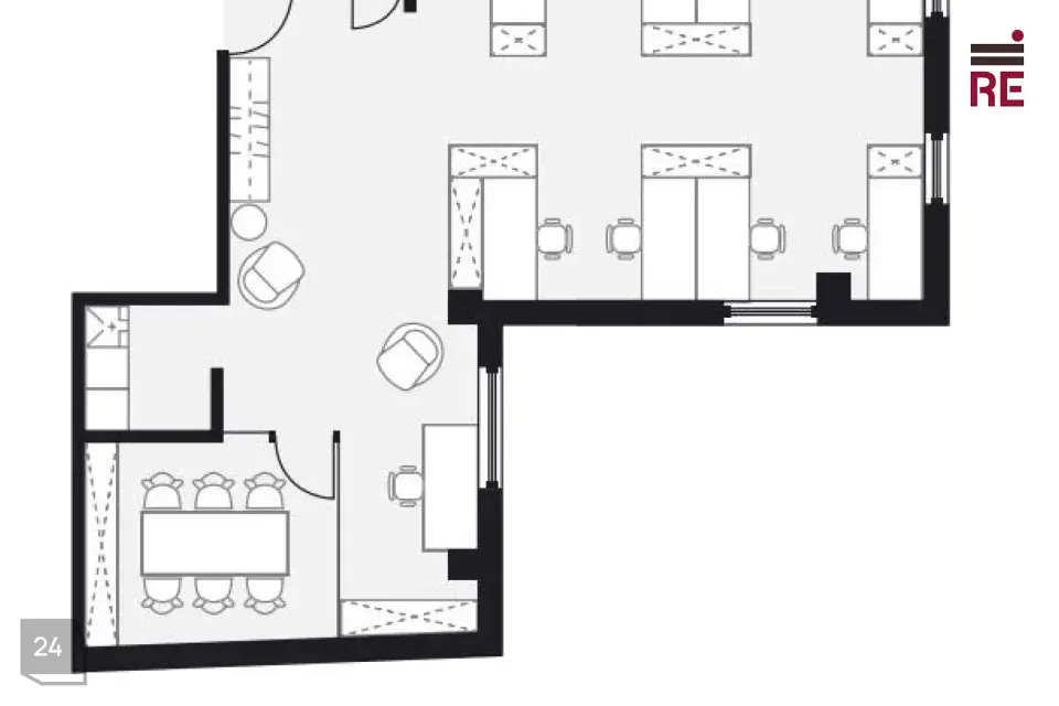
Standardlahendusena koosneb pind avatud tööalast ning koosolekuruumist. Pinnal on olemas uus kööginurk.
Ruumid on võimalik kujundada vastavalt üürniku vajadustele.
Üürnikele võimalik parkimine soodustingimustel lähedalasuvas Finesti parkimismajas.
Ruumide üürile võtmine on vahendustasuta.
Üürihinnale lisanduvad kõrvalkulud ja käibemaks.
Hoones on saadaval ka teisi äripindasid!
Kui soovite rohkem infot, siis palun võtke ühendust.
RE Kinnisvara AS on tegutsenud 1995. aastast, olles üks vanimaid Eesti kinnisvaraettevõtteid.
Pakume kinnisvaraga seotud täisteenust:
- äri- ja elamispindade maaklerteenus
- kinnisvara hindamine laenu tagatiseks, sh kohtutele, finantsaruandluseks jne.
- äri- ja elukondlike arendusprojektide müügikorraldus
- kinnisvaraturu ja -projektide analüüs ja konsultatsioon
- kinnisvara seadustamine
Teeme koostööd kõigi Eesti pankade ja finantsasutustega. Meie eksperthinnangud on aktsepteeritud kõigi Eestis tegutsevate krediidiasutuste poolt.
Tutvu lähemalt re.ee.
RE Kinnisvara AS – PARIM OSA KINNISVARAST
Helista 66 88 666 või saada e-mail ***@***.ee
https://facebook.com/re.kinnisvara
https://www.instagram.com/rekinnisvara/
https://ee.linkedin.com/company/re-kinnisvara
Pärnu mnt 21 on äsja valminud ärihoone Tallinna südames.
Hoone 1. korrusel paiknevad kaubandus-ja teeninduspinnad ning ülemistel korrustel büroopinnad.
Hoones on olemas lift ning kasutusel kõik kaasaegsed tehnoloogilised lahendused.
Büroopindadel on olemas sundventilatsioon ja jahutus. Samuti on pinnal privaatne tualettruum ning mööbli ja tehnikaga varustatud kööginurk. Põrandal on vaipkate.
Standardlahendusena koosneb pind avatud tööalast ning koosolekuruumist. Pinnal on olemas uus kööginurk.
Ruumid on võimalik kujundada vastavalt üürniku vajadustele.
Üürnikele võimalik parkimine soodustingimustel lähedalasuvas Finesti parkimismajas.
Ruumide üürile võtmine on vahendustasuta.
Üürihinnale lisanduvad kõrvalkulud ja käibemaks.
Hoones on saadaval ka teisi äripindasid!
Kui soovite rohkem infot, siis palun võtke ühendust.
RE Kinnisvara AS on tegutsenud 1995. aastast, olles üks vanimaid Eesti kinnisvaraettevõtteid.
Pakume kinnisvaraga seotud täisteenust:
- äri- ja elamispindade maaklerteenus
- kinnisvara hindamine laenu tagatiseks, sh kohtutele, finantsaruandluseks jne.
- äri- ja elukondlike arendusprojektide müügikorraldus
- kinnisvaraturu ja -projektide analüüs ja konsultatsioon
- kinnisvara seadustamine
Teeme koostööd kõigi Eesti pankade ja finantsasutustega. Meie eksperthinnangud on aktsepteeritud kõigi Eestis tegutsevate krediidiasutuste poolt.
Tutvu lähemalt re.ee.
RE Kinnisvara AS – PARIM OSA KINNISVARAST
Helista 66 88 666 või saada e-mail ***@***.ee
https://facebook.com/re.kinnisvara
https://www.instagram.com/rekinnisvara/
https://ee.linkedin.com/company/re-kinnisvara
















