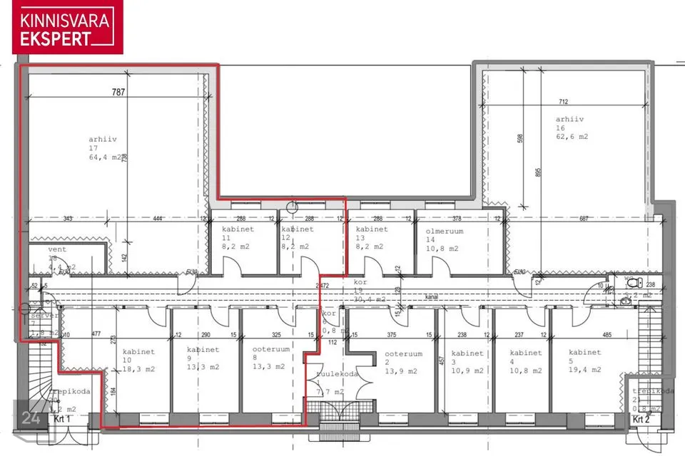
Üürile anda Pikk tn 32 maja esimesel korrusel asuvad bürooruumid kogupinnaga 140 m².
Üüritavate ruumide hulka kuulub 5 kabinetti (8.2 m² - 18.3 m²) ja laoruum 64.4 m². Laoruum on sisustatud liigutatavate riiulitega.
Maja asub Rakvere keskväljakust 400 m kaugusel.
Ruumid on vabad ja valmis koheseks sisse kolimiseks.
Lepingu sõlmimisel tasuda esimese kuu üür ja tagatisraha.
Helista või kirjuta ja lepime kokku sobiva aja ruumidega tutvumiseks!
Võimalik üürile võtta ka terve esimene korrus suurusega 304.4 m².
****
KINNISVARAEKSPERT tegutseb Eesti turul alates 1993. aastast. Meie Bürood asuvad Tallinnas ja Pärnus ning teenindame teid üle Eesti. Koostööpartnerite Nord Prime Capital ja Alliance Group UAB kaudu oleme esindatud ka Lätis ning Leedus.
Pakume maaklerteenust, hindamist ja kinnisvaraalast nõustamisteenust nii era- kui ka ärisektoris.
Kinnisvaraekspert teeb tihedat koostööd maailma suurimate kinnisvarafirmade hulka kuuluva ettevõttega Cushman & Wakefield. Meie koostöösidemed ulatuvad peale Balti riikide ja Põhjamaade pea kõikidesse maailmajagudesse.
Lisainfo ja teenuste tellimine:
Tallinnas: +372 *******
Pärnus: +372 *******
Rohkem infot leiad www.kinnisvaraekspert.ee
***
Üüritavate ruumide hulka kuulub 5 kabinetti (8.2 m² - 18.3 m²) ja laoruum 64.4 m². Laoruum on sisustatud liigutatavate riiulitega.
Maja asub Rakvere keskväljakust 400 m kaugusel.
Ruumid on vabad ja valmis koheseks sisse kolimiseks.
Lepingu sõlmimisel tasuda esimese kuu üür ja tagatisraha.
Helista või kirjuta ja lepime kokku sobiva aja ruumidega tutvumiseks!
Võimalik üürile võtta ka terve esimene korrus suurusega 304.4 m².
****
KINNISVARAEKSPERT tegutseb Eesti turul alates 1993. aastast. Meie Bürood asuvad Tallinnas ja Pärnus ning teenindame teid üle Eesti. Koostööpartnerite Nord Prime Capital ja Alliance Group UAB kaudu oleme esindatud ka Lätis ning Leedus.
Pakume maaklerteenust, hindamist ja kinnisvaraalast nõustamisteenust nii era- kui ka ärisektoris.
Kinnisvaraekspert teeb tihedat koostööd maailma suurimate kinnisvarafirmade hulka kuuluva ettevõttega Cushman & Wakefield. Meie koostöösidemed ulatuvad peale Balti riikide ja Põhjamaade pea kõikidesse maailmajagudesse.
Lisainfo ja teenuste tellimine:
Tallinnas: +372 *******
Pärnus: +372 *******
Rohkem infot leiad www.kinnisvaraekspert.ee
***






















