Üürile anda kvaliteetne Stock-Office tüüpi äripind Mõigu Tehnopargis – 956m².
Mõigu Tehnopark asub Tallinna linna piiril Tallinn-Tartu mnt vahetus läheduses.
Hoone on ehitatud betoonpaneelidest, mis tagavad tugevuse ja hea ilmastikukindluse. Kasutatud on kvaliteetseid viimistlusmaterjale.
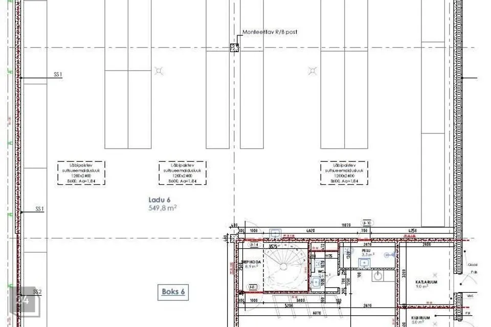
Pind koosneb 550m² suurusest lao/tootmispinnast.
Laol on kaks laadimisust. Üks maaga tasapinnalt ja teine laadimissillalt.
Kõrgus laeni 9m.
Lao laes ventilaatorid, mis lükkavad sooja õhu alla.
Küte laos gaasikalorifeeridega.
Kontori/olmeruumid paiknevad läbi kolme korruse ning suurus kokku on 366m².
Esimesel korrusel 74,5m² suurune kontori/kaubanduspind koos koosolekuteruumiga. Lisaks väike kööginurk, kaks wc-d ja duširuum.
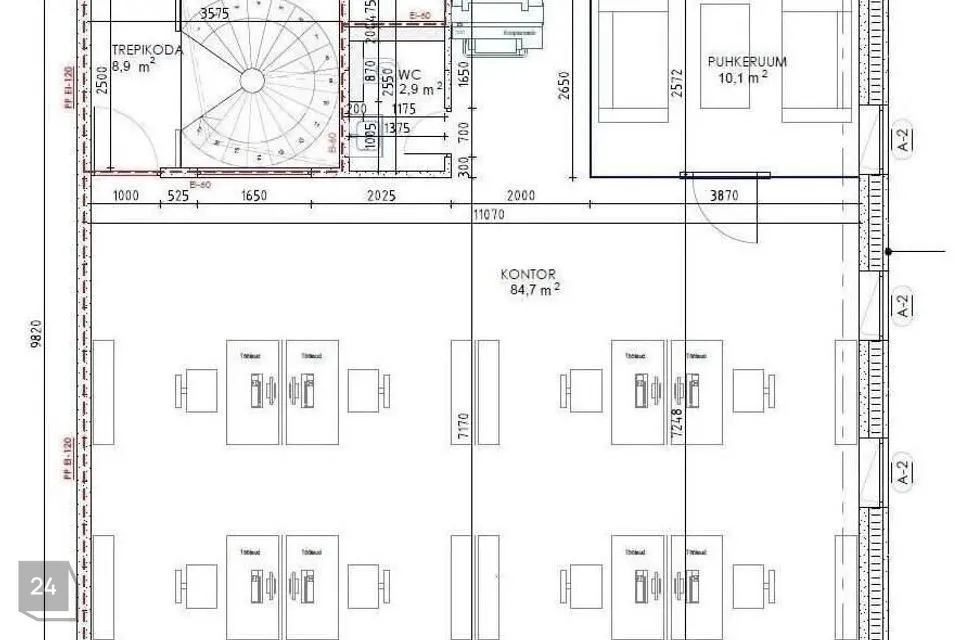
Teisel korrusel on avatud kontoripind ja koosolekuteruum 94,8m². Lisaks wc.
Kolmandal korrusel asub köök/puhkeruum koos pesemisvõimalusega suurusega 42,8m². Üks avatud kontor 42,6m², kolm kinnist kabinetti, laopind 39,1m² ja 2 wc-d.
Korruseid ühendab lai keerdtrepp.
Kontorid on varustatud jahutusseadmete, põrandakütte ning kolmekordsete UV-kaitsega akendega, millel on välised päikesemurdjad.
Pinna juurde kuulub väljas maja kõrval aiaga piiratud laoplats 200m².
Parkida saab kohe pinna ees katuse all 8 parkimiskohta + 3 kohta kinnistu ääres.
Ühe kuu üür on 6980€, millele lisanduvad kommunaalkulud ning käibemaks.
Pakkumine on vahendustasuta!
Mõigu Tehnopark asub Tallinna linna piiril Tallinn-Tartu mnt vahetus läheduses.
Hoone on ehitatud betoonpaneelidest, mis tagavad tugevuse ja hea ilmastikukindluse. Kasutatud on kvaliteetseid viimistlusmaterjale.
Pind koosneb 550m² suurusest lao/tootmispinnast.
Laol on kaks laadimisust. Üks maaga tasapinnalt ja teine laadimissillalt.
Kõrgus laeni 9m.
Lao laes ventilaatorid, mis lükkavad sooja õhu alla.
Küte laos gaasikalorifeeridega.
Kontori/olmeruumid paiknevad läbi kolme korruse ning suurus kokku on 366m².
Esimesel korrusel 74,5m² suurune kontori/kaubanduspind koos koosolekuteruumiga. Lisaks väike kööginurk, kaks wc-d ja duširuum.
Teisel korrusel on avatud kontoripind ja koosolekuteruum 94,8m². Lisaks wc.
Kolmandal korrusel asub köök/puhkeruum koos pesemisvõimalusega suurusega 42,8m². Üks avatud kontor 42,6m², kolm kinnist kabinetti, laopind 39,1m² ja 2 wc-d.
Korruseid ühendab lai keerdtrepp.
Kontorid on varustatud jahutusseadmete, põrandakütte ning kolmekordsete UV-kaitsega akendega, millel on välised päikesemurdjad.
Pinna juurde kuulub väljas maja kõrval aiaga piiratud laoplats 200m².
Parkida saab kohe pinna ees katuse all 8 parkimiskohta + 3 kohta kinnistu ääres.
Ühe kuu üür on 6980€, millele lisanduvad kommunaalkulud ning käibemaks.
Pakkumine on vahendustasuta!







































