Lisainfo: karmu1.ee
Kärmu 1 ärihoone on uus A-energiaklassi lao- ja tootmishoone Tallinna piiril, otse Vana-Narva maantee ääres. Hoone koosneb ruumikatest laopindadest ja kompaktsetest bürooplokkidest, mis sobivad hästi kesk- ja suurettevõtetele uue esinduse, logistika- või tootmisüksuse avamiseks aina uuenevas ajaloolises äripiirkonnas.
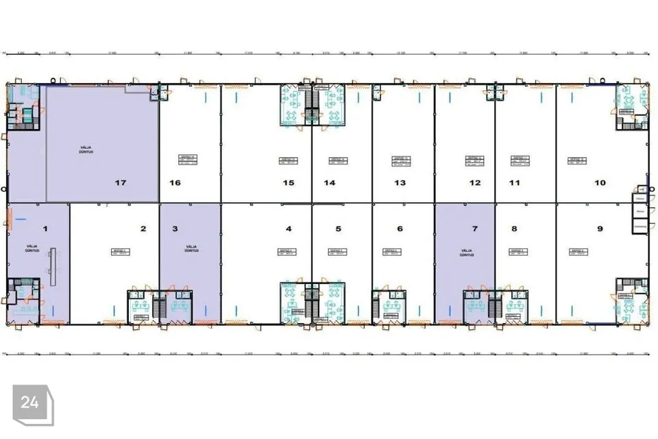
Anname Kärmu 1 ärihoones üürile äripinna kogupinnaga 604,3 m2, millest 518,9 m2 moodustavad lao- ja tootmisruumid ning 85,4 m2 büroo-/olme- või esindusruumid. Kärmu 1 ärihoones on veel teisigi äripindu suuruses 270-470 m2. Võimalus moodustada ka 1500, 3000 ja 4500 m2 suurust äripinda. Võta endale sobiva ruumilahenduse leidmiseks meiega ühendust!
ASUKOHT
Kärmu 1 ärihoone asub Tallinna külje all, Pirita linnaosast 3-minutilise autosõidu kaugusel Maardu linna territooriumil. Tegu on kiirelt areneva lao- ja tootmispiirkonnaga, kus on tagatud hea tehniline ja sotsiaalne infrastruktuur.
Kerkiva hoone ümbruskonnas on endale sobiva koha leidnud paljud tootmis- ja logistikaettevõtted nagu näiteks Tallink, Puukeskus, Framm, JTK ja Elme Metall. 2022. aastal valmis 750 m kaugusel Kärmu 1 ärihoone „suur vend“ ehk Iru Ärikeskus, mille 9500 m2 äripinda on rahulolevate üürnikega täidetud.
Vaatamata hoone ametlikule aadressile asub Kärmu 1 ärihoone otse Vana-Narva maantee ääres. Kui täna kasutab Transpordiameti andmetel Vana-Narva maanteed ööpäevas pea 10 000 sõidukit, siis võib tulevikus tänu maantee uuendamisele sellele korralikku lisa oodata. Suurepärane võimalus end möödujatele valgusreklaamiga nähtavaks teha!
Maardu-Iru piirkond on viimaste aastate jooksul läbi teinud ümbersünni. Lõpusirgel on Vana-Narva maantee ja Saha-Loo tee ristmiku rekonstrueerimine ning värske asfaldi ja turvaliste mahasõiduradadega magistraalile antakse viimaseid lihve!
Maardu ja ümbritsevate suurte kaubateede ühenduste sujuvale toimimisele aitab kaasa ka värskelt valminud Väo liiklussõlm. Tänu eelpool mainitud ja pikalt planeeritud infrastruktuuriprojektide valmimisele on kasvanud piirkonna potentsiaal uute tootmis- ja logistikavaldkonna ettevõtete võõrustamiseks.
Tegu on aga alati olnud logistiliselt väga hea asukohaga – lisaks läheduses paiknevatele haruraudteedele, Tallinn-Narva maanteele ja Tallinna ringteele asub ärikeskusest 10-minutilise sõidu kaugusel uuenduskuuri läbinud Muuga sadam, mille kaubakäive moodustab umbes 40% kogu Eestit läbivate transiitkaupade mahust.
Läheduses on ka mugavaks eluks vajalikud teenusepakkujad – Pärnamäe Keskus Rimi toidupoe, Alexela tankla, Mündipesula ja mitmete söögikohtadega jääb neljaminutilise sõidu kaugusele; veidi lähemal asuvad Nurgatagune Puhvet, Kinza kohvik, Cafe 26 ja EKE söökla.
Otse Kärmu 1 ärihoone ette on rajatud Pähklimäe bussipeatused, mida teenindab Tallinna linnaliin nr 30.
HOONEST
Aadress: Kärmu tn 1
Ehituse algus: november 2024
Valmimine: september 2025
Netopind: 6500 m2
Hind: alates 6,9 eur/m2
KAASAEGSED JA ENERGIATÕHUSAD LAHENDUSED
- Nutikad tehnilised süsteemid, mis tagavad madalad kõrvalkulud
- Avarad, loomuliku valguse ja kaasaegse siseviimistlusega äriruumid
- Moodsad ja kõrge resolutsiooniga turvakaamerad hoone perimeetril
- Programmeeritavad ligipääsusüsteemid, automaatväravad
- Üüriboksi valvestamine
- Energiatõhusad LED-valgustid
- Valgusreklaami võimalus maja fassaadil
- Boksipõhine kütte reguleerimine
- Soojustagastusega ventilatsioon ja konditsioneer
- Suur ladustamiskõrgus ja eritasapinnaline ladustamine
- Võimalus liigutada kaupa läbi hoone; ühest uksest sisse ja teisest välja
- Nutiladu - jälgi kaamerate ees toimuvat distantsilt ja juhi mobiiltelefoni rakenduse abil nii tõstandust kui valvesüsteemi
- Ringliiklus ja mugav laadimine ning manööverdamine suurtele kaubaautodele
- Personaalsed parkimiskohad
STOCK-OFFICE KONTSEPTSIOON
Hoone äripinnad koosnevad lao- ja tootmispindadest ning kontori- ja müügiruumidest. Nõnda saad kõiki kaubaga seotud tegevusi ühes kohas hoida ja soovi korral sealsamas vastu võtta ka kliente või koostööpartnereid. Lisaks säästad aja- ja logistikakuludelt!
TOOTMISELE SPETSIALISEERITUD
Igapäevast toimetamist muudavad lihtsamaks kõrged laed ja suur ladustamiskõrgus, automatiseeritud tõstanduksed, laiad valgustatud platsid ja ringliiklus, telferi valmidus, neli sissepääsu krundile ning võimalus liigutada kaupa läbi hoone.
A-ENERGIAKLASS
Hoone katus on täidetud päikesepaneelidega, mis toodavad mühinal roheenergiat. Soojustagastusega ventilatsioon vähendab küttearveid. Reguleeritavad ja ajastatavad kütte-, ventilatsiooni- ja jahutussüsteemid aitavad hoida optimaalset ning tervislikku sisekliimat.
Ärikeskuse ruumilahendust saab muuta vastavalt üürniku soovile ja äripinda saab kasutamiseks sobitada nii ühele kui ka mitmele erinevale üürnikule.
Vaata rohkem infot projekti kodulehelt: karmu1.ee
Küsi personaalset pakkumist!
*Hindadele lisandub käibemaks.
Objekti arendav Väo Äripark OÜ kuulub Favorte OÜ gruppi. Favorte on 1993. aastal asutatud Eesti kapitalil põhinev ettevõte. Meie eesmärk on olla asjatundlik ja toetav abiline sinu kinnisvaraalaste ambitsioonide elluäratamisel! Hoia meie tegemistel silma peal Favorte Kinnisvara sotsiaalmeedia lehtedel ja veebis www.favorte.ee!
Kärmu 1 ärihoone on uus A-energiaklassi lao- ja tootmishoone Tallinna piiril, otse Vana-Narva maantee ääres. Hoone koosneb ruumikatest laopindadest ja kompaktsetest bürooplokkidest, mis sobivad hästi kesk- ja suurettevõtetele uue esinduse, logistika- või tootmisüksuse avamiseks aina uuenevas ajaloolises äripiirkonnas.
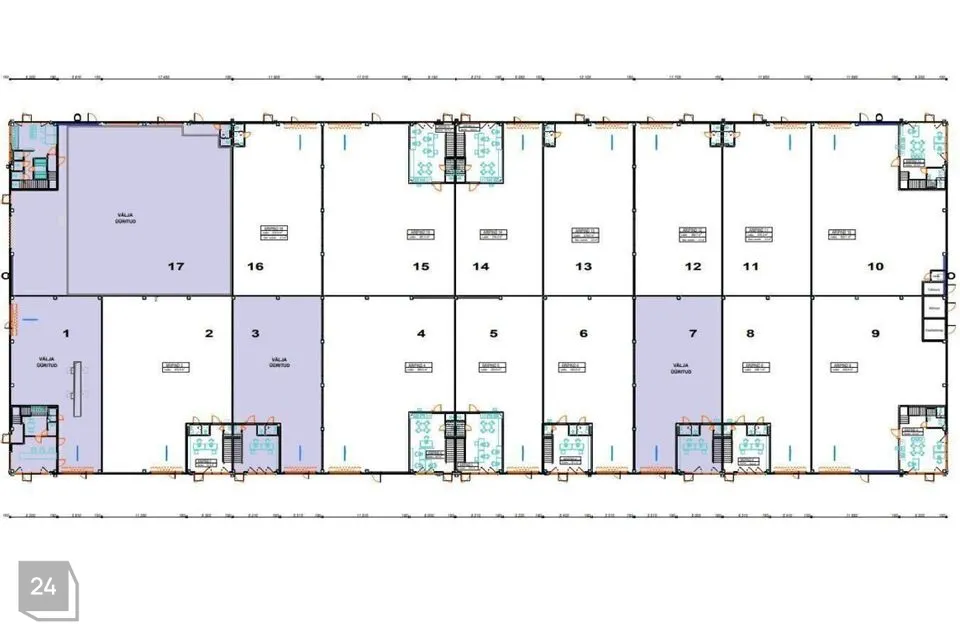
Anname Kärmu 1 ärihoones üürile äripinna kogupinnaga 604,3 m2, millest 518,9 m2 moodustavad lao- ja tootmisruumid ning 85,4 m2 büroo-/olme- või esindusruumid. Kärmu 1 ärihoones on veel teisigi äripindu suuruses 270-470 m2. Võimalus moodustada ka 1500, 3000 ja 4500 m2 suurust äripinda. Võta endale sobiva ruumilahenduse leidmiseks meiega ühendust!
ASUKOHT
Kärmu 1 ärihoone asub Tallinna külje all, Pirita linnaosast 3-minutilise autosõidu kaugusel Maardu linna territooriumil. Tegu on kiirelt areneva lao- ja tootmispiirkonnaga, kus on tagatud hea tehniline ja sotsiaalne infrastruktuur.
Kerkiva hoone ümbruskonnas on endale sobiva koha leidnud paljud tootmis- ja logistikaettevõtted nagu näiteks Tallink, Puukeskus, Framm, JTK ja Elme Metall. 2022. aastal valmis 750 m kaugusel Kärmu 1 ärihoone „suur vend“ ehk Iru Ärikeskus, mille 9500 m2 äripinda on rahulolevate üürnikega täidetud.
Vaatamata hoone ametlikule aadressile asub Kärmu 1 ärihoone otse Vana-Narva maantee ääres. Kui täna kasutab Transpordiameti andmetel Vana-Narva maanteed ööpäevas pea 10 000 sõidukit, siis võib tulevikus tänu maantee uuendamisele sellele korralikku lisa oodata. Suurepärane võimalus end möödujatele valgusreklaamiga nähtavaks teha!
Maardu-Iru piirkond on viimaste aastate jooksul läbi teinud ümbersünni. Lõpusirgel on Vana-Narva maantee ja Saha-Loo tee ristmiku rekonstrueerimine ning värske asfaldi ja turvaliste mahasõiduradadega magistraalile antakse viimaseid lihve!
Maardu ja ümbritsevate suurte kaubateede ühenduste sujuvale toimimisele aitab kaasa ka värskelt valminud Väo liiklussõlm. Tänu eelpool mainitud ja pikalt planeeritud infrastruktuuriprojektide valmimisele on kasvanud piirkonna potentsiaal uute tootmis- ja logistikavaldkonna ettevõtete võõrustamiseks.
Tegu on aga alati olnud logistiliselt väga hea asukohaga – lisaks läheduses paiknevatele haruraudteedele, Tallinn-Narva maanteele ja Tallinna ringteele asub ärikeskusest 10-minutilise sõidu kaugusel uuenduskuuri läbinud Muuga sadam, mille kaubakäive moodustab umbes 40% kogu Eestit läbivate transiitkaupade mahust.
Läheduses on ka mugavaks eluks vajalikud teenusepakkujad – Pärnamäe Keskus Rimi toidupoe, Alexela tankla, Mündipesula ja mitmete söögikohtadega jääb neljaminutilise sõidu kaugusele; veidi lähemal asuvad Nurgatagune Puhvet, Kinza kohvik, Cafe 26 ja EKE söökla.
Otse Kärmu 1 ärihoone ette on rajatud Pähklimäe bussipeatused, mida teenindab Tallinna linnaliin nr 30.
HOONEST
Aadress: Kärmu tn 1
Ehituse algus: november 2024
Valmimine: september 2025
Netopind: 6500 m2
Hind: alates 6,9 eur/m2
KAASAEGSED JA ENERGIATÕHUSAD LAHENDUSED
- Nutikad tehnilised süsteemid, mis tagavad madalad kõrvalkulud
- Avarad, loomuliku valguse ja kaasaegse siseviimistlusega äriruumid
- Moodsad ja kõrge resolutsiooniga turvakaamerad hoone perimeetril
- Programmeeritavad ligipääsusüsteemid, automaatväravad
- Üüriboksi valvestamine
- Energiatõhusad LED-valgustid
- Valgusreklaami võimalus maja fassaadil
- Boksipõhine kütte reguleerimine
- Soojustagastusega ventilatsioon ja konditsioneer
- Suur ladustamiskõrgus ja eritasapinnaline ladustamine
- Võimalus liigutada kaupa läbi hoone; ühest uksest sisse ja teisest välja
- Nutiladu - jälgi kaamerate ees toimuvat distantsilt ja juhi mobiiltelefoni rakenduse abil nii tõstandust kui valvesüsteemi
- Ringliiklus ja mugav laadimine ning manööverdamine suurtele kaubaautodele
- Personaalsed parkimiskohad
STOCK-OFFICE KONTSEPTSIOON
Hoone äripinnad koosnevad lao- ja tootmispindadest ning kontori- ja müügiruumidest. Nõnda saad kõiki kaubaga seotud tegevusi ühes kohas hoida ja soovi korral sealsamas vastu võtta ka kliente või koostööpartnereid. Lisaks säästad aja- ja logistikakuludelt!
TOOTMISELE SPETSIALISEERITUD
Igapäevast toimetamist muudavad lihtsamaks kõrged laed ja suur ladustamiskõrgus, automatiseeritud tõstanduksed, laiad valgustatud platsid ja ringliiklus, telferi valmidus, neli sissepääsu krundile ning võimalus liigutada kaupa läbi hoone.
A-ENERGIAKLASS
Hoone katus on täidetud päikesepaneelidega, mis toodavad mühinal roheenergiat. Soojustagastusega ventilatsioon vähendab küttearveid. Reguleeritavad ja ajastatavad kütte-, ventilatsiooni- ja jahutussüsteemid aitavad hoida optimaalset ning tervislikku sisekliimat.
Ärikeskuse ruumilahendust saab muuta vastavalt üürniku soovile ja äripinda saab kasutamiseks sobitada nii ühele kui ka mitmele erinevale üürnikule.
Vaata rohkem infot projekti kodulehelt: karmu1.ee
Küsi personaalset pakkumist!
*Hindadele lisandub käibemaks.
Objekti arendav Väo Äripark OÜ kuulub Favorte OÜ gruppi. Favorte on 1993. aastal asutatud Eesti kapitalil põhinev ettevõte. Meie eesmärk on olla asjatundlik ja toetav abiline sinu kinnisvaraalaste ambitsioonide elluäratamisel! Hoia meie tegemistel silma peal Favorte Kinnisvara sotsiaalmeedia lehtedel ja veebis www.favorte.ee!









































