Müüa suur tootmiskompleks Tõrva linnapiiril!
Tootmiskompleks asub arenevas Tõrva linna Riiska linnaosa tööstuspiirkonnas ning on väga hea juurdepääsuga Valga-Uulu maanteelt.
Tööstuse tn 1 (katastritunnus 82301:008:0013) ja Tööstuse tn 3 (katastritunnus 20302:003:0022) kinnistute sihtotstarve on tootmismaa 100 %. Üldpind (Tööstuse tn 1 kinnistu 2390 m2 ja Tööstuse tn 3 kinnistu 36347 m2) kokku 38737 m2.
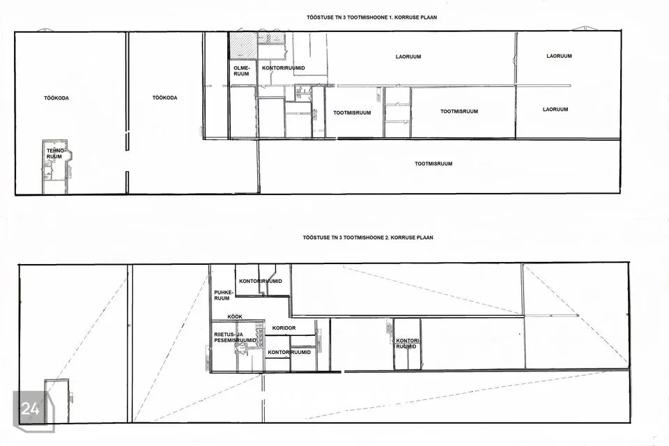
Tootmiskompleksil paiknev tööstushoone (suletud netopind ~ 5100 m2) on viimati kasutuses olnud mööblitootmise hoonena. Ehitise pikkus on 139 m, laius 36 m ja kõrgus 9 m. Hoone külgedel on erinevaid sissepääse, mis võimaldavad hoonet vajadusel ka osadena kasutada. Kõrged siseruumid ja mitmed suured elektrilised tõstuksed võimaldavad hoone kasutamist muu hulgas ka sõidukite remonditöökojana.
Hoone on jaotatud kolmeks tasandiks, millest esimesel tasandil paiknevad tootmis-, lao-, kuivatus-, värvimis-, tehno- ja olmeruumid. Teisel ja kolmandal tasandil erinevad kontori-, puhke-, pesemis- ja tualettruumid.
Kinnistu tagaosas paikneb tuhaplokkidest ehitatud käesoleval ajal kasutuses mitteolev vanem tanklahoone (suletud netopind 58,3 m²).
Tootmiskompleksil paiknev metallist kaarhall (suletud netopind ~ 518 m2) on olnud varasemalt kasutuses laopinna ja hoidlana. Kaarhalli väljaulatuv ruum on kohandatud lokaalsele katlasüsteemile (võimsus 0,6 MW), mis võimaldab säästlikult kütta ka kõrval asuvat tööstushoonet.
Olemas on vajaminevad tehnosüsteemid (vesi, kanalisatsioon, valguskaabliga internet, elekter, lokaalne keskküte).
Elekter 3 x 600 A ja 3 x 400 A.
Müügihinnas ei sisaldu tootmishoones asuvad seadmed. Soovi korral on võimalik seadmed eraldi osta.
Hoonetele on energiamärgis määramata.
Vaata ka tootmiskompleksi tutvustavat videklippi: https://youtu.be/gzAGZsZ7cAI?si=IqscUdj-3IjFpCCq
Riiska linnaosa Tõrvas on aktiivne äripiirkond, kus on peamiselt tootmis- ja laohooned ning toitlustus- ja majutushoone. Klientidele ja kaubaautodele on mugav ja kiire ligiääs Valga-Uulu maanteelt.
JAGA MINU KONTAKTI KÕIGILE, KES VAJAVAD KINNISVARANÕU!
- - - - - - - - - -
Telli hindamine UUS MAA Kinnisvarabüroolt https://uusmaa.ee/teenused/hindamine/
UUS MAA KINNISVARABÜROO EKSPERTHINNANGUID AKTSEPTEERIVAD KÕIK FINANTSASUTUSED.
- - - - - - - - - -
Liitu Uus Maa uudiskirjaga ja saa homset kinnisvarainfot juba täna!
https://www.uusmaa.ee/uudiskirjagaliitumine/
- - - - - - - - - -
Kodu aitab osta Swedbank.
Pakkumise saamiseks kasuta koodi UUSMAA ja Sind teenindatakse eelisjärjekorras.
Võtame ühendust 1 tööpäeva jooksul.
Uus Maa kliendile soodsam lepingutasu. Küsi täpsemat infot maaklerilt.
Finantsteenuseid pakub Swedbank AS. Tutvu tingimustega, pea nõu.
Tootmiskompleks asub arenevas Tõrva linna Riiska linnaosa tööstuspiirkonnas ning on väga hea juurdepääsuga Valga-Uulu maanteelt.
Tööstuse tn 1 (katastritunnus 82301:008:0013) ja Tööstuse tn 3 (katastritunnus 20302:003:0022) kinnistute sihtotstarve on tootmismaa 100 %. Üldpind (Tööstuse tn 1 kinnistu 2390 m2 ja Tööstuse tn 3 kinnistu 36347 m2) kokku 38737 m2.
Tootmiskompleksil paiknev tööstushoone (suletud netopind ~ 5100 m2) on viimati kasutuses olnud mööblitootmise hoonena. Ehitise pikkus on 139 m, laius 36 m ja kõrgus 9 m. Hoone külgedel on erinevaid sissepääse, mis võimaldavad hoonet vajadusel ka osadena kasutada. Kõrged siseruumid ja mitmed suured elektrilised tõstuksed võimaldavad hoone kasutamist muu hulgas ka sõidukite remonditöökojana.
Hoone on jaotatud kolmeks tasandiks, millest esimesel tasandil paiknevad tootmis-, lao-, kuivatus-, värvimis-, tehno- ja olmeruumid. Teisel ja kolmandal tasandil erinevad kontori-, puhke-, pesemis- ja tualettruumid.
Kinnistu tagaosas paikneb tuhaplokkidest ehitatud käesoleval ajal kasutuses mitteolev vanem tanklahoone (suletud netopind 58,3 m²).
Tootmiskompleksil paiknev metallist kaarhall (suletud netopind ~ 518 m2) on olnud varasemalt kasutuses laopinna ja hoidlana. Kaarhalli väljaulatuv ruum on kohandatud lokaalsele katlasüsteemile (võimsus 0,6 MW), mis võimaldab säästlikult kütta ka kõrval asuvat tööstushoonet.
Olemas on vajaminevad tehnosüsteemid (vesi, kanalisatsioon, valguskaabliga internet, elekter, lokaalne keskküte).
Elekter 3 x 600 A ja 3 x 400 A.
Müügihinnas ei sisaldu tootmishoones asuvad seadmed. Soovi korral on võimalik seadmed eraldi osta.
Hoonetele on energiamärgis määramata.
Vaata ka tootmiskompleksi tutvustavat videklippi: https://youtu.be/gzAGZsZ7cAI?si=IqscUdj-3IjFpCCq
Riiska linnaosa Tõrvas on aktiivne äripiirkond, kus on peamiselt tootmis- ja laohooned ning toitlustus- ja majutushoone. Klientidele ja kaubaautodele on mugav ja kiire ligiääs Valga-Uulu maanteelt.
JAGA MINU KONTAKTI KÕIGILE, KES VAJAVAD KINNISVARANÕU!
- - - - - - - - - -
Telli hindamine UUS MAA Kinnisvarabüroolt https://uusmaa.ee/teenused/hindamine/
UUS MAA KINNISVARABÜROO EKSPERTHINNANGUID AKTSEPTEERIVAD KÕIK FINANTSASUTUSED.
- - - - - - - - - -
Liitu Uus Maa uudiskirjaga ja saa homset kinnisvarainfot juba täna!
https://www.uusmaa.ee/uudiskirjagaliitumine/
- - - - - - - - - -
Kodu aitab osta Swedbank.
Pakkumise saamiseks kasuta koodi UUSMAA ja Sind teenindatakse eelisjärjekorras.
Võtame ühendust 1 tööpäeva jooksul.
Uus Maa kliendile soodsam lepingutasu. Küsi täpsemat infot maaklerilt.
Finantsteenuseid pakub Swedbank AS. Tutvu tingimustega, pea nõu.













































