Seoses tootmismahtude suurenemise ning uue tootmishoone valmimisega on tulnud pakkumisse heas korras ja 2018.a. rekonstrueeritud tootmishoone.
Hoone:
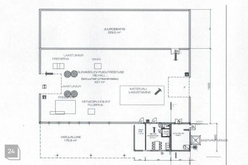
hoonel on ehitusalust pinda kokku 889,40m2, millest 656,5m2 moodustavad kaks (427m2 ja 229,5m2) tootmishalli, mis on soovikorral võimalik vaheseina eemaldamisel ühendada üheks suureks ruumiks. Lisaks on katlaruum 19,8m2, olmeruumid (puhkeruum koos kööginurga wc ja dushiruumiga) 31,3m2 ning panipaik 11,2m2. Kokku on hoones suletud netopinda 718,80m2.
Ehitusaluse pinna koosseisu kuulub ka 170,6m2 suurune hoone küljel paiknev katusealune toorme vms. ladustamiseks.
Hoone on laiendatud ja rekonstrueeritud 2018.a. Rekonstrueerimise käigus muuhulgas soojustati katus, paigaldati lisasoojustus seintele, valati põrandad, paigaldati uus elektri-ja küttesüsteem, paigaldati tõsteuksed, betoneeriti hoone esine transpordi-ja laoplats, ühendati vesi ja kanalisatsioon linna ühisvõrku.
Tehniline info:
elekter: 3X125A
vesi ja kanalisatsioon: ühendatud linna ühistrassidega
küte: pelletkatel (200kW, punkri maht 7T), tootmishallides kalorifeer, olmeruumides radiaatorid, kulu küttele aastas kokku seni ca. 5000eur (+km)
tootmishalli tõsteuksed (2tk): L=3500mm; K= 4150mm
Kõrgus fermini suures hallis 4,65m ja väikses hallis ruumi keskelt lae talani 4m.
Ligipääs kinnistule avalikult tänavalt (Piibe maanteelt mahasõit ca. 70m). Ligipääsuks kinnistule naaberkinnistult, et tekiks vajadusel oma transpordile kinnistult läbisõidu võimalus, seatakse naaberkinnistutele servituut.
Hind sisaldab käibemaksu.
Kinnistu müüakse ilma tootmisseadmeteta.
Huvi korral küsige lisa ja eelneval kokkuleppel olete oodatud kohapeale hoonega tutvuma.
Hoone:
hoonel on ehitusalust pinda kokku 889,40m2, millest 656,5m2 moodustavad kaks (427m2 ja 229,5m2) tootmishalli, mis on soovikorral võimalik vaheseina eemaldamisel ühendada üheks suureks ruumiks. Lisaks on katlaruum 19,8m2, olmeruumid (puhkeruum koos kööginurga wc ja dushiruumiga) 31,3m2 ning panipaik 11,2m2. Kokku on hoones suletud netopinda 718,80m2.
Ehitusaluse pinna koosseisu kuulub ka 170,6m2 suurune hoone küljel paiknev katusealune toorme vms. ladustamiseks.
Hoone on laiendatud ja rekonstrueeritud 2018.a. Rekonstrueerimise käigus muuhulgas soojustati katus, paigaldati lisasoojustus seintele, valati põrandad, paigaldati uus elektri-ja küttesüsteem, paigaldati tõsteuksed, betoneeriti hoone esine transpordi-ja laoplats, ühendati vesi ja kanalisatsioon linna ühisvõrku.
Tehniline info:
elekter: 3X125A
vesi ja kanalisatsioon: ühendatud linna ühistrassidega
küte: pelletkatel (200kW, punkri maht 7T), tootmishallides kalorifeer, olmeruumides radiaatorid, kulu küttele aastas kokku seni ca. 5000eur (+km)
tootmishalli tõsteuksed (2tk): L=3500mm; K= 4150mm
Kõrgus fermini suures hallis 4,65m ja väikses hallis ruumi keskelt lae talani 4m.
Ligipääs kinnistule avalikult tänavalt (Piibe maanteelt mahasõit ca. 70m). Ligipääsuks kinnistule naaberkinnistult, et tekiks vajadusel oma transpordile kinnistult läbisõidu võimalus, seatakse naaberkinnistutele servituut.
Hind sisaldab käibemaksu.
Kinnistu müüakse ilma tootmisseadmeteta.
Huvi korral küsige lisa ja eelneval kokkuleppel olete oodatud kohapeale hoonega tutvuma.
























